
Comentariul autorului:
Locuinta unifamiliala este dezvoltata pe 5 niveluri si prin dimensiunea spatiilor, programul functional si calitatea finisajelor se incadreaza intr-o categorie superioara de locuire.
Cladirea se afla intr-un cartier eterogen din punct de vedere al stilurilor arhitecturale, dar caracterizat de fatade cu un raport plin/gol traditional. Astfel, aspectul exterior propus este dominat de masivitatea volumului etajelor 1 si 2 ce pluteste peste parterul retras si este strapuns de decupaje ce permit luminii sa patrunda in incaperi.
S-a urmarit o fluiditate spatiala in relatia interior / exterior, orizontal / vertical.
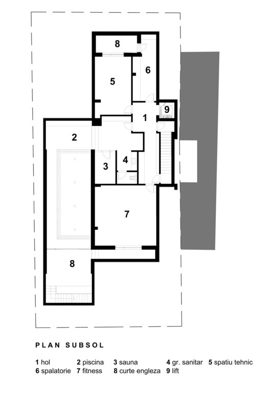
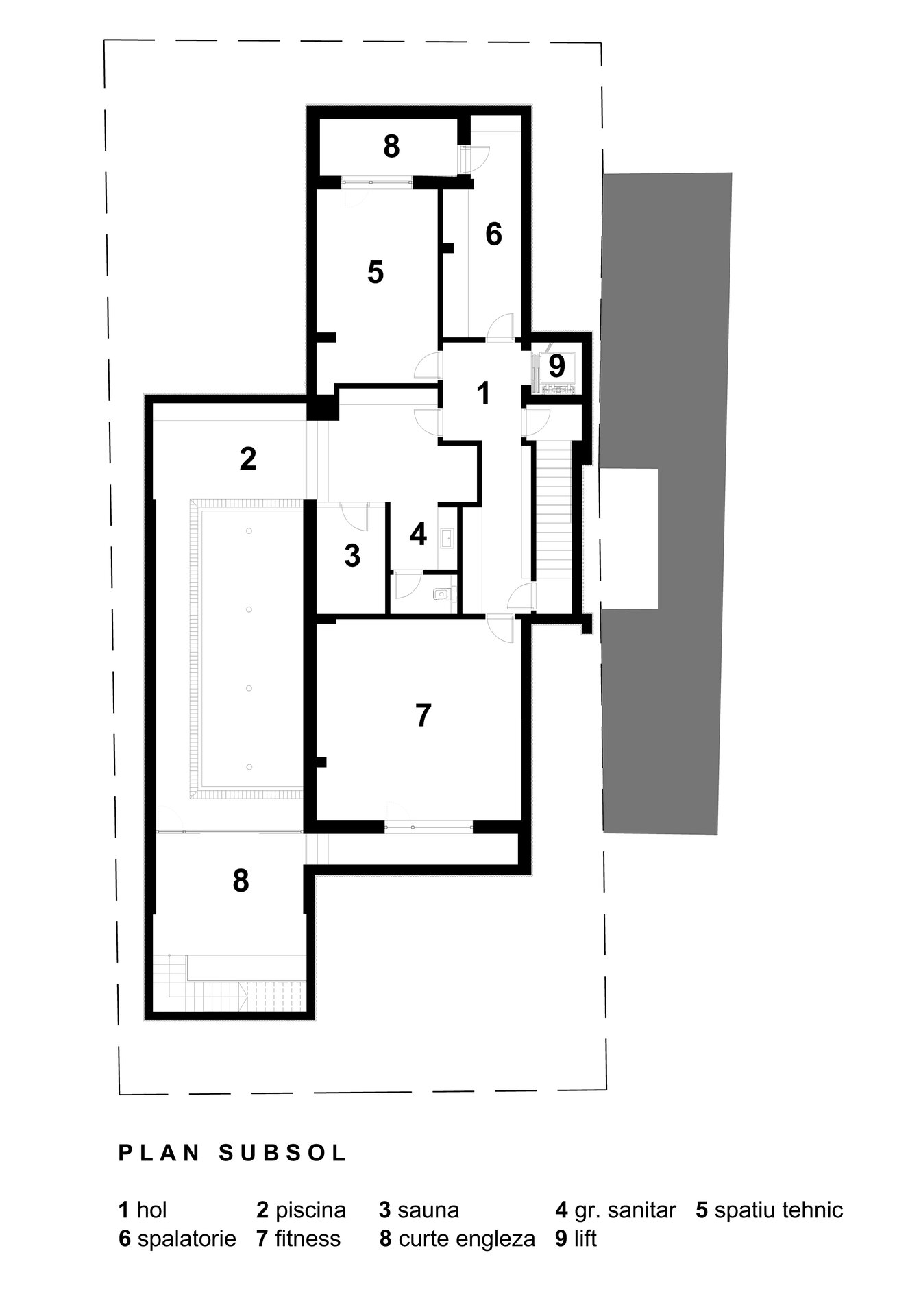
La subsol, pe langa spatiile tehnice, se afla o zona spa, incluzand piscina, sala gimnastica, sauna si anexele. Spatiul piscinei se continua printr-un perete vitrat cu o curte engleza ce comunica printr-o scara cu gradina de la parter. Astfel, desi aflat complet sub nivelul terenului, subsolul beneficiaza de lumina naturala.
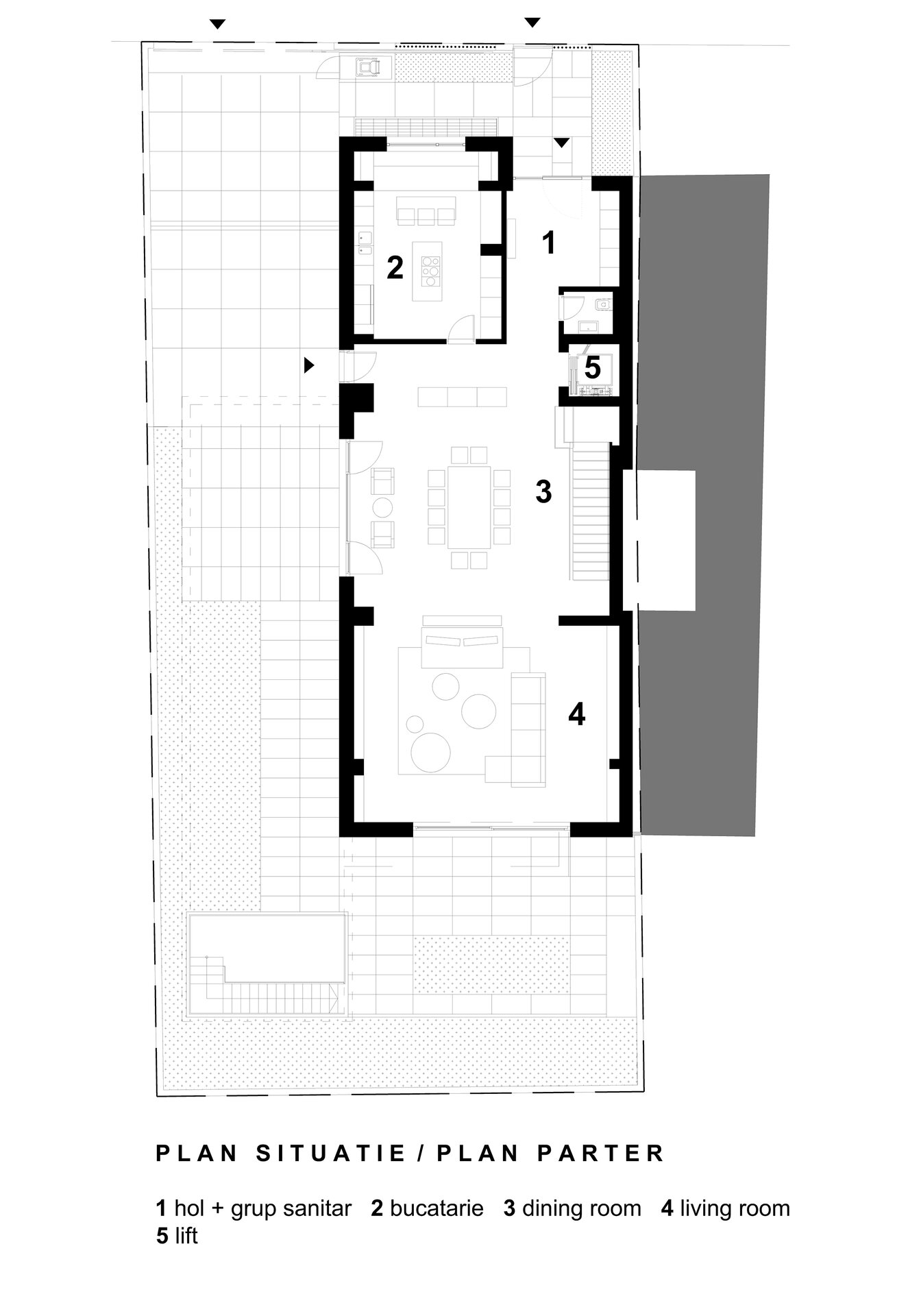
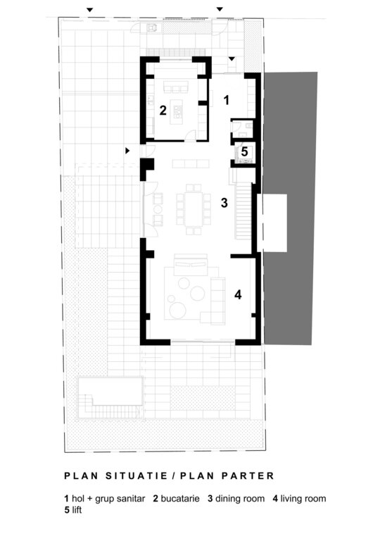
Nivelul parterului este dedicat integral activitatilor de zi, cuprinzand living room-ul si locul de luat masa intr-un spatiu generos comun, precum si bucataria si nodul de circulatie verticala (scara si ascensor). Zona destinata camerei de zi se extinde pe inaltimea a doua nivele, comunicand vizual cu etajul 1, unde sunt amplasate un birou si o galerie ce deserveste biblioteca desfasurata pe un perete cu inaltime dubla.
Pe langa aceste doua functiuni, la etajul 1 se mai regaseste un dormitor matrimonial cu anexele necesare nivelului de confort urmarit.
La etajul 2 sunt amplasate inca 2 dormitoare, fiecare cu baie, dressing si terasa proprii.
La etajul 3 (mansarda) de gaseste un apartament independent functional ce se extinde pe o terasa perimetrala ce ofera o panorama frumoasa asupra cartierului. Volumul etajului 3 este o prezenta discreta, fiind retras si finisat in culori inchise pentru a respecta caracterul si regimul de inaltime modest al zonei.
Finisajele, atat interioare cat si exterioare, incearca sa creeze o ambianta calda, cu culori si texturi naturale.