
Comentariul autorului:
Amplasamentul foarte ofertant, pe un teren în pantă usoară spre lac, cu deschidere către o natură nealterată de alte clădiri, a determinat conceptul acestei construcții: volume ortogonale prismatice albe, cu vitraje generoase, ce se intersectează și întrepătrund, par suspendate deasupra reliefului.
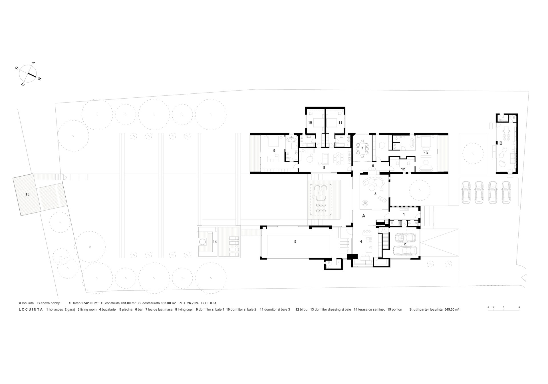
Locuința se dezvoltă în principal pe un nivel parter, funcțiunile conexe fiind adăpostite de un subsol parțial. Cele 3 volume prismatice cu lățimi între 6,6 și 7,9 m dispuse în formă de H crează două patiouri ce conferă o iluminare a spațiilor interioare corespunzătoare și o relație graduală cu grădina și peisajul.
Organizarea funcțională a urmărit separarea pe zone, astfel încât zonele de zi sa fie grupate în jurul unui patio central ce dispune de o amplă terasă acoperită cu o copertină bioclimatică, iar dormitoarele sunt orientate centrifug, pentru intimitate și confort acustic. Zona de piscină dispune de o terasă proprie avansată ca un promontoriu înspre lac, cu un loc de șemineu exterior.
Spațiul living room-ului este situat pe axul central de compoziție, cu deschidere către terasa-patio și lac și este articulat de zona piscinei prin intermediul unei generoase bucătării, cu loc de luat masa și prevazut cu un perete glisant din sticlă.
Volumul opus piscinei cuprinde dormitoarele, care sunt organizate ca mini-apartamente. Dormitorul principal este dotat cu un salon, birou, baie și dressing. Celalte trei dormitoare dispun de dressing-uri si băi individuale și sunt dispuse în jurul unui living room propriu orientat către terasa centrală, dotat cu chicinetă.
Un alt spațiu cu rol de dinning room, mai formal decat locul de luat masa din bucătărie, este prevazut în conexiune directă cu living roomul și o zona de bar.
Din bucătărie se accede către garaj și zona tehnică aflată la subsol (camera pentru personalul de întreținere, spălătorie, depozitare, instalații HVAC și pentru piscină).
În incintă, separat de volumul principal al locuinței, s-a amplasat un pavilion care cuprinde un hobby room și un grup sanitar.
Amenajarea grădinii subliniază axul central de compoziție al ansamblului, perpendicular pe lac. Panta terenului este preluată de ample pachete de trepte care conferă grădinii monumentalitate prin organizare geometrică și ritm. Spațiul central al grădinii este plantat cu gazon și vegetație joasa și este încadrat de o plantație de copaci înalți pe limitele laterale ale proprietății.
O alee centrală conduce către lac, având ca punct terminus un ponton construit pe malul lacului.
Construcția utilizează un sistem inteligent pentru controlul integrat al iluminatului, climatizării, siguranței, jaluzelelor și altor funcții. Aceasta oferă flexibilitate, personalizare și posibilitatea de a crea rapid scenarii automate, cum ar fi reglarea luminii și a temperaturii. De asemenea, sunt utilizate panouri solare pentru prepararea apei calde.