
Comentariul autorului:
Arhitectura nu funcționează ca o disciplină izolată, ci există și evoluează în permanent dialog cu alte domenii creative și culturale. Experiența parcursului universitar a conturat o dimensiune personală a procesului creativ, prin descoperirea designului vestimentar. Relația dintre arhitectură și modă devine relevantă pentru ideea de interdisciplinaritate, ambele domenii implicând construirea unei identități, manipularea unor forme și materiale, dar și interpretarea și raportarea la un context cultural și social. Cele două sunt metode de articulare a spațiului. Arhitectura formează mediul construit la scară urbană, moda conturează spațiul intim al corpului, amândouă exprimând personalitatea și identitatea colectivă sau individuală.
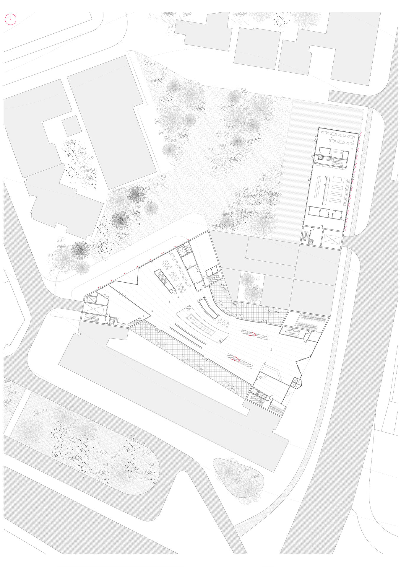
Astfel, Proiectul de Diplomă explorează potențialului Casei de Modă ca obiect arhitectural emblematic în revitalizarea cartierului Coehoorn. Poziționată strategic în imediata vecinătate a centrului istoric și ca parte a traseului modei și designului în oraș, Casa de Modă devine o componentă activă a regenerării urbane, o platformă de inovare și design, o sursă a identității locale. Este o expresie spațială a creativității, o surfilare urbană ca gest de reîntregire a unui context destructurat și depersonalizat. Asemănător unei cusături care oprește destrămarea țesăturii, Casa de Modă și rezidența pentru artiști recompun identitatea urbană și socială a cartierului. Totodată, relația dintre arhitectură și modă este explorată prin conformarea volumelor, pornind de la ideea unui material textil plisat. Țesătura se așterne peste sit, conectând corpurile de clădire într-o compoziție coerentă și fluidă, o compoziție care îmbină conceptul, funcționalitatea și expresia arhitecturală. Această coregrafie spațială se bazează pe conceptul de „dressness”, unde interiorul este definit de formele plisate. Pe fațade, aceste pliuri devin drapaje, care dezvăluie și anunță limbajul interior al clădirii.
În concluzie, acest proiect reprezintă o declarație arhitecturală situată la intersecția dintre arhitectură și modă. Prin metafora surfilării urbane, Casa de Modă întărește marginea unui țesut urban destrămat, rețesând conexiuni între oameni și oraș. Este un spațiu unde creația și comunitatea coexistă, unde expresia devine parte din mediul înconjurător, iar materialul textil se transformă în structură și structura în poveste.