
Comentariul autorului:
La intersecția străzilor Luigi Cazzavillan și Transilvaniei, în imediata vecinătate a Parcului Cișmigiu, proiectul propune o clădire cu patru niveluri (subsol, parter și trei etaje), concepută ca un ansamblu de locuire contemporană cu funcțiuni mixte. Poziționarea privilegiată, în centrul Bucureștiului și la marginea unuia dintre cele mai importante spații verzi ale orașului, a determinat o intervenție atentă, în dialog cu țesutul istoric și cu scara domestică a cartierului.
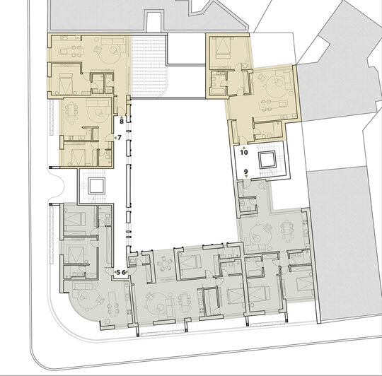
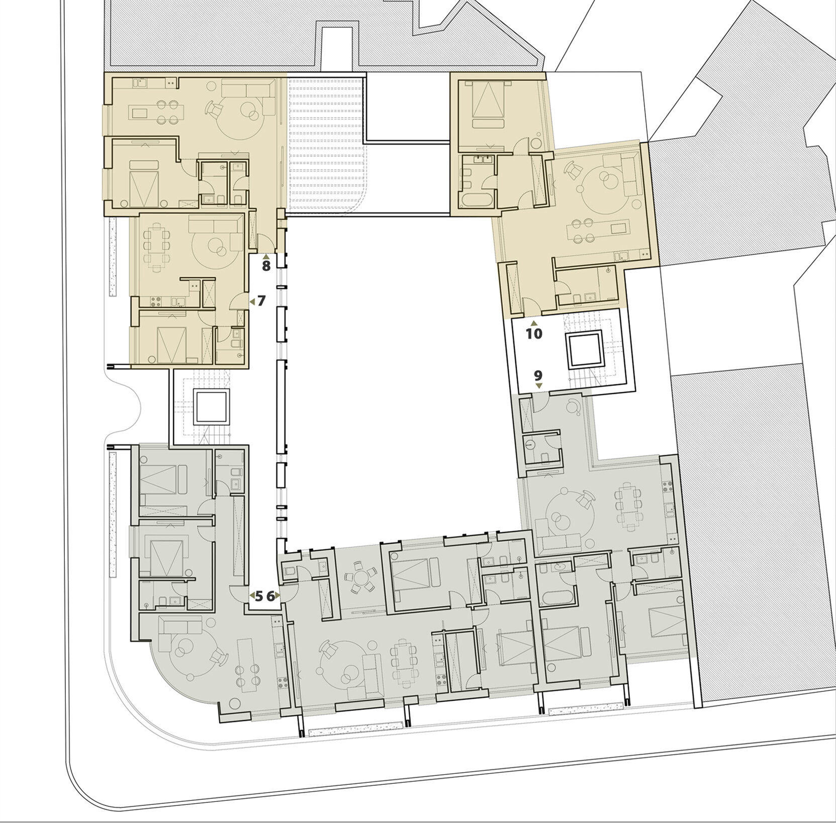
Clădirea, alipită de calcanele construcțiilor vecine, este articulată printr-o curte interioară centrală și o curte de lumină, care asigură intimitatea locuirii, dar și o ventilare și iluminare naturală optimă. Această organizare reinterpretează tipologia tradițională a curților urbane, oferind un echilibru între densitatea construită și spațiul verde disponibil.
Volumetrie sculpturală și organică
Volumul compact al clădirii este modelat într-o manieră sculptural-organică, cu o prezență fluidă, adaptată contextului urban. Formele curbe și colțurile rotunjite definesc limbajul arhitectural, aducând un plus de eleganță și naturalețe.
Clădirea se dezvoltă pe un subsol integral, un parter activat de o cafenea pe colț și trei niveluri de locuire. Ultimul nivel include și un duplex desfășurat pe etajele 2 și 3, completat de o terasă amplă pe acoperișul plat, ce deschide priveliști către cartier și Parcul Cișmigiu.
Fațadele sunt animate de balcoane-terasă curbilinii, prevăzute cu jardiniere, ce creează o relație directă între interior și exterior. Detaliile din bronz – tâmplăria, balustradele și finisajele parterului – aduc o notă caldă și elegantă, contrastând cu textura sobră a zidăriei. Astfel, arhitectura dobândește o expresie sculpturală, contemporană, dar integrată în contextul istoric.
Funcțiuni și organizare
Proiectul este conceput pe patru niveluri distincte, fiecare cu o funcționalitate bine definită. Subsolul adăpostește o parcare cu 32 de locuri, destinată atât locatarilor, cât și vizitatorilor, cu acces auto direct din stradă și spații tehnice integrate discret în ansamblu. La parter, dinamica locului este activată de o cafenea de 102,5 mp, gândită ca spațiu deschis comunității și orientată spre intersecție, în timp ce restul nivelului este dedicat apartamentelor de două și trei camere, cu deschideri atât către stradă, cât și către curtea interioară. Această curte, tratată peisager și transformată într-un nucleu al vieții cotidiene, devine centrul de întâlnire și de relaționare dintre locatari, din ea pornind cele două tronsoane verticale ce asigură accesul către etajele superioare. Aici se desfășoară o varietate de apartamente, cu tipologii și dimensiuni diferite, între 55,3 și 124,2 mp, toate beneficiind de balcoane și terase ample, care deschid interiorul către exterior și aduc lumină naturală din plin. Ultimele două niveluri găzduiesc un duplex spectaculos, completat de o terasă generoasă pe acoperiș, ce oferă o perspectivă panoramică asupra zonei centrale și a Parcului Cișmigiu, transformând locuirea într-o experiență urbană privilegiată.
Identitate contemporană într-un context istoric
Prin adoptarea unei geometrii organice, prin integrarea curții interioare și a curții de lumină, prin atenția acordată materialelor și printr-o volumetrie fluidă și sculpturală, clădirea aduce o prezență contemporană într-un cartier cu valoare istorică.
Cafeneaua de pe colț activează parterul și intersecția, contribuind la viața publică, în timp ce locuirea colectivă se desfășoară în jurul spațiilor verzi, oferind confort și intimitate. Formele curbe și liniile fluide dau clădirii un caracter prietenos și distinct, care evită rigiditatea și se armonizează cu scara umană a cartierului.
Astfel, proiectul reușește să armonizeze funcțiunea publică și cea privată, contribuind la regenerarea urbană a zonei și consolidând identitatea unei arhitecturi de calitate, contemporane și organice, în centrul Bucureștiului.