
Comentariul autorului:
Istoria clădirii Kretzulescu este profund ancorată în originile sale, cunoscută inițial sub denumirea de „Palatul Eforiei Kretzulescu”. Termenul „eforie” face referire la funcția sa originară de fundație administrativă a Bisericii. În prezent, utilizarea edificiului drept sediu al unei fundații reprezintă o formă de omagiere a acestei moșteniri istorice. Prin păstrarea rolului său în slujba comunității și în sfera administrației, clădirea Kretzulescu continuă să celebreze un trecut încărcat de semnificații, contribuind activ la dinamica prezentului.
Alegerea funcțiunii actuale își găsește justificarea în simbolismul purtat de portic de-a lungul secolelor – acela al unui „adăpost”. Fundația, având ca misiune sprijinirea și îmbunătățirea calității vieții celor aflați în dificultate, devine, în sine, un spațiu de refugiu, un sprijin tangibil pentru cei vulnerabili. Prin programele sale caritabile, prin serviciile și resursele oferite, dar și prin organizarea de evenimente cu caracter social și educațional, fundația furnizează un sprijin esențial și creează oportunități reale de redresare și incluziune pentru membrii defavorizați ai comunității.
Fundația are un caracter caritabil, fiind o organizație non-profit, specializată în administrarea și atragerea de resurse financiare destinate susținerii unor cauze de interes public. Activitatea sa este susținută prin donații provenite de la persoane fizice, companii sau alte entități, precum și prin campanii caritabile, evenimente și alte inițiative dedicate strângerii de fonduri.
Clădirea Kretzulescu este situată pe Calea Victoriei nr. 45, beneficiind de o poziționare excepțional de centrală, atât la nivel macro, cât și micro. Această locație privilegiată plasează edificiul în inima orașului, oferind acces imediat și facil către principalele zone de interes și facilități urbane. Amplasarea sa strategică asigură conectivitate și accesibilitate, făcând din clădire un punct ideal pentru activități de afaceri, culturale, sociale sau rezidențiale.
Centralitatea clădirii Kretzulescu nu doar că sporește prestigiul acesteia, ci îi maximizează atractivitatea pentru un public divers și pentru o gamă variată de activități. În cadrul programului desfășurat de fundație, organizațiile beneficiare au oportunitatea de a-și desfășura activitatea în acest spațiu central pe o perioadă de doi ani. Astfel, acestea pot utiliza spațiul pentru a atrage atenția publicului asupra cauzelor pe care le susțin.
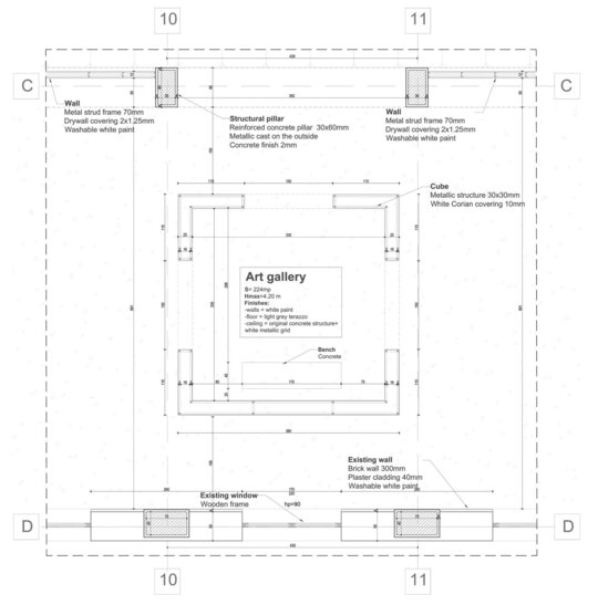
Întregul proces se desfășoară prin patru pași simpli, care creează un ciclu de dezvoltare sustenabilă pentru organizații. De exemplu, una dintre organizațiile partenere lucrează cu copii cu dizabilități, care participă la ateliere creative – în special activități de tip arts & crafts. Lucrările realizate de copii sunt ulterior expuse în cadrul unei expoziții deschise publicului larg. În etapa finală, acestea sunt licitate în cadrul unor galerii caritabile, iar fondurile obținute sunt donate organizației respective, în vederea susținerii activităților viitoare.