
Comentariul autorului:
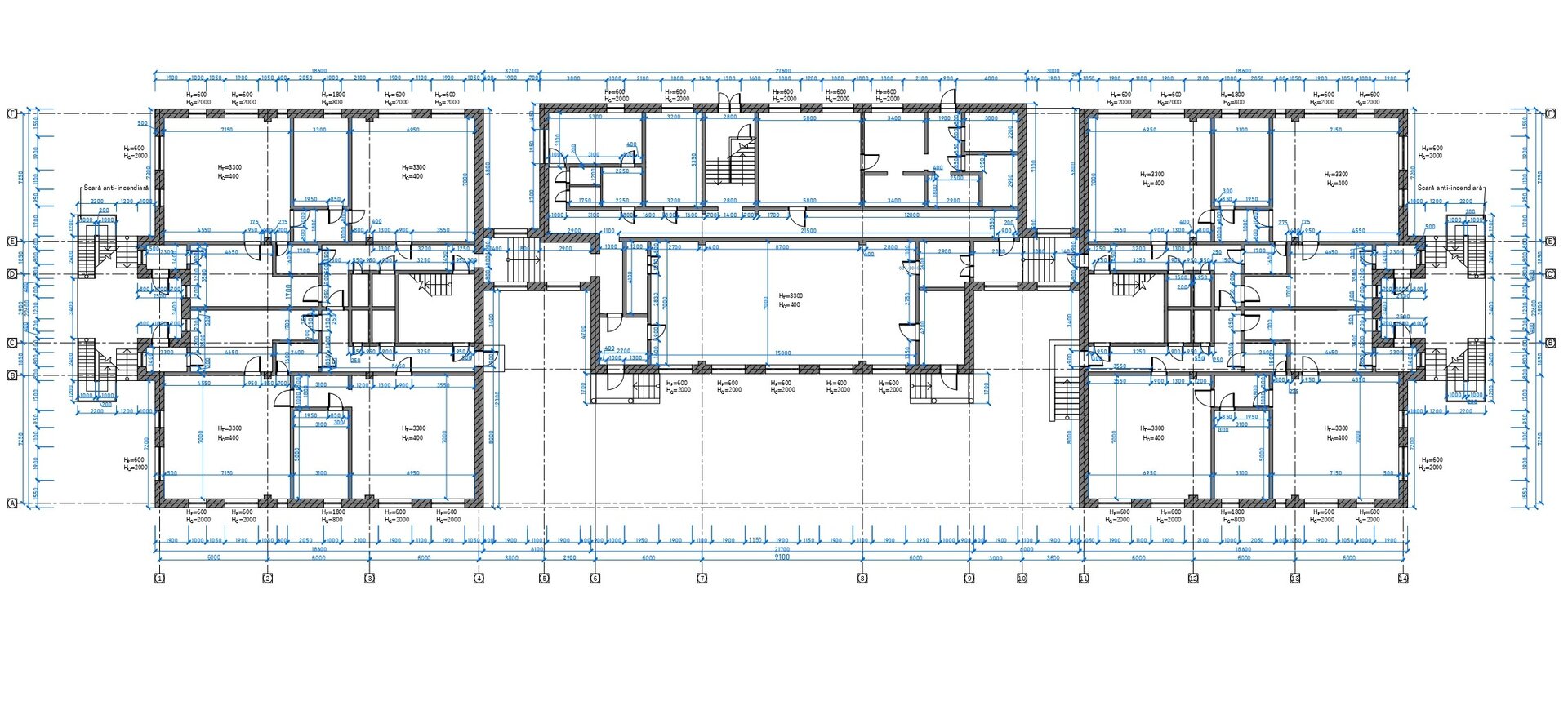
Proiectul de reamenajare a Grădiniței „Guguță” a pornit de la nevoia de a crea un mediu educațional modern, sigur și plăcut pentru copiii de vârstă preșcolară. Clădirea grădiniței se află în orașul Călărași și este organizată pe trei niveluri: subsol, parter și etaj. Fiecare zonă a fost regândită pentru a răspunde nevoilor reale ale copiilor, educatorilor și întregului personal.
S-a pus accent pe organizarea clară a spațiilor: săli de grupă, dormitoare, grupuri sanitare, spații administrative, sală de festivități, bucătărie și spații tehnice. Toate încăperile au fost compartimentate astfel încât circulația să fie logică, sigură și ușor de urmărit de către copii. Materialele folosite sunt durabile, ecologice, ușor de întreținut și adaptate pentru un spațiu frecventat de copii mici. Pardoselile SPC, gresia în băi, vopseaua hipoalergenică, panourile decorative din MDF sau perforate și mobilierul ergonomic asigură un mediu funcțional, dar și prietenos.
Din punct de vedere stilistic, grădinița combină elemente ale stilului scandinav cu cele moderne. Stilul scandinav aduce simplitate, naturalețe și multă lumină, în timp ce elementele moderne oferă funcționalitate, linii clare și soluții inteligente pentru depozitare și iluminat. Paleta cromatică este alcătuită din nuanțe deschise, cu accente naturale, care creează o atmosferă calmă și caldă. Corpurile de iluminat, precum spoturile aplicate, corpuri liniare suspendare sau sferele suspendate au fost alese atât pentru funcționalitate, cât și pentru aspectul decorativ.
Un punct important în proiect l-a reprezentat confortul acustic, mai ales în sala de festivități, unde au fost aplicate măsuri de izolare fonică prin utilizarea de panouri moi, draperii și elemente absorbante pe tavan și pereți. Aceste soluții ajută la reducerea zgomotului și îmbunătățesc claritatea sunetului în timpul activităților colective.
Grădinița „Guguță” nu a fost doar modernizată estetic, ci și adaptată din punct de vedere funcțional, astfel încât fiecare spațiu să servească în mod clar un scop: educație, joacă, odihnă sau organizare. Spațiile sunt flexibile, mobilierul este modular, iar încăperile pot fi adaptate rapid pentru diverse activități. Siguranța copiilor a fost prioritară: toate colțurile sunt rotunjite, materialele sunt non-toxice, iar accesul la diverse funcțiuni este ușor și sigur. Proiectul reflectă o abordare centrată pe copil, unde fiecare element este gândit pentru a sprijini creșterea armonioasă, starea de bine și dezvoltarea abilităților necesare vârstei. Grădinița „Guguță” devine astfel un spațiu modern, cald și funcțional, unde copiii pot învăța, se pot juca și pot crește într-un mediu sigur și echilibrat.
Prin această reamenajare, grădinița nu doar răspunde cerințelor actuale ale educației timpurii, ci devine și un exemplu de bune practici pentru alte instituții similare. Spațiile sunt gândite să stimuleze creativitatea, să ofere siguranță și să contribuie la dezvoltarea unei relații armonioase între copii, educatori și părinți. Astfel, proiectul reflectă nu doar o investiție în infrastructură, ci mai ales o investiție în viitorul comunității.