
Comentariul autorului:
Imobilul din strada Episcopiei 2–4 a fost realizat în 1928–1930 de Societatea „Construcția Modernă”, pe baza proiectului arhitecților Ștefan Burcuș și J. Meyer. Amplasat pe parcela fostei Case Zosima, la intersecția străzilor Episcopiei și Constantin Esarcu, blocul de locuințe cu magazine la parter a devenit un reper urban important în imediata vecinătate a Ateneului Român.
De-a lungul timpului, clădirea a găzduit instituții și personalități marcante: primul sediu al Societății Arhitecților Români, apartamente ale familiei Constantin Argetoianu, ale Ligii Naționale a Femeilor (condusă de Arethia Tătărescu), precum și spații locative diverse, expropriate după naționalizarea din 1949.
Bombardamentele din 1944 au afectat grav imobilul, distrugând acoperișul și tâmplăria, iar intervențiile ulterioare din perioada 1952–1959 au fost doar reparații de întreținere. În anii ’90 a fost realizată o expertiză tehnică privind consolidarea, dar fără continuarea lucrărilor. Astăzi, clădirea – deși neclasată ca monument – are valoare istorică și urbanistică, fiind parte integrantă din zona de protecție a Ateneului Român, monument de grupă A.
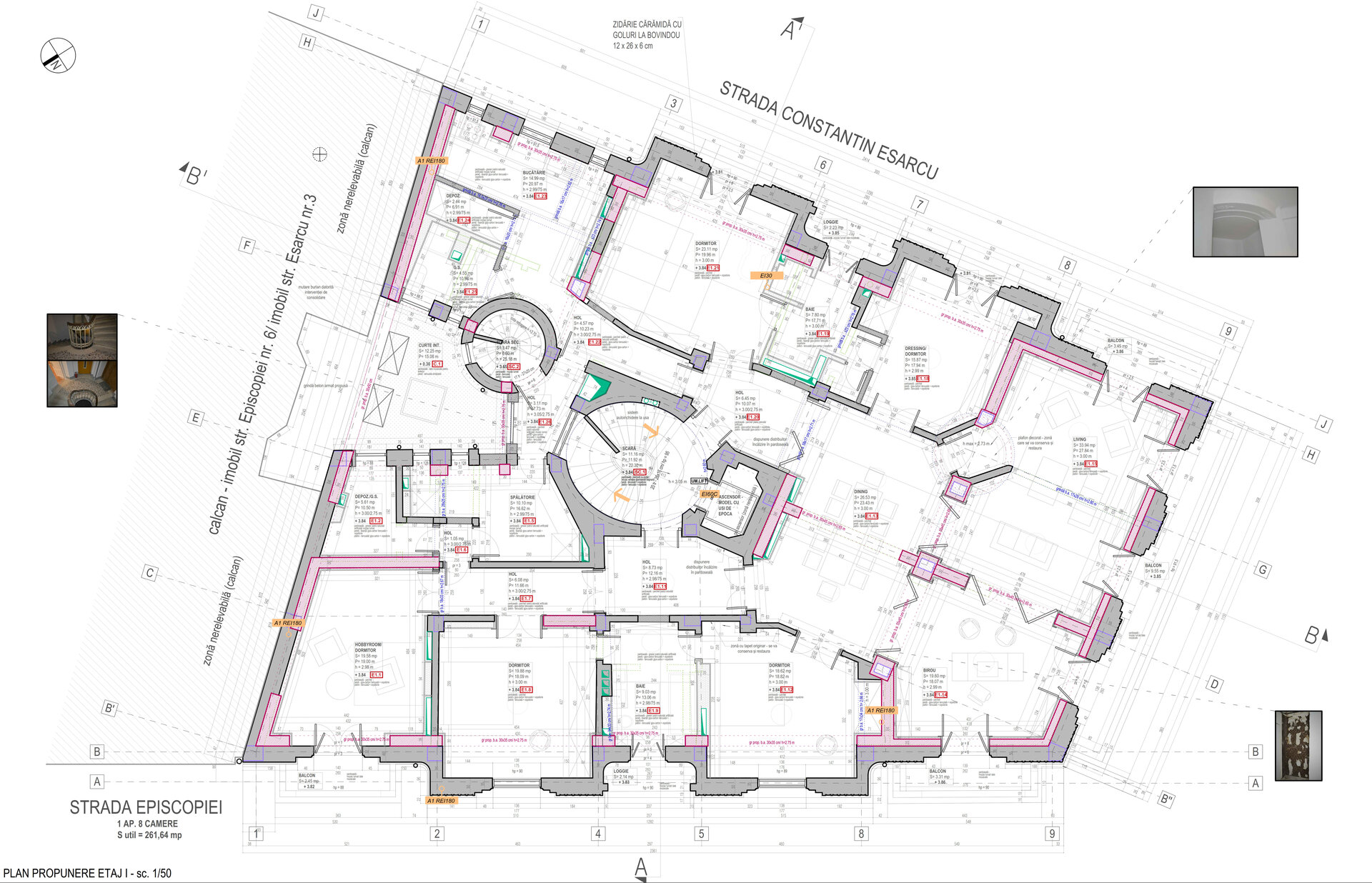
Imobilul Episcopiei 2-4, S+P+5+2M (echivalent cu S+P+6+M) formează o insulă, calcan la calcan cu imobilul din Episcopiei nr.6. Aceste două imobile cuplate sunt înconjurat de străzile Nicolae Golescu, Episcopiei și Esarcu.
Stilul este caracteristic perioadei de realizare pentru clădirile cu mai multe apartamente și magazine la parter, iar fațadele ornate cu bovindouri, coloane, cornișe, parapetele balcoanelor din fier forjat și baluștrii, formează vocabularul clasic al arhitecților „Societății Construcția Modernă”. Blocul are subsol general, parter, cinci etaje, un etaj mansardat (local pod înalt) și un pod de înălțime mică. Forma în plan este apropiată de litera „V” cu vârful teșit și cu laturile dispuse pe str. Ateneului și str. Esarcu. Fațada principală poate fi considerată cea de la intersecția străzilor (pe teșitură).
La parter sunt mici magazine, etajele fiind cu destinație de locuințe; pe fiecare etaj sunt câte două apartamente spațioase. Accesul principal este prin str. Episcopiei, iar prin str. Constantin Esarcu, accesul se face printr-un gang și prin curtea de serviciu.
Circulația principală pe verticală, la apartamente, este asigurată printr-o scară principală curbă, cu trepte balansate, care duce de la parter la etajul 5, și un lift de la parter la mansardă, precum și o scară secundară circulară de la subsol la mansardă. Subsolul este general, extins și sub curte, compartimentat în depozite pentru magazine, inițial cu scări de acces din fiecare magazin și boxe pentru locuințe.
Fațadele sunt impunătoare, realizate cu ancadramente la ferestre, bosaje, cornișe ample la etajul 4 și 5. Pe fațadele laterale sunt câte două bovindouri către fiecare stradă, începând de la etajul 1. Balcoanele cu dimensiuni identice la etajele 2, 3, 4 sunt susținute de console, parapetul este realizat din grilaj de fier cu modele diferite pe verticală; la etajul 1 parapetul balcoanelor este cu baluștrii. Blocul a fost realizat de antrepriza inginerului I. Prager. Șarpanta este din lemn. Toate planșeele au fost executate din beton armat, mai puțin planșeul supantei din mansardă. Învelitoarea actualmente este din tablă plană, refăcută după incendiul din bombardamentul din anul 1944, inițial era din tablă și cu solzi de ardezie, material găsit în mansarda și menționat în autorizația din anul 1928.
Ușa principală de la intrarea în clădire din str. Episcopiei este dublă, metalică și vitrată. Realizată din profile verticale pătrate care formează din intersecția lor o decorație geometrică, prezenta și la parapetele metalice ale balcoanelor. Peste aceste profile s-au aplicat la exterior ghirlande metalice în formă de coroană. Superpozat deasupra celor două uși se află două vute din ghirlande ce susțin simetric un cartuș, toate din confecții metalice. Ușa intrării principale este o confecție remarcabilă ca prezență, la nivelul străzii. În spatele acestor profile există solidar cu confecția metalică panouri cu ochiuri vitrate cu sticlă clară.
Blocul construit de „Societatea Construcția Modernă” este o prezență arhitecturală în spațiul peisajului cultural al Pieței Palatului Regal.
Proiectul de restaurare și consolidare: Intervențiile propuse au urmărit: consolidare structurală, restaurarea fațadelor eclectice, a detaliilor decorative originale (ancadramente, bovindouri, decorații florale) și a elementelor valoroase de la interior (tâmplăria istorică cu geam bizotat, mozaicul venețian și balustrada de fier forjat de la scara principală, tapetul istoric descoperit la etajul I, precum și discurile decorative de la nivelul tavanelor), recompartimentări punctuale, refacerea învelitorii și punerea în valoare a clădirii.
La parter, se propunea consolidarea discretă a stâlpilor perimetrali, astfel încât să fie reconstituite vitrinele comerciale conform fotografiilor de epocă. Învelitoarea, grav deteriorată după bombardamentele din cursul celui De-al Doilea Război Mondial, urma a fi înlocuită cu o structură modernă (metal/lemn stratificat), dar finisată în spiritul originar – prin revenirea la ardezia istorică și integrarea unor porțiuni de învelitoare din tablă plană titan-zinc antichizată, cu lucarne realizate după modelul proiectului din 1928. Mansarda urma a fi reamenajată, în acord cu reglementările zonei protejate, pentru a deveni spațiu locuibil, cu prelungirea bovindourilor și valorificarea podului. Se păstrau cotele de înălțime impuse încă din 1928, pentru a nu afecta relația vizuală cu Ateneul și fronturile învecinate.
La etajul I la apartamentul dinspre strada Episcopiei s-a descoperit o porțiune verticală de tapet de hârtie, model de tapet care este identic cu cel din fotografia de epocă din apartamentul cumpărat de „Societatea Arhitecților Români” (S.A.R.). Este ultima urmă păstrată a acestei uniuni în primul sediu deținut de această societate. În mod miraculos s-a păstrat și sperăm să rămână ca un vestigiu de neprețuit, cu ajutorul proprietarului blocului .
Autorilor acestui studiu, împreună cu o echipă de diverse specialități, s-au ocupat de proiectul de restaurare al imobilului. În această calitate, am sugerat refacerea mansardei, într-o manieră apropiată de cea de la autorizația originară, în zona fațadei înguste spre Calea Victoriei, în spatele frontonului decorat, posibil pe ferme metalice, lemn stratificat, pentru a-și recăpăta imobilul anvergura și elansarea inițială.
S-a propus ca pentru acoperișul pe zonele aproape verticale să se revină la o învelitoarea cu solzi de ardezie ca la început. Frontonul în sector de cerc, similar „cocoșnicului rusesc”, amplasat deasupra fațadei înguste din spre Calea Victoriei, apare ca o diademă, ce încununează arhitectural prezenta verticală a fațadei blocului. Centrul coronamentului este marcat de un oculusul elipsoidal, simbol nelipsit în morfologia stilistică a clădirilor „Societății Construcția Modernă”.
Considerând că toată zona din jurul Ateneului Român a ridicat cornișa regulamentară din anul 1928 și până astăzi, proiectul a preluat una din variantele de fațade propuse în anul 1928 de Comisia Tehnică, cu privire la prelungirea bovindourilor cu balcoane la nivelul mansardei podului, pentru a avea o lumină diurnă corespunzătoare, deși fuseseră respinse de Comisie. Spațiul mansardei locuibile de la etajul 6 devine un duplex luminat si prin intermediul unui luminator amplu în acoperiș. Prezentarea acestui proiect realizat în cca. 4 ani, autorizat, dar nerealizat, este, cu această ocazie, relevarea unei elaborate propuneri a biroului nostru de arhitectura, un concept de restaurare și întregire a unui imobilului cu mai multe apartamente.
Propunerea de amenajare a spațiului public: În paralel cu proiectul de restaurare, Asociația de Proprietari, împreună cu biroul nostru de proiectare, a propus crearea unei piațete urbane în fața imobilului, în cadrul programului PMB de bugetare participativă (2022). Deși necâștigător, suprafața vizată în proiect era situată la intersecția străzilor Episcopiei și Esarcu, cu posibilitatea extinderii ulterioare, incluzând spațiul triunghiular din fața blocului și stradela Esarcu. Elementul central era un spațiu circular – „Rotonda”, pavat cu piatră cubică, în mijlocul căruia ar fi fost amplasată statuia „Ecvestră” a sculptorului Virgil Scripcariu. Sculptura devenea un cap de perspectivă atât dinspre Calea Victoriei, cât și dinspre scările Ateneului Român, marcând o axă vizuală și culturală. Amenajarea includea mobilier urban pentru delimitarea spațiului pietonal, restricționarea accesului auto și crearea unui cadru propice pentru activități culturale în aer liber – audiții simfonice, evenimente comunitare, zone de odihnă și socializare. Într-o a doua etapă, stradela Esarcu era complet pietonalizată și activată ca spațiu comunitar-cultural, susținută și de funcțiunile comerciale existente la parter (cafenele, galerii de artă, magazine de prestigiu). Amenajarea urbană putea deveni un punct de focalizare pietonală în zona centrală a Bucureștiului.
Proiectul de restaurare, consolidare și punere în valoare a imobilului din str. Episcopiei 2–4, coroborat cu amenajarea spațiului public „Rotonda Ecvestră”, ar fi reprezentat o intervenție complexă de recuperare a memoriei urbane și de revitalizare a centrului Bucureștiului. Prin protejarea patrimoniului construit și crearea unui nou reper cultural-pietonal, inițiativa ar fi consolidat legătura dintre blocul „Societății Construcția Modernă” și Ateneul Român.