
Comentariul autorului:
Conceptul de design interior al restaurantului Luna Bistro propune o arhitectură interioară minimalistă, dar în același timp caldă și primitoare, în care structura existentă devine fundalul scenografic al unei compoziții contemporane.
Betonul aparent, cu amprentele sale vizibile de turnare și textura imperfectă, constituie scheletul vizual al spațiului, articulând o prezență austeră. Această rigiditate structurală este contrabalansată de prezența lemnului, utilizat în diferite ipostaze: de la mesele lungi comune la tabureții sculptați din trunchiuri masive, până la blaturi și elemente de mobilier cu un caracter pronunțat. În această juxtapunere, materia inertă și rece se întâlnește cu organicitatea caldă a fibrei naturale, generând un cadru unitar, dar stratificat.
Mobilierul urmează o estetică minimalistă, definită prin linii clare și proporții echilibrate, îmbogățită de accente cromatice ce dinamizează spațiul.
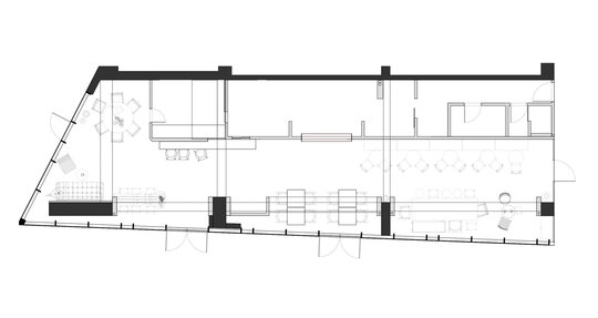
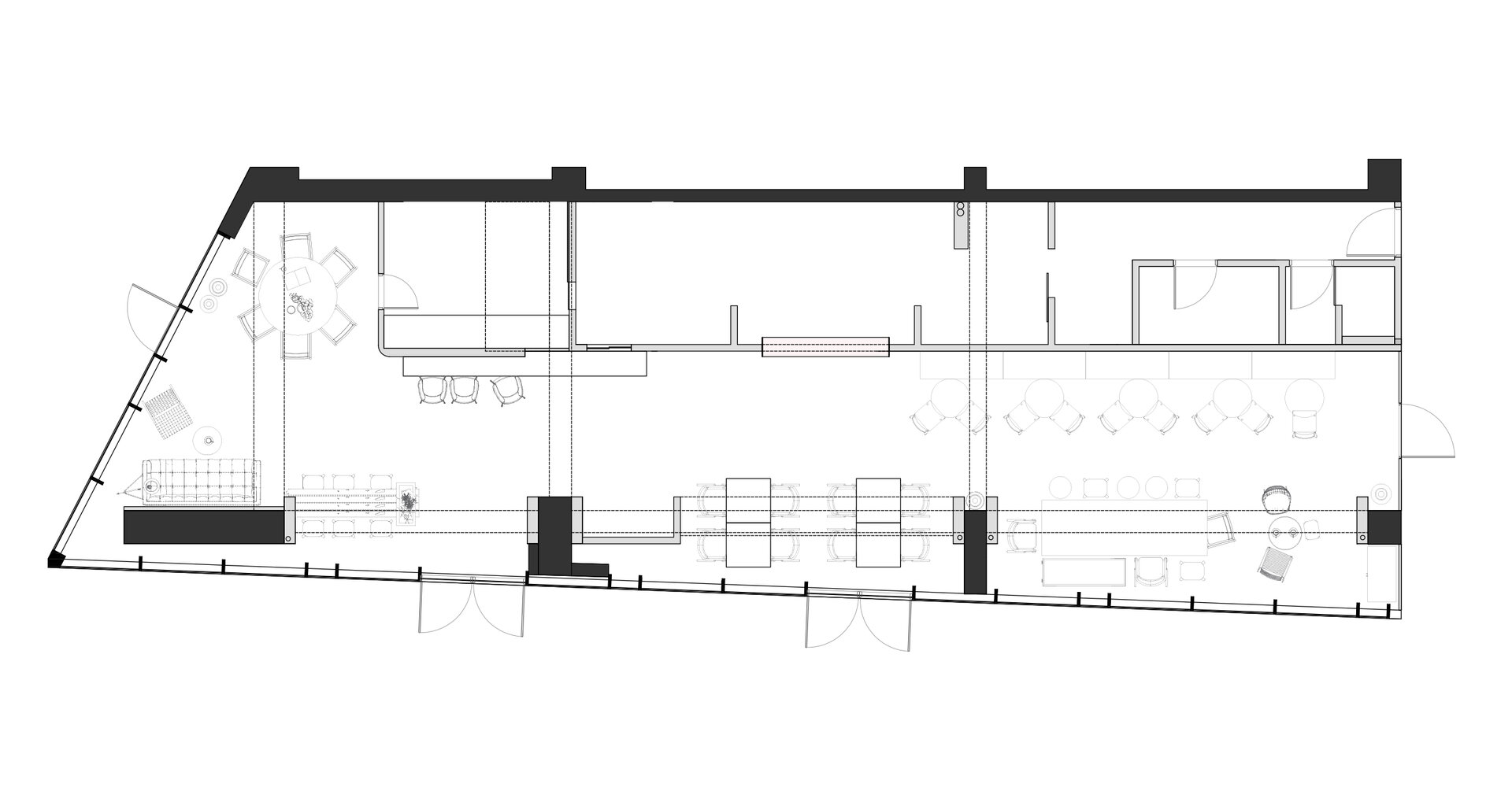
Barul masiv și precis conturat, devine elementul de ancorare al interiorului. Volumul său din beton este accentuat prin inserții subtile de lumină indirectă. În jurul acestuia se organizează întreaga dinamică a spațiului, barul funcționând nu doar ca o zonă de servire, ci și ca reper vizual și punct de socializare.
Un rol definitoriu îl are bucătăria deschisă, prin eliminarea graniței tradiționale dintre prepararea și consumul mâncării, procesul culinar este transformat într-un spectacol accesibil privirii, parte din atmosfera locului. Această transparență intensifică sentimentul de comunitate și încurajează dialogul direct dintre gazdă și oaspete.
Iluminatul completează experiența spațială printr-un scenariu stratificat. Ziua, vitrajele ample deschid spatiul interior către exterior. Prezența plantelor, distribuite strategic în interior și la nivelul terasei exterioare, asigură continuitatea cu peisajul natural al lacului din apropiere. Vegetația are rol nu doar estetic, ci și de moderare a materialelor dure, transformând bistroul într-o grădină suspendată, un spațiu de tranziție între construit și natural. Noaptea, corpurile suspendate din fibre naturale și accentele discrete de lumină temperează duritatea materialelor brute, introducând o dimensiune intimă și caldă. Lumina devine astfel instrument de proiectare, utilizat pentru a recalibra percepția spațiului și pentru a sublinia straturile materiale.
Prin orchestrarea materialelor brute, a luminii naturale și artificiale și a funcțiunilor desfășurate într-un cadru deschis, Luna Bistro devine o experiență senzorială completă, în care materia, lumina și natura se întrepătrund. Minimalismul său nu este rigid, ci locuit de texturi, de transparențe și de elemente calde, ce transformă austeritatea în familiaritate.
Astfel, Luna Bistro se definește ca un loc în care se întâlnesc două dimensiuni aparent opuse – sinceritatea brută a betonului și delicatețea materiei organice, fuzionând într-o arhitectură interioară contemporană, curată și memorabilă.