
Comentariul autorului:
Poziționat în intersecția de la Răzoare, situl aduce cu sine o serie de necesități și oportunități. Acestea, odată explorate, converg într-o soluționare arhitecturală menită să revitalizeze și să dinamizeze, prin crearea unei suite de trei clădiri multifuncționale, anume Nodul Intermodal, Clădirea de Birouri și Aparthotel și Centrul de Afaceri și Conferințe, alcătuind un pol urban.
Spațiile exterioare ale celor trei clădiri fac parte dintr-un culoar verde urban propus, ce pornește de la Grădina Botanică „Dimitrie Brândză” și continuă printr-un parc la sol, lângă Nodul Intermodal, și un parc suspendat, brodat cu piste de biciclete, de alergare și mobilier urban, interconnectând clădirile cu Șoseaua Panduri.
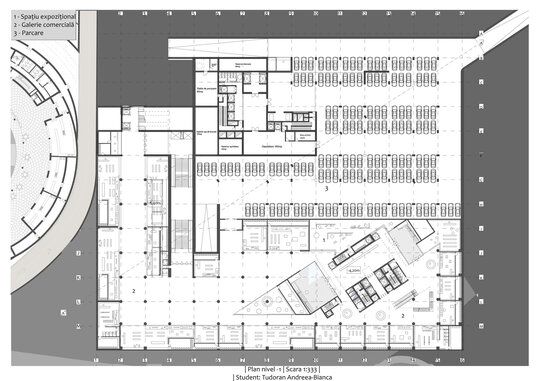
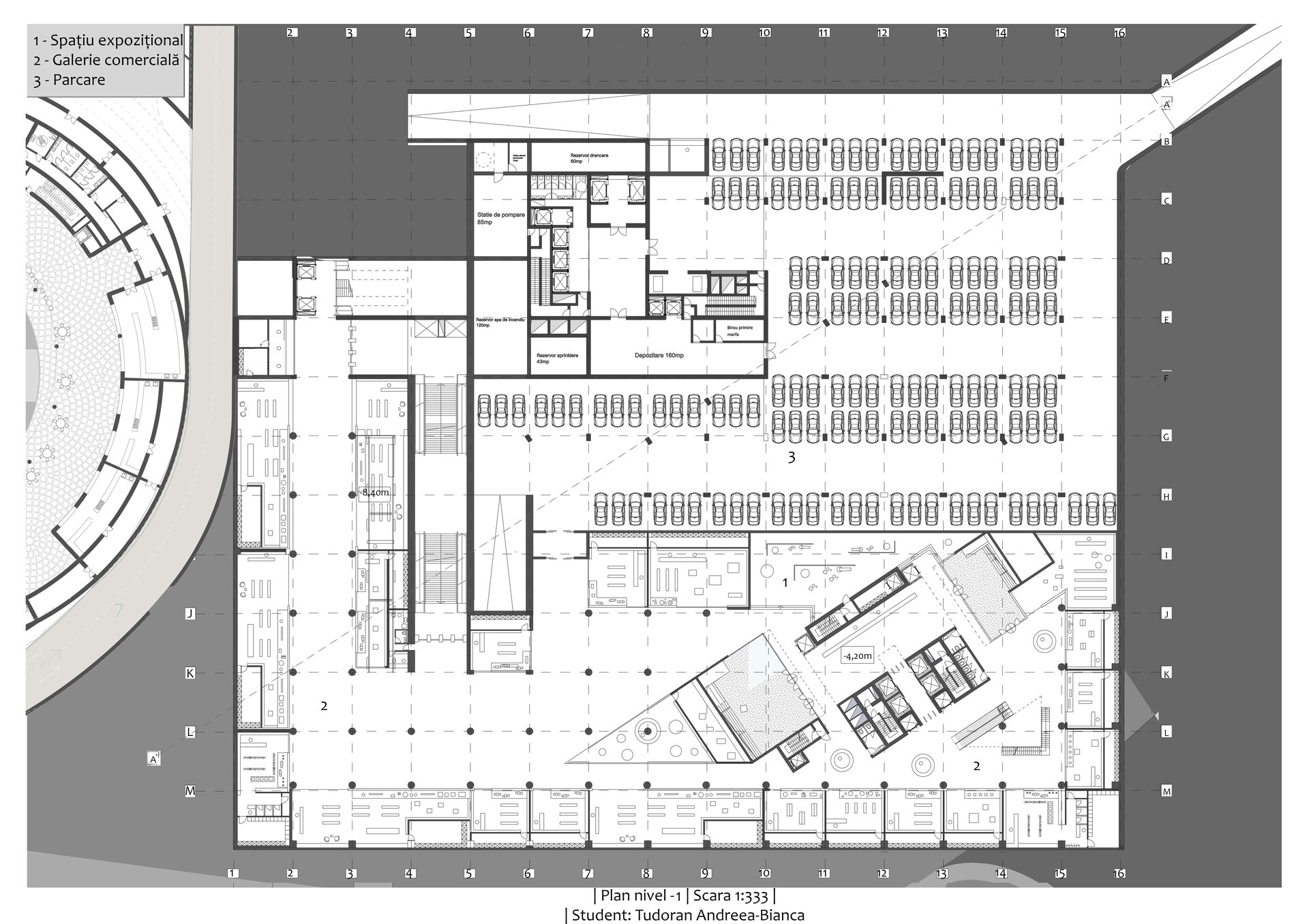
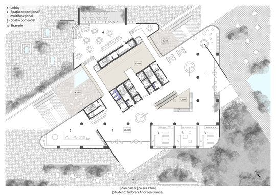
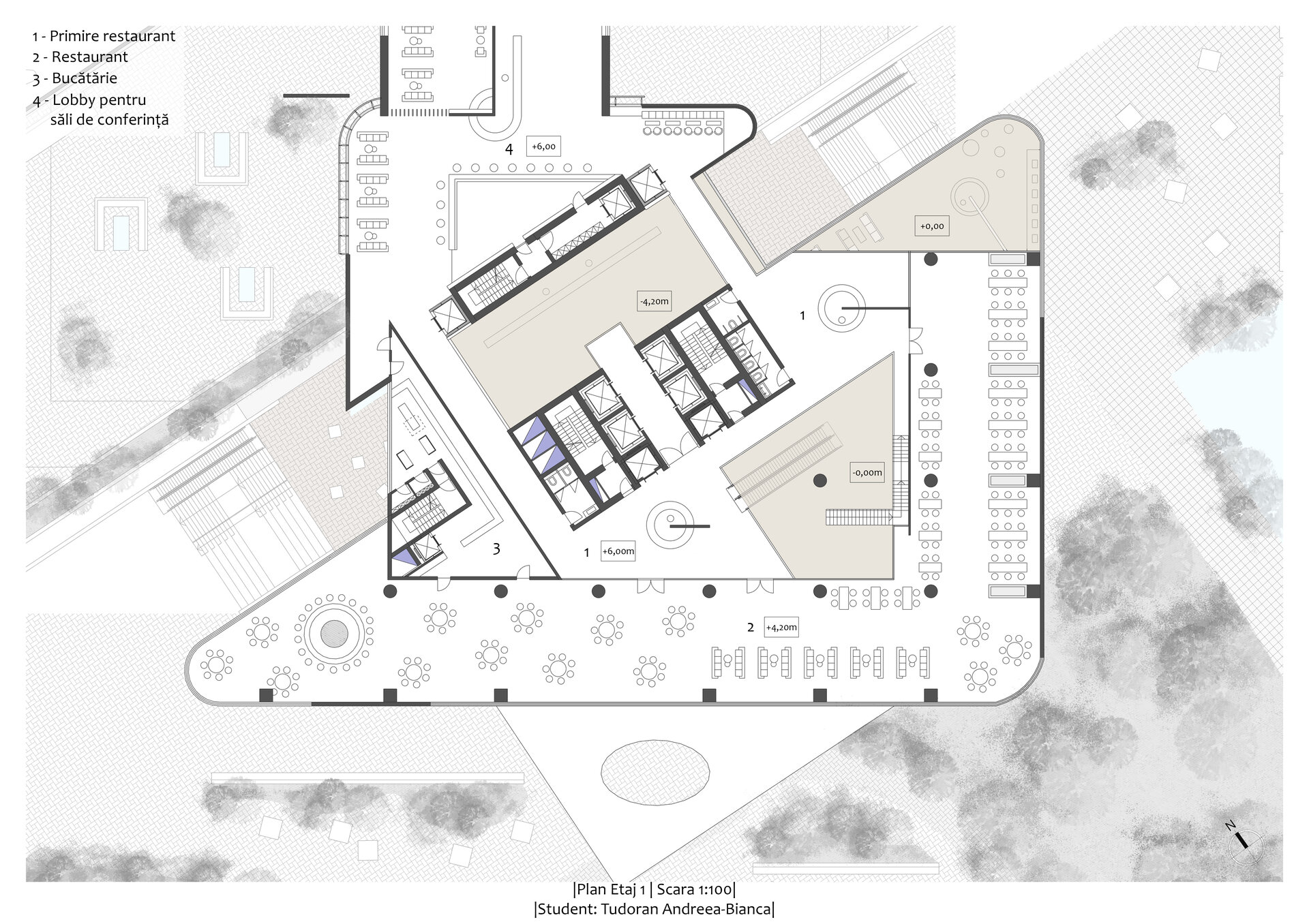
În acest ansamblu, obiectul arhitectural realizat este Centrul de Conferințe și Birouri. Rolul său este de a prelua fluxurile de utilizatori direcționate atât din partea Nodului Intermodal, ce reprezintă conexiunea principală cu metroul Academia Militară cât și din partea complexului de birouri adiacent și a le distribui spre coridoarele de circulație. Toate cele trei construcții sunt interconectate atât printr-un subsol comun, dotat cu o galerie comercială, ce pune în valoare conexiunea cu metroul, cât și la nivel suprateran, printr-un corp suspendat deasupra pieței comune.
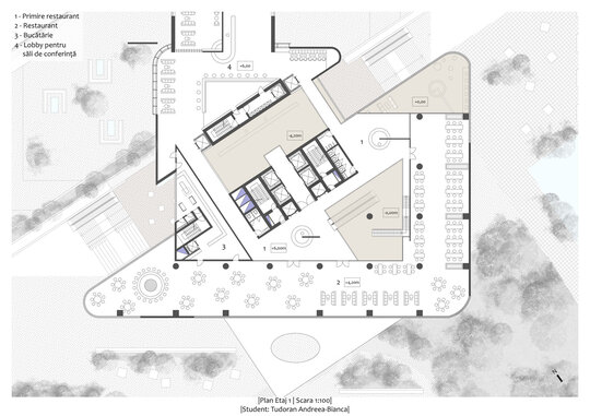
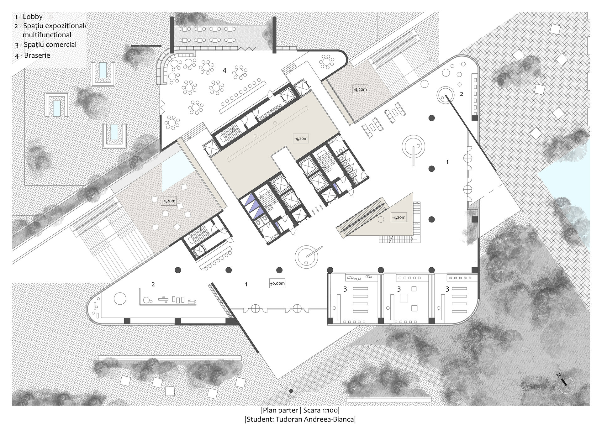
Compoziția volumetrică a clădirii este juxtapusă cu zonificarea sa funcțională. Cele două turnuri, cuprinzând spații de birouri și, respectiv, săli de conferințe, sunt aglutinate printr-un spațiu median de tranziție, cu o înălțime liberă deschisă pe 10 niveluri, făcând legătura între turnuri printr-o serie de pasarele. Corpul ce stă la baza turnului de birouri, adăpostește funcțiuni care deservesc comunitatea, precum: restaurant, braserie și o bibliotecă multimedia.
Accesul principal al clădirii se realizează de la nivelul -1, poziționat în spațiul de tranziție dintre cele două turnuri, de unde este primit fluxul cel mai consistent de utilizatori, întărit de prezența metroului. Acesta este accentuat prin realizarea unei piețe scufundate, ce acuză verticalitatea spațiului median descris anterior, oferind o perspectivă ascendentă dinamică asupra pasarelelor.
În ceea ce privește planimetria ansamblului, aceasta se poziționează paralel cu Academia Militară și, implicit, Șoseaua Panduri, introducând și o nouă linie de forță, redată de forma triunghiulară a amprentei la sol. Această nouă direcție are rolul de a prelua circulația pietonală de pe Strada Progresului și de a o redirecționa către coridorul verde propus, tranzitând pieța comună dintre cele două clădiri de birouri.
Din punct de vedere al materialității, contrastul dintre plinul plăcilor ceramice și transparența suprafețelor vitrate de tip double skin evidențiază spațiul median de tranziție dintre cele două turnuri.
Concluzionând, ansamblul propus reinterpretează spațiul urban prin integrarea armonioasă a clădirilor multifuncționale și a zonelor verzi, creând un pol urban dinamic.