
Comentariul autorului:
Amplasamentul este localizat pe Strada Uzinei Electrice, în imediata apropiere a centrului istoric al municipiului Cluj-Napoca. El este situat pe un important traseu pietonal, cu caracter preponderent verde, desfășurat de-a lungul râului Someș, între Parcul Central și Parcul Sportiv Universitar „Iuliu Hațieganu”. În vecinătatea terenului se află ansamblul format din Stadionul Cluj Arena, Sala Polivalentă și fostul Ștrand Municipal. Istoric, amplasamentul se situa la capătul promenadei principale a grădinii urbane a orașului, care se încheia în dreptul actualei Străzi Uzinei Electrice.
În anul 2013 beneficiarul a achiziționat pentru amenajarea sediului companiei terenul pe care se găsea o clădire cu patru etaje construită în 2005, pe baza unui proiect al S.C. Dico și Tigănaș S.R.L., având finalizate închiderile exterioare, dar fără compartimentări și finisaje interioare, rămasă îndelung nefolosită.
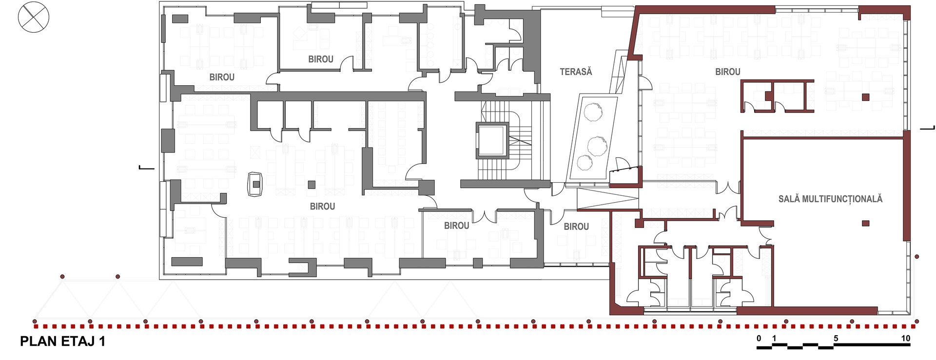
În paralel cu amenajarea spațiilor interioare din corpul existent, s-a dezvoltat conceptul pentru extinderea cu un corp nou D+P+1. Acesta completează funcțiunea de birouri, dominantă în corpul existent, cu o sală multifuncțională, camere de servere dedicate serviciilor de telecomunicaţie și spații anexe necesare acestora.
Extinderea clădirii existente a fost concepută astfel încât corpul nou de clădire se păstreze aliniamentul definit de Sala Polivalentă, aflată atunci în construcție. Acest aliniament a generat, în dreptul corpului existent, o terasă cu rol de spațiu de primire, accesibil printr-o rampă dinspre Aleea Stadionului și prin trepte dinspre Strada Uzinei Electrice. Totodată, aliniamentul propus a ținut cont de restructurarea profilului Străzii Uzinei Electrice și de introducerea unei străpungeri în țesutul existent, menită să stabilească o legătură între Podul Garibaldi și Calea Moților, una dintre principalele artere de trafic ale orașului.
S-a urmărit o concepție arhitecturală coerentă, menită să unifice caractere diferite și să reflecte transparent funcțiunea de centru de telecomunicații, integrându-se totodată armonios în contextul zonei printr-un perete verde continuu. Acest paravan de vegetație preia prezența zonei verzi de pe Aleea Stadionului și o continuă pe Strada Uzinei Electrice, marcând astfel memoria locului unde se încheia promenada verde a orașului și unde funcționa prima uzină electrică din regiune, care a dat numele străzii. În același timp, peretele verde definește zona de primire a unor funcțiuni publice, delimitând un spațiu semipublic protejat, destinat așteptării și recreerii pentru utilizatori și vizitatori.
Caracterul verde s-a extins și pe fațadele clădirii existente prin prezențe punctuale, reprezentate de jardiniere integrate în ritmul neregulat al ferestrelor. Registrele orizontale puternic marcate prin brâie ale fațadelor existente au fost preluate în zona de racord vitrat pe două niveluri dintre corpul existent și cel nou.
În contrast cu fațadele clădirii existente, caracterizate prin șiruri de ferestre ce definesc registre orizontale, corpul nou se prezintă ca un volum sculptural. Forma sa a rezultat din condiționările terenului, care au generat inițial teșiri ale acoperișului, ulterior extinse pe întreg volumul. Acesta este dominat de suprafețe opace, reflectând funcțiunile pe care le adăpostește, iar ferestrele sunt grupate în decupaje mari.
Contrastul dintre volume este mediat de peretele verde, susținut de stâlpi din lemn prevăzuți cu izolatori ceramici, care evocă stâlpii de telecomunicații, făcând trimitere la funcțiunea clădirii și aducând un omagiu locului unde se afla vechea uzină electrică a orașului. Partea inferioară a stâlpilor din lemn este prevăzută cu coliere din țeavă de oțel, prin care sunt fixați în consolă pe structura clădirii, lăsând spațiul de jos liber pentru solul din care cresc plantele cățărătoare.
Cabluri metalice, pornind de la baza stâlpilor, conduc plantele spre zona superioară, delimitată de elemente perimetrale din țeavă pătrată, unde vegetația se îndesește, creând efectul vizual al unui paravan.
Fațadele corpului nou prezintă o textură adaptată volumetriei neregulate a clădirii, obținută prin placare ventilată cu fibrociment, material care pune în valoare forma sculpturală a volumului. Stereotomia fațadei a pornit de la o textură triunghiulară, a cărei uniformitate a fost treptat fracturată. Pornind de la dimensiunile plăcilor de fibrociment, au fost concepute mai multe tipuri de debitare, folosind plăcile integral, astfel încât pierderile să fie minime.
Între cele două corpuri ale clădirii a fost creată o curte interioară cu vegetație, protejată față de stradă prin corpul de legătură. Spre această curte se deschid atât zona de birouri din corpul nou, cât și nucleul de circulație verticală din corpul existent.
Poziționarea sa pe latura corpului existent orientată spre extindere permite ca nucleul de circulație verticală să deservească ambele corpuri ale clădirii. Liftul, situat central, este placat cu sticlă securizată, iar scara în trei rampe este finisată cu piatră naturală și gresie. Porțiunea centrală a treptelor este marcată prin modul de dispunere a materialelor, amintind de scările monumentale din clădirile istorice.
Amenajarea interioară este unitară în cele două corpuri ale clădirii, urmărind crearea unei atmosfere prietenoase, familiare, în zona de birouri. Pardoseala este realizată din mochetă dale, iar zonele centrale și de circulație sunt evidențiate printr-un model combinat din trei nuanțe de gri.
La tavane au fost montate plăci de gipscarton perforate, cu proprietăți acustice, menite să reducă zgomotul în birourile open-space. Pentru a menține tavanele cât mai libere, ventilo-convectorii au fost amplasați încastrați în pereți, iar pentru iluminatul direct al spațiilor de lucru s-au utilizat corpuri de iluminat cu picior. Iluminatul general a fost asigurat prin corpuri confecționate din material textil translucid, montate pe o structură tridimensională din bare și iluminate din spate.
Zona de prezentare a produselor de la parter a fost amenajată conform conceptului magazinelor companiei.
Lucrările s-au desfășurat etapizat: amenajarea corpului existent a început în 2014 și a continuat până în 2016, fiind reluată în 2018. Din 2019 au început lucrările de extindere cu corpul nou, recepționat în 2023, lucrările fiind finalizate în 2024.