
Comentariul autorului:
De ce teatru? De ce locuire? De ce Calea Moșilor?
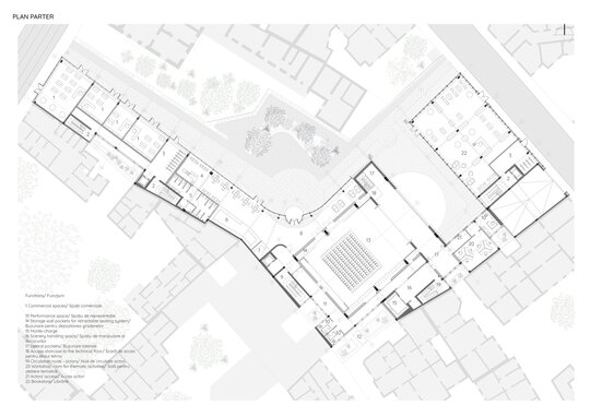
Proiectul de diplomă propune revitalizarea zonei Sf. Gheorghe Vechi – Calea Moșilor, printr-o intervenție mixtă cu rol de catalizator comunitar. Alegerea binomului funcțional teatru – locuire pornește de la o analiză a carențelor majore ale zonei – lipsa funcțiunilor culturale la est de Bd. I. C. Brătianu, starea avansată de degradare a clădirilor și absența unor spații publice vii.
Intervenția vizează repararea unei rupturi din țesutul istoric printr-un gest urban curajos, care recuperează modelul de locuire tradițională, cu spații comerciale la parter, și adaugă o funcțiune culturală activatoare – teatrul. Fiind gândit ca un spațiu polivalent, cu 7 scenarii de configurare spațială este capabil să găzduiască spectacole, proiecții, evenimente publice și activități comunitare. Întrucât există un scenariu în care acesta se deschide către curtea interioară și apoi către oraș, poziționarea strategică pe Calea Moșilor permite generarea de noi practici de utilizare a spațiului public și susține transformarea zonei într-un traseu cultural pietonal.
Conceptul derivă din ideea de "tăietură" în țesutul construit dens, o alveolă culturală în jurul căreia se organizează două tipuri de locuire distincte, corespunzătoare celor două străzi adiacente. Pe Calea Moșilor este prezentă o locuire cu caracter temporar, dedicată în special tinerilor, cu funcțiuni comune precum sală de sport sau mini-cinema, iar pe Strada Radu Calomfirescu regăsim o locuire mai privată cu apartamente de 2-3 camere orientate spre stradă, precum și studiouri pentru artiști cu deschidere spre curtea scenei.
Fațadele celor două corpuri locative sunt tratate diferențiat, reflectând caracterul fiecărei străzi, dar sunt unificate printr-un limbaj arhitectural comun, un joc de plin și gol, precum și prin existența unui registru de parter vitrat. În cazul fațadelor interioare, pentru a susține acest gest de „tăietură în țesut”, plinul este realizat dintr-un material translucid, creând o relație subtilă între interior și exterior. Seara, elementele translucide realizate din profile U de sticlă tratată Low-E, cu inserții de argon, devin o sursă difuză de lumină, vizibilă în țesutul dens ca un semnal nocturn de siguranță. Ziua permit o mai bună luminare a camerelor păstrând atât intimitatea cât și confortul termic.
Intervenția vizează obținerea unui echilibru între fluxul cultural și cel rezidențial, oferind un cadru pentru coexistență și regenerare. Într-un context marcat de criza locuirii și subfinanțarea culturii, combinarea acestor funcțiuni nu este doar strategică, ci necesară – fiecare susținând și justificând existența celeilalte.
Această balama între două tipuri de țesut devine o platformă pentru regenerarea socială și culturală a unei zone uitate din inima Bucureștiului. Deși o intervenție punctuală, poate fi privită ca unul dintre primii pași în procesul de reactivare al identității istorice a Căii Moșilor.