
Comentariul autorului:
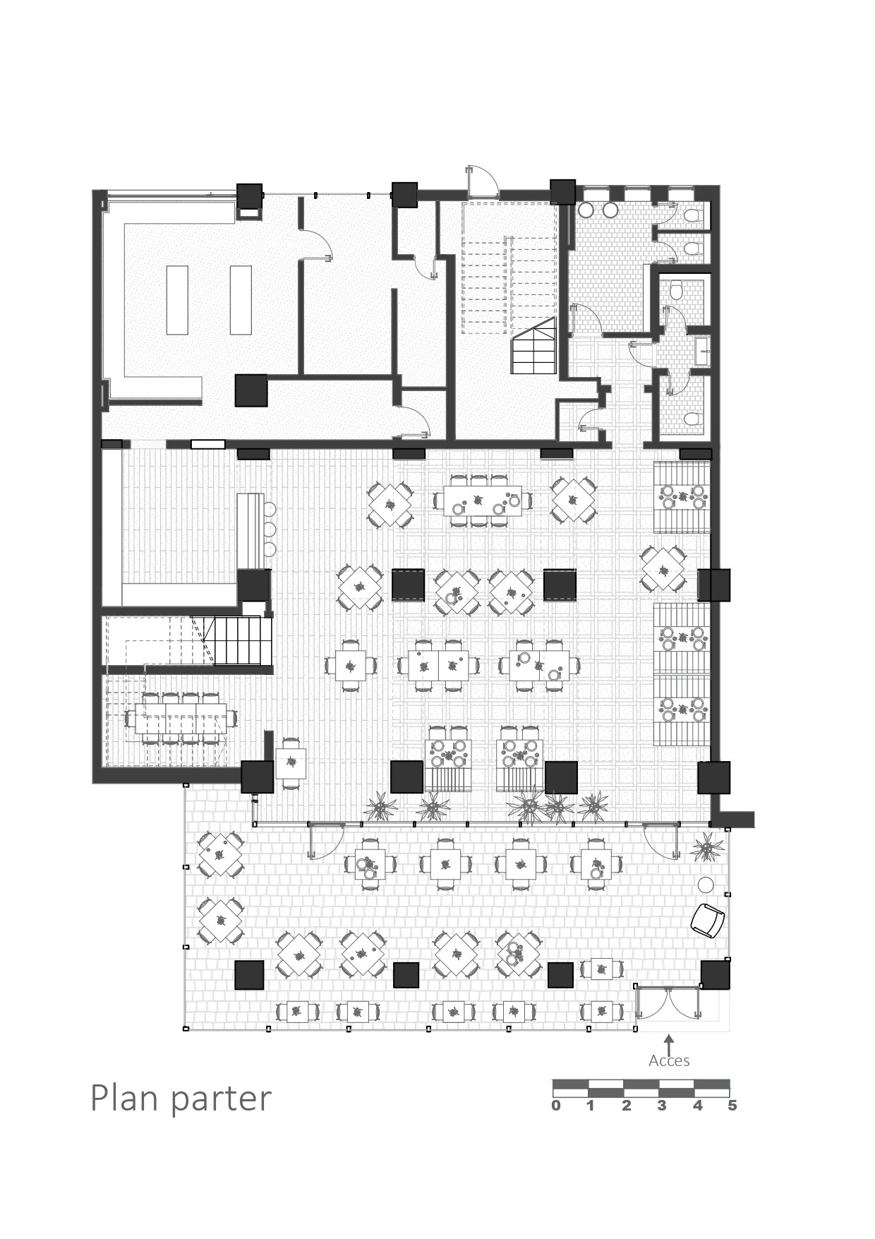
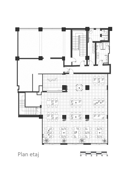
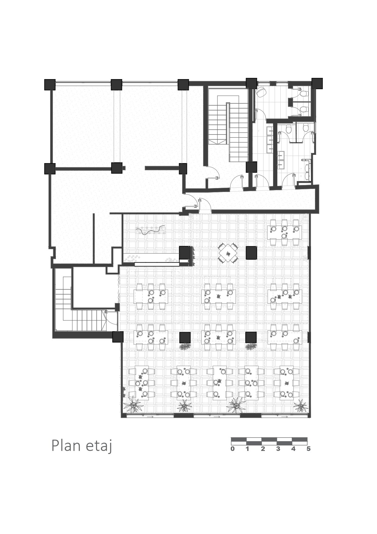
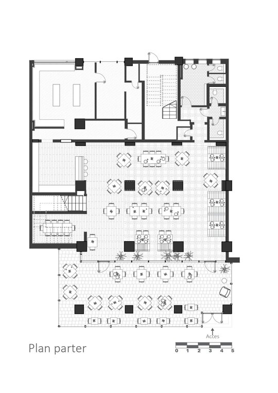
“The Bistro” se întinde pe o suprafață de 130 mp la parter și 100 mp la etaj, având o terasă generoasă, închisă pe timpul iernii și cu posibilitatea de deschidere în sezonul cald. Amenajarea a fost gândită în jurul dorinței beneficiarului de a crea un spațiu cald, primitor, care să ofere o atmosferă confortabilă și să aibă elemente distinctive, ușor de reținut. În ceea ce privește paleta cromatică, am ales finisaje naturale și calde, care să transmit o senzație de rafinament subtil și autenticitate. Verdele smarald, nuanțele de auriu mat și gri elegant se regăsesc în detaliile de decor, completând perfect un spațiu care invită la relaxare. Texturile naturale, incluzând lemnul, au fost folosite în mod strategic pentru a adăuga o notă de căldură și confort, în timp ce structurile de lemn din zona de stâlpi au fost integrate în mod armonios în conceptul general al designului. Acești stâlpi nu doar ca au fost conservați, dar au fost puși în valoare pentru a adăuga un caracter aparte spațiului, creând un contrast frumos între elementele moderne și cele tradiționale.
De asemenea, panourile din lemn masiv au fost folosite ca elemente decorative care conferă restaurantului un aer somptuos și elegant. Aceste detalii din lemn au fost integrate cu intenția de a adăuga un strat suplimentar de textură, contribuind la crearea unui ambient cald, dar și sofisticat. Fiecare detaliu, de la finisaje până la mobilier, a fost ales pentru a exprima personalitatea complexă a spațiului și a satisfice nevoile funcționale ale unui restaurant de carne de vită.
În ansamblu, “The Bistro” reunește estetica unui restaurant elegant cu funcționalitatea unui spațiu modern, creând un loc memorabil, în care fiecare element își are rolul său în a transforma experiența vizuală și culinară într-una deosebită.