
Comentariul autorului:
Studiul se concentrează asupra modului în care patrimoniul construit poate fi reactivat prin intervenții arhitecturale și urbane, utilizând traseul cultural ca instrument de regenerare și de articulare a obiectelor orașului într-o structură coerentă, narativă și experiențială. Se investighează rolul latent al Casei Macca, reședință aristocratică din secolul al XIX-lea, care, din 1931, adăpostește sediul Institutului de Arheologie „Vasile Pârvan”. Deși clădirea deține o valoare istorică semnificativă și ocupă o poziție urbană strategică, ea rămâne deconectată de traseul public. Mai mult, Casa nu dispune de spațiile necesare pentru laboratoare de cercetare, facilități de restaurare a materialului arheologic sau arhive pentru artefacte, iar numeroase piese litice antice (sarcofage, stele funerare, fragmente arhitecturale) nu beneficiază de condiții adecvate de depozitare sau expunere.
Terenul de intervenție se află în imediata vecinătate a Casei Macca, în centrul insulei urbane, pe o parcelă ce face parte din Parcul Nicolae Iorga. Situl se plasează la granița dintre axa culturală definitorie a orașului, Calea Victoriei — conectată prin intermediul parcului, zonă verde de tranziție către miezul insulei urbane — și țesutul rezidențial istoric, ce exprimă dimensiunea intimă a orașului. Intervenția propusă este, așadar, atât un act de reactivare urbană, cât și un răspuns la nevoile concrete ale instituției: spații specializate pentru cercetare, laboratoare, zone de colaborare interdisciplinară și un muzeu de tip lapidariu, care deschide activitatea științifică către publicul larg.
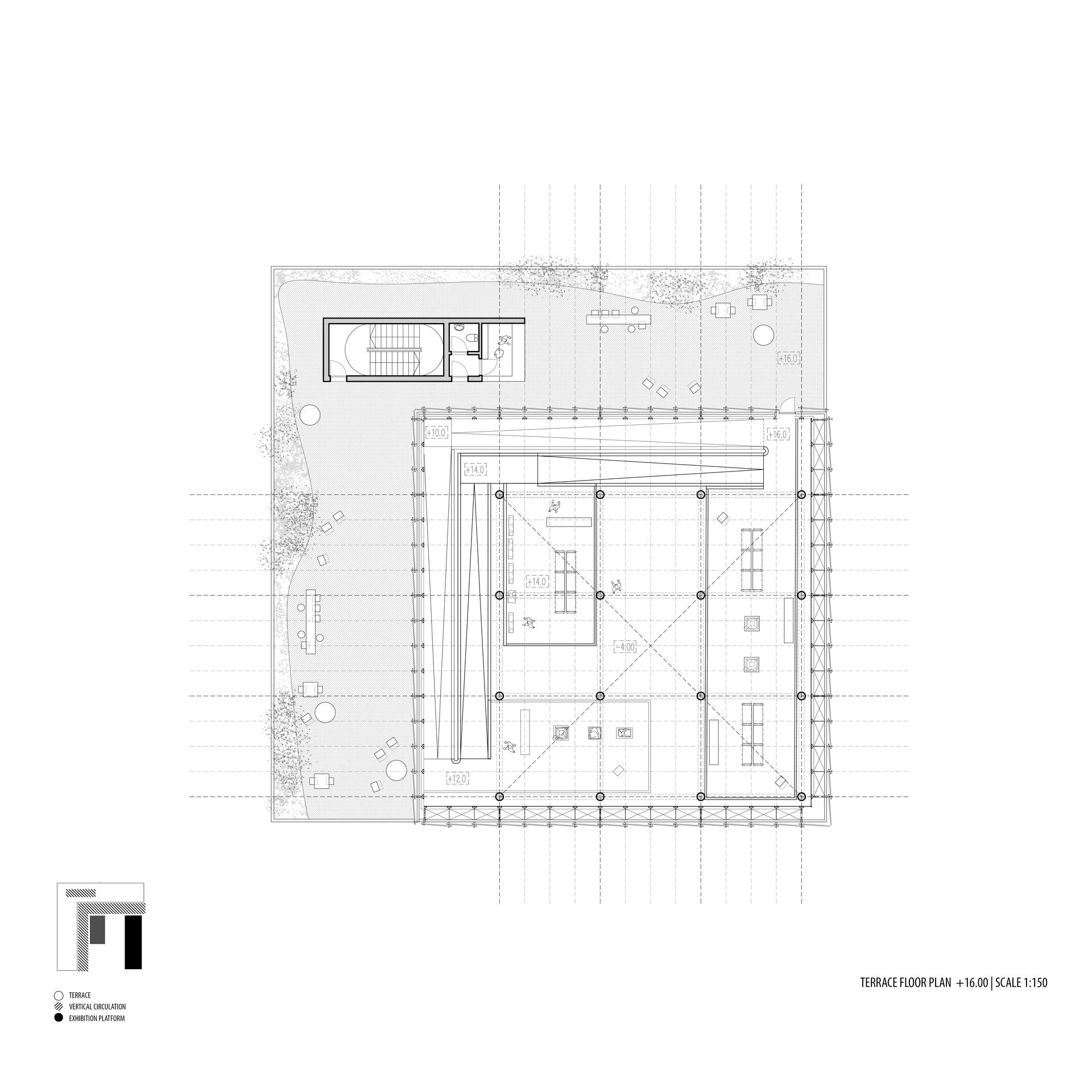
Strategia proiectului propune crearea unui traseu cultural secundar, derivat din axa principală a Căii Victoriei, alcătuit dintr-o succesiune de obiecte și grădini. Acest nou traseu funcționează ca o structură narativă: începe cu o piațetă minerală, menită să anunțe prezența evenimentului urban, atinge punctul culminant în dreptul muzeului lapidariu și se încheie cu Casa Macca.
Configurația spațială a noului volum derivă dintr-o analiză atentă a sitului. Se disting două tipuri de limite: pe de o parte, frontul solid și închis al țesutului rezidențial adiacent; pe de altă parte, marginea deschisă și poroasă a parcului. Acest contrast a generat planul în formă de L și articularea a două volume distincte, cu expresii arhitecturale diferite. Dualitatea se reflectă atât la nivel volumetric, cât și structural, subliniind rolurile complementare ale celor două corpuri. Un volum opac și introvertit adăpostește funcțiunile private ale Institutului de Arheologie, în timp ce celălalt, translucid și deschis, găzduiește un traseu expozițional vertical destinat publicului: o succesiune de platforme plasate la cote diferite și conectate prin rampe, configurând un parcurs ascendent care, la fiecare pas, dezvăluie o perspectivă nouă. Platformele, variate ca proporții și poziționare, se dispun în jurul unui gol central iluminat zenital, generând relații spațiale dinamice pe verticală și un echilibru subtil între plin și gol.
Cubul translucid este învelit într-o fațadă dublă de sticlă, adaptată orientării sudice. Primul strat, alcătuit din panouri de sticlă fixate punctual pe console de tip spider și rigidizate prin cabluri, asigură închiderea etanșă a clădirii. Al doilea strat filtrează lumina, creează o zonă tampon de aer și contribuie la reglarea termică a interiorului. Acest înveliș exterior, realizat din panouri translucide suprapuse sub forma unor „solzi” de sticlă, este susținut de aceeași structură verticală, dar independent de sistemul de stâlpi care sprijină platformele și închiderea superioară a volumului.
Volumul în formă de L, masiv și introvertit, contrastează cu transparența cubului. Rampele sunt adosate acestui corp și definesc un traseu vertical desfășurat între două limite: masivitatea volumului instituțional și deschiderea către spațiul expozițional. Această poziționare generează percepția unui parcurs suspendat, care pare să plutească în tensiunea dintre cele două registre.