
Comentariul autorului:
Au trecut 36 de ani de la Revoluție, iar paradoxal este că, deși tranziția postcomunistă s-a încheiat – teoretic, odată cu integrarea în U.E. – modalitatea în care este apreciată producția arhitecturală de sub comunism rămâne confuză. Fondul construit postbelic este cu atât mai dificil de evaluat, mai ales din perspectivă patrimonială, atunci când este privit în relație cu producția arhitecturală a perioadelor anterioare. Dacă asumarea arhitecturii oficiale a regimului este (de la sine înțeles) problematică, căci a fost una dintre materializările fizice ale puterii politice, se deschide întrebarea - Cum poate fi asumată arhitectura industrială – „a doua casă” a oamenilor? Comunismul a încercat să creeze clasa de mijloc care lipsea din estul Europei, un ideal irealizabil pe structura socială a României. Însă, în forma ei de „încercare” este reală numeric și a dispărut din discursul public după 1989. Polarizarea socială creată de economia liberă a accentuat prăpastia, dincolo de vidul căruia se află ceilalți.
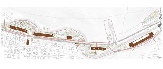
Sinaia are un exemplu atipic de sit industrial – un paradox urban – deoarece este diferit de oricare alt oraș cu o dimensiune sau rădăcini similare. Orașul a fost masiv industrializat în comunism, deși a avut un destin preexistent legat de rădăcinile monahale și monarhice. Fiecare rădăcină a Sinaiei trimite direct la un anumit tip de peisaj care formează peisajul complex al orașului (peisaj urban, industrial și natural), iar investigația merge dincolo de el: meta-peisaj.
Problemele pe care Sinaia le are în acest moment sunt legate de profilul economic monofuncţional şi excluderea rădăcinii industriale – mascată de celelalte două. Poate că soluția este privirea în trecutul recent pentru a debloca situația existentă.
Prin urmare, obiectivele studiului au fost crearea unui instrument bazat pe un set de principii pentru asumarea patrimoniului industrial (nu într-o manieră de patrimonializare, ci ca parte a unei politici urbane realiste) și încercarea de a rezolva profilul monofuncțional prin adăugarea de noi piloni economici compatibili.
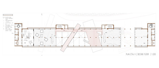
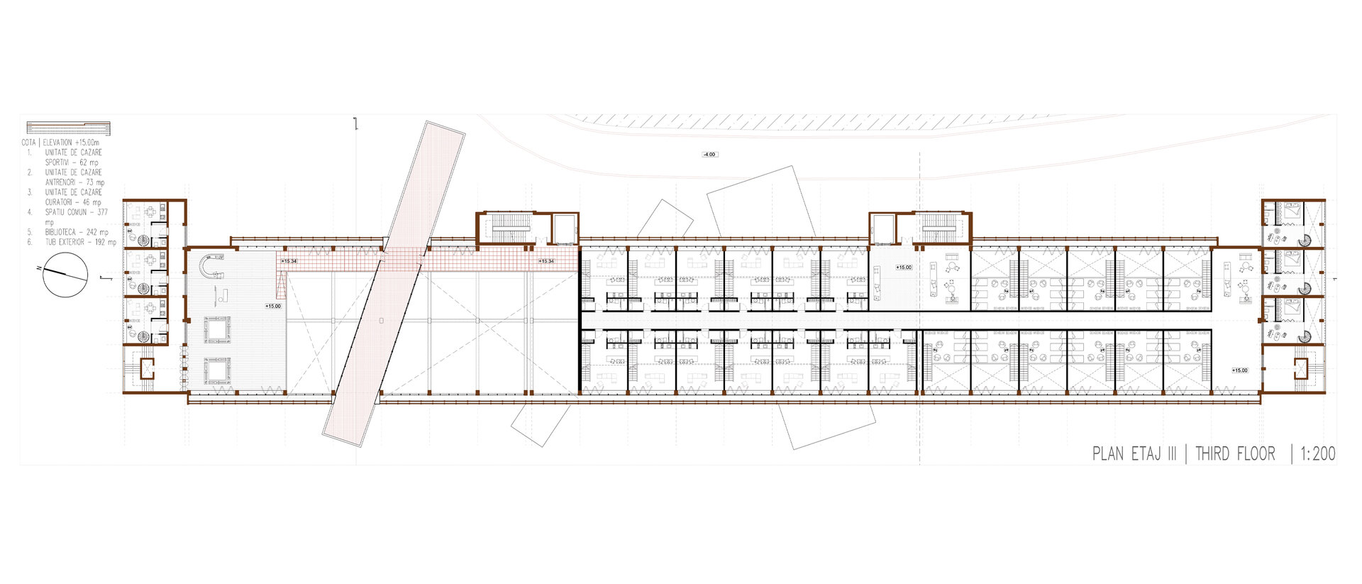
Proiectul de diplomă este conturat ca o demonstrație practică a unei abordări teoretice - a modului în care putem asuma patrimoniul industrial comun(ist) și cum putem modifica limitele peisajului în care este perceput. Situl industrial este împărțit în 5 secvențe după caracterul zonei și fiecare conține o clădire de ancoră. Principiile vor fi aplicate pe fiecare secvență prin conversie funcțională: 5 funcțiuni obișnuite diferite – pentru a dovedi potențialul de reutilizare adaptivă a acestor clădiri.
După adăugarea noilor funcțiuni și cu vegetația ca mediator neutru care rezolvă conflictul - clădirile sunt conținute de peisajul natural – este liberă să adauge un nou strat - o scriere peste.
Apoi se deschide o altă întrebare: putem crea o nouă urbanitate pe un fost sit industrial? Din această idee se formează promenada urbană – ridicată de la sol pentru a fi la nivelul orașului. Această promenadă atașează fiecare clădire prin funcțiunea, și implicit spațiul, care servește orașul, dar formează și mici momente urbane de-a lungul traseului.
Finalitatea studiului este deschiderea unei dezbateri asupra patrimoniului industrial construit sub comunism, care se distanțează de ideea de monument istoric – și implicit de tendința de a conserva orice urmă materială a trecutului – continuând din perspectiva unei moșteniri tangibile ce nu poate fi ignorată. În continuare, patrimoniul industrial comunist rămâne etichetat ca patrimoniu incomod, o prezență ce continuă să amintească de un trecut renegat. Caracterizarea acestui patrimoniu drept altfel, căci arată și se comportă diferit față de alte mecanisme industriale, ar fi un prim pas în deschiderea procesului de asumare – memoria rămâne, dar cu alt impact.