
Comentariul autorului:
În centrul istoric al Brăilei, la intersecția străzilor Golești și Galați, se află un petic de teren care păstrează vag memoria unei foste grădini de vară, un cinematograf în aer liber, o prezență abia conturată în fotografii vechi și texte nostalgice ce evocă farmecul de odinioară al străzii Golești. Acest proiect reinterpretează locul prin prisma unui centru comunitar intergenerațional, născut din dorința de a răspunde provocărilor sociale și urbane ale sitului.
Demersul arhitectural pornește de la constatarea unei polarizări accentuate între generații, cu precădere în ceea ce privește dificultățile de integrare a persoanelor vârstnice în viața urbană contemporană. Intervenția propune o reconfigurare a acestor relații, generând un cadru comun în care seniorii și copiii pot coexista activ, într-un spațiu deschis și incluziv. În același timp, se remarcă tendința de enclavizare a comunității în zonele periferice, în contrast cu centrul orașului – o zonă din ce în ce mai alienată, marcată de absența unor activități publice semnificative. Prin urmare, centrul comunitar propus devine un instrument de revitalizare urbană, oferind un program cu impact real asupra vieții cotidiene.
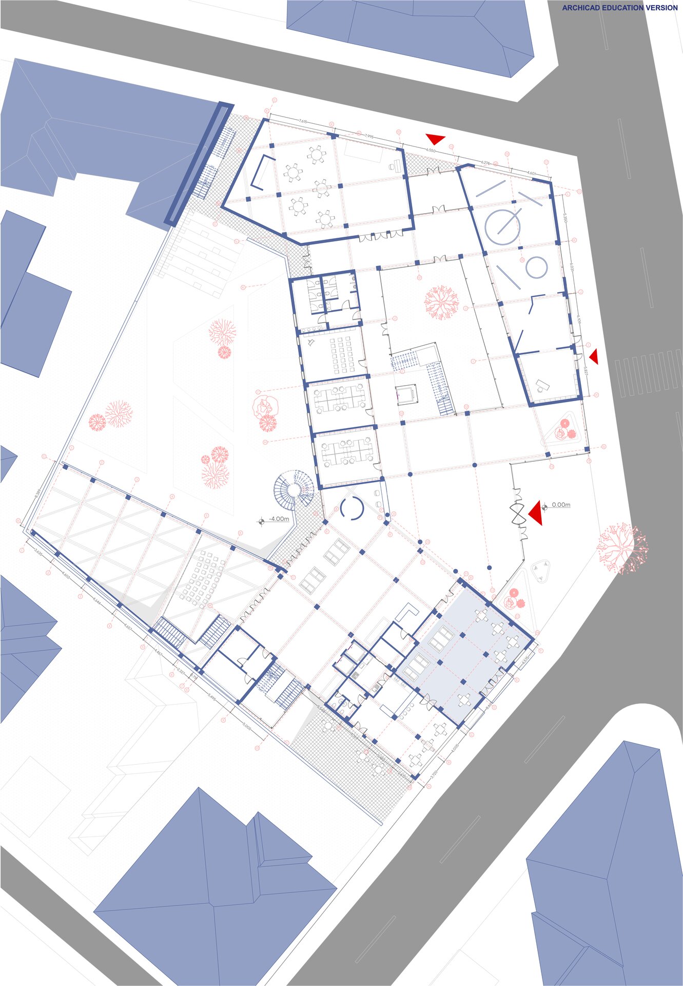
Amplasat într-un nod urban important, la confluența unor artere majore, situl beneficiază de o bună conectivitate cu restul orașului. Dimensiunea redusă a parcelei și scara sa intermediară susțin dezvoltarea unui centru comunitar adaptat contextului urban imediat. Țesutul construit este predominant omogen, dar punctat de intervenții arhitecturale care sugerează o diversitate bine controlată. În această logică, proiectul propune un contrast asumat și calibrat, un reper contemporan integrat atent în contextul existent. Din punct de vedere formal, acoperișul ondulat contribuie la această diversificare controlată a peisajului urban. Dinamica volumetrică rezultă dintr-o căutare atentă a unui echilibru între fragmentarea compozițională și unitatea spațială, obținută printr-un volum compact, coerent și adaptat scării locului.
Spațiul de acces, plasat strategic pe axa principală, și curtea interioară, decupată în masa construită, devin elemente cheie în organizarea compozițională. Curtea are un rol dublu: pe de o parte, permite integrarea centrului în cornișa urbană fără a o depăși excesiv; pe de altă parte, reinterpretează fosta grădină de vară, oferind un spațiu semi-public ce mediază tranziția spre zona rezidențială a lotului.
Funcțional, clădirea este articulată în jurul a două noduri verticale de circulație, care facilitează o distribuție clară și eficientă a fluxurilor. Programul include o serie de funcțiuni deschise publicului, sala polivalentă, cafeneaua, sala de expoziții, mediateca, completate de ateliere de creație, un salon social dedicat seniorilor și un spațiu de joacă destinat copiilor. Terasele circulabile asociate acestor funcțiuni extind experiența către exterior, permițând o comunicare vizuală și funcțională cu orașul. În centrul compoziției rămâne curtea interioară, animată de o structură de sticlă care adăpostește scara principală, un gest simbolic al transparenței, deschiderii și conectivității.