
Comentariul autorului:
Canalul Dunăre–București rămâne una dintre cele mai puternice proiecții ale modernității întrerupte. Conceput să unească orașul cu fluviul, el nu și-a îndeplinit niciodată scopul. Astăzi, fragmentele sale sunt martori tăcuți ai unei ambiții neterminate, dar și resurse latente pentru viitor.
În proiectul meu, canalul nu este doar infrastructură abandonată, ci devine un cadru pentru reconversie și imaginație, un teritoriu unde memoria industrială întâlnește natura, iar potențialul nefinalizat își găsește o nouă viață prin arhitectură și ecoturism. Astfel, la nivel teritorial, am realizat un circuit ce conectează cele patru ecluze ale răului - Copăceni, Fălăștoaca, Budești, Oltenița și cele două porturi, printr-o serie de dotări, ce face posibilă legătura București - Dunăre printr-un traseu velo. Intervențiile propuse au un grad de reversibilitate, tocmai pentru a respecta condiția unui fost-viitor șantier, unde memoria neterminată poate oricând fi reluată.
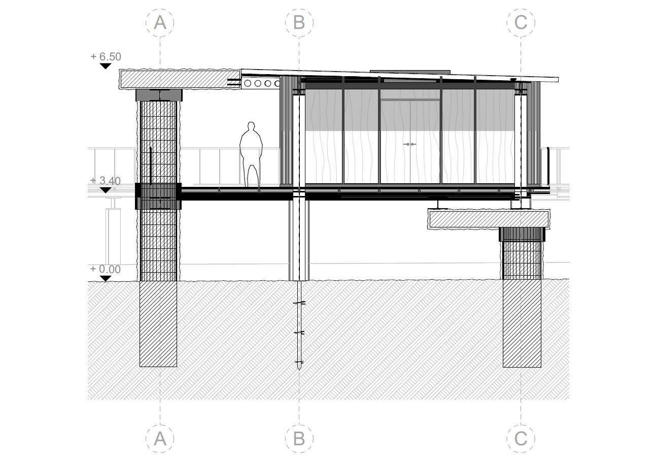
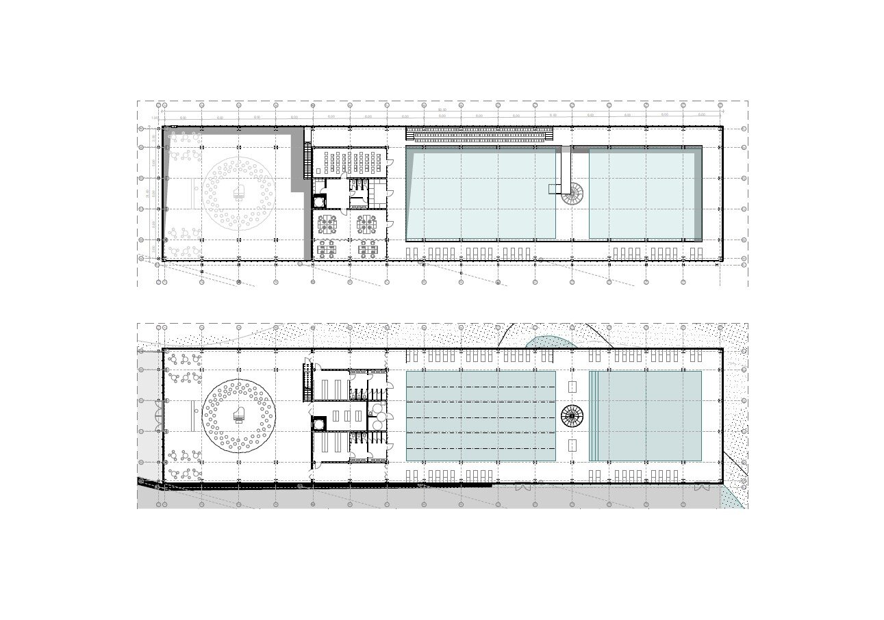
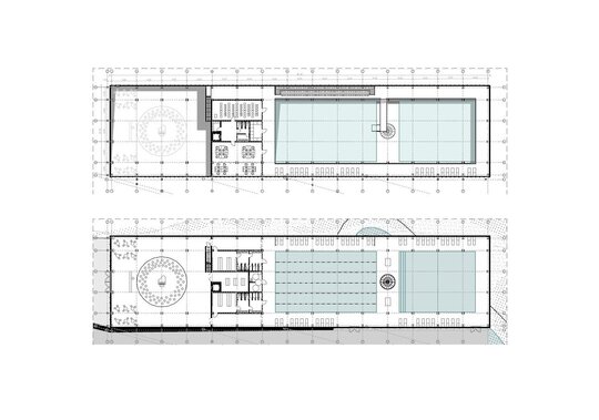
La nivelul întregului ansamblu, conectorul infrastructurii hidrotehnice va fi un parc liniar, realizat din nevoia reîntregirii culoarului verde albastru al Argeșului. Propunerea urmărește formalizarea activităților ad-hoc desfășurate pe tronsonul Dunăre - București. Proiectul propune reconversia unei foste ecluze din zona Oltenița într-un centru nautic, parte din ansamblul tehnic și peisagistic al ecluzelor, din cadrul râului Argeș. Amplasamentul, cu valoare istorică și peisageră a ultimilor 30 de ani, este reactivat printr-o intervenție care îmbină patrimoniul industrial cu funcțiuni ecoturistice și culturale. Noul centru devine un nod regional pentru activități nautice de tip caiac, canoe, plimbări pe Dunăre, cazare alternativă și explorare culturală. Totodată acesta devine un exemplu de reutilizare adaptivă în mediul rural riveran, contribuind la revitalizarea zonelor periferice prin turism durabil ce conturează o nouă lectură a peisajului.