
Comentariul autorului:
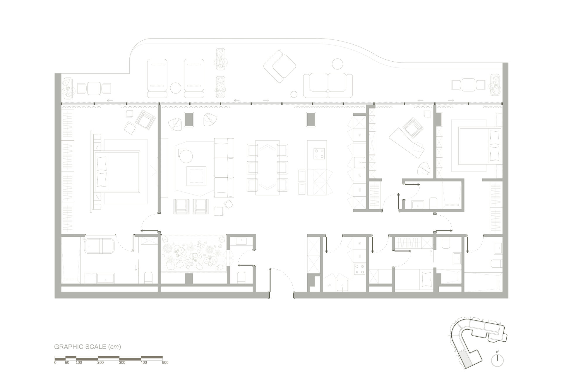
Proiectul este localizat în Dubai, într-un complex rezidențial din Palm Jumeirah. Amplasat la etajul 7, beneficiază de o deschidere amplă către skyline-ul orașului, valorificată printr-un balcon care se desfășoară pe toată lungimea apartamentului.
Configurația inițială includea trei dormitoare cu baie proprie și o zonă de zi extinsă cu o bibliotecă. Împreună cu clientul am decis transformarea unuia dintre dormitoare într-un birou, adaptând astfel compartimentarea la un mod de locuire mai flexibil.
Zona prevăzută inițial ca bibliotecă, tratată în plan ca o extensie a livingului, a fost înlocuită cu un terariu mineral cu cactuși. Această decizie a devenit punctul de plecare al întregii amenajări, generând toate celelalte alegeri și transformând terariul într-un reper vizual, ce reușește să aducă în interior un fragment din peisajul exterior.
Design-ul propus urmărește o direcție minimalistă, construită în jurul unor piese de mobilier și corpuri de iluminat iconice, care definesc spațiul fără să-l încarce și îi conferă un caracter atemporal, în contrast cu estetica decorativă specifică zonei. Zona de zi este definită de volume joase și tonuri neutre, iar travertinul leagă toate elementele într-un ansamblu coerent.
Dormitorul matrimonial a fost, de asemenea, configurat ușor diferit față de planul inițial, cu zona de dressing desființată și repoziționată în spatele patului, creându-se astfel o legătură vizuală directă cu baia.
Amenajarea depășește rezolvarea funcțională a spațiului, devenind un sanctuar interior în care materialele, lumina și mobilierul definesc o atmosferă calmă, echilibrată și profund legată de modul în care spațiul este locuit. Proiectul a fost posibil și datorită deschiderii clientului și interesului real al acestuia pentru design, care au permis conturarea unei viziuni clare, fără compromisuri, în jurul unor alegeri esențiale.