
Comentariul autorului:
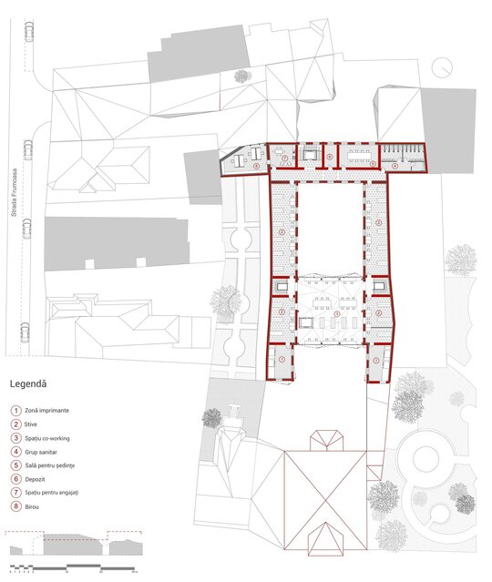
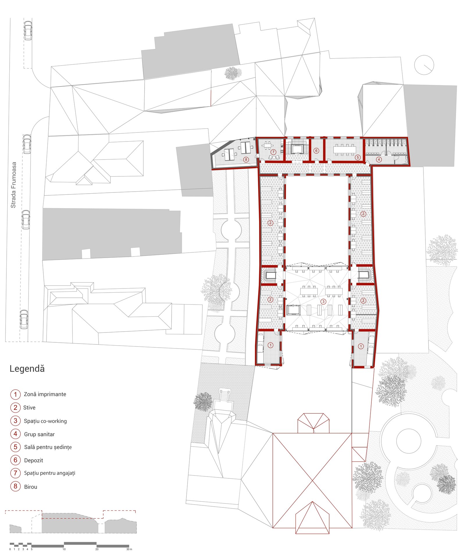
Proiectul propune conversia fostei Facultăți de Chimie, aflată în proprietatea Universității Politehnica din București, într-un spațiu public, cu funcțiune de bibliotecă(o alegere personală, neimpusă prin temă). Clădirea existentă, situată pe Calea Victoriei, păstrează o valoare istorică importantă, însă una dintre cele mai mari provocări ale sitului a fost rezolvarea curții din spate, înconjurată de numeroase calcane aparținând cladirilor adiacente. Acestea, cu înălțimi și geometrii variate, generau un ambient fragmentat și vizual deranjant. În loc să fie tratate ca obstacole, aceste calcane au devenit sursa de inspirație a proiectului. Neregularitatea lor a generat ideea unui gest arhitectural capabil să unifice și să valorifice întregul spațiu. Această idee a fost transpusă într-o structură pliata, cu geometrie dinamica, care reunește într-un mod coerent existentul si noul.