
Comentariul autorului:
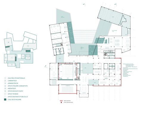
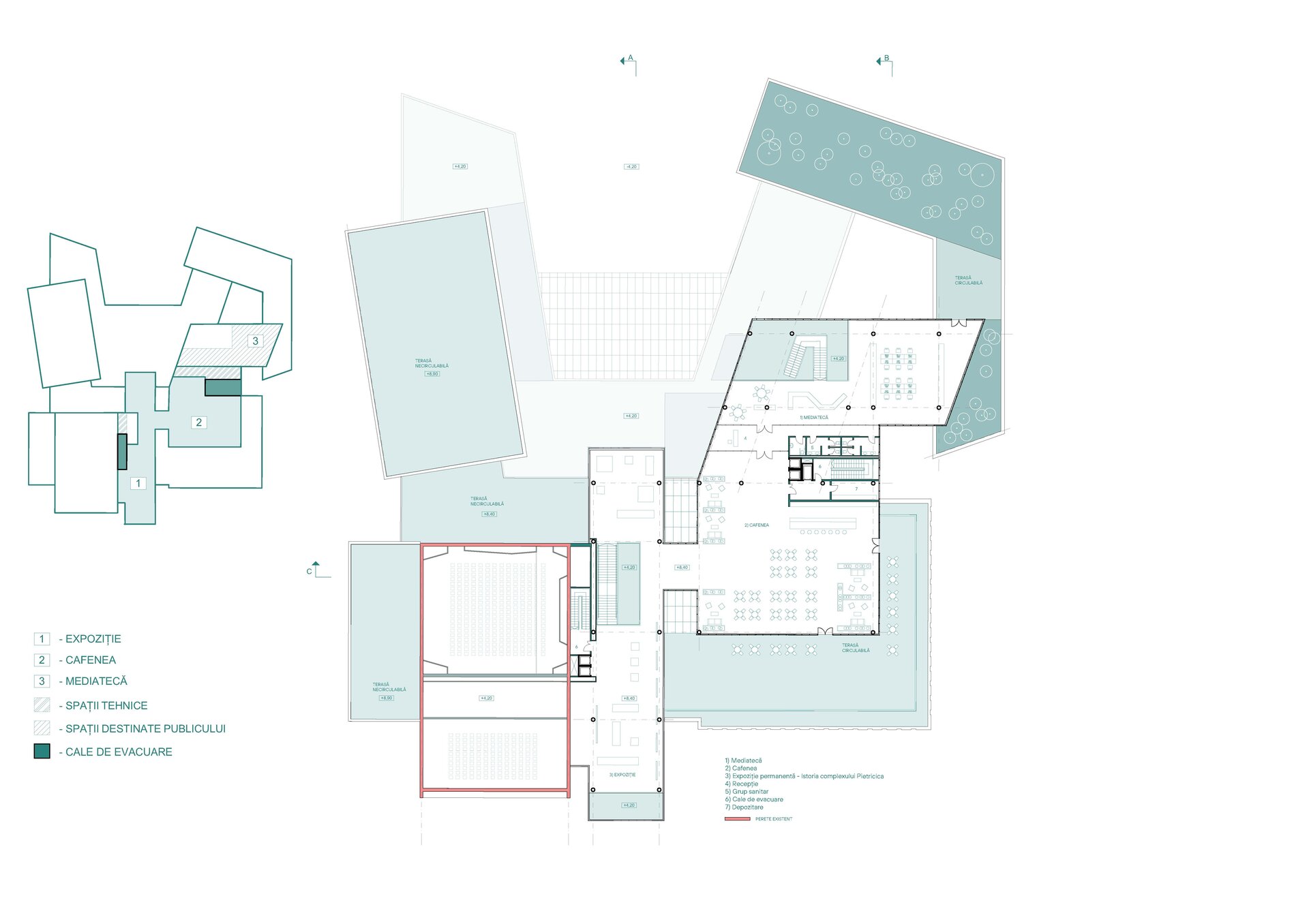
Orașul Piatra Neamț a fost puternic transformat în perioada sistematizărilor urbane din anii 1960, când s-au implementat centrele comerciale de cartier. Pe amplasamentul studiat se regăsește primul astfel de centru construit în oraș – Complexul Pietricica, un reper urban local cu valoare afectivă. Proiectul propune o intervenție ce combină demolarea parțială a ansamblului degradat cu conservarea a două volume emblematice: cinematograful și fostul restaurant. Aceste elemente sunt păstrate ca fragmente reprezentative ale arhitecturii moderniste din perioada comunistă, asumate ca parte a memoriei colective și reintegrate în viața contemporană a orașului. Gestul de conservare nu este doar o formă de omagiu, ci o strategie de contextualizare și reflecție asupra valorii istorice a unei epoci adesea ignorate.
În prezent, orașul suferă de un deficit de spații publice menite să faciliteze interacțiunea socială și dezvoltarea personală, în special în rândul tinerilor. Din această realitate derivă tema proiectului: un centru comunitar și de tineret – un spațiu incluziv, care sprijină educația informală, activitățile culturale și dialogul intergenerațional. Intervenția presupune integrarea unei compoziții de volume transparente și translucide, care se raportează la fondul construit existent și la direcțiile oferite de contextul urban. Noua arhitectură nu intră în competiție cu elementele conservate, ci le potențează, generând un dialog între memorie și inovație. Traseele pietonale existente sunt preluate și amplificate, conducând vizitatorii spre accesul principal, marcat de un portic generat de volumul fostului cinematograf de unde pornește un ax de parcurgere către spațiile de la cota subsolului . Cota subsolului este valorificată printr-o relație directă cu pasajul pietonal subteran și oferă deschideri vizuale către pârâul Cuejdi, un element natural integrat în compoziția urbană. Volumetria este compusă din forme prismatice simple, alăturate într-un mod dinamic, generând o arhitectură clară, accesibilă și expresivă. Fațadele reflexive și translucide funcționează ca ecrane de proiecție ale contextului urban și ale corpurilor conservate, punând în valoare patrimoniul existent fără a-i diminua identitatea.