
Comentariul autorului:
Am ales această temă nu numai pentru că orașul meu natal este Constanța ci și pentru că muzeele reprezintă pentru mine cheia de descifrare a unui oraș și puține dintre muzeele și spațiile culturale din Constanța se pot compara cu exemple contemporane, mai ales având în vedere potențialul cultural și turistic al litoralului. Astfel prin acest proiect doresc sincronizarea programului muzeal constănțean cu standardele internaționale, aducerea în prim plan a istoriei orașului, crearea de noi oportunități de educație interactivă și diverse expoziții temporare atât pentru locuitori cât și pentru turiști cu scopul de a crește interesul pentru istoria și arheologia orașului, de a descoperi mai mult din ce este orașul Constanța.
Am ales această temă nu numai pentru că orașul meu natal este Constanța ci și pentru că muzeele reprezintă pentru mine cheia de descifrare a unui oraș și puține dintre muzeele și spațiile culturale din Constanța se pot compara cu exemple contemporane, mai ales având în vedere potențialul cultural și turistic al litoralului. Situat în Penisula Constanței, în centrul vechi al orașului, și amplasat în imediata vecinătate a Muzeului de Istorie și Arheologie și a Edificiului cu Mozaic, situl benefiziază de localizarea ideală pentru conectarea cu cele două ramuri ale muzeului și reactivarera acestora. Astfel prin acest proiect doresc sincronizarea programului muzeal constănțean cu standardele internaționale, aducerea în prim plan a istoriei orașului, crearea de noi oportunități de educație interactivă și diverse expoziții temporare atât pentru locuitori cât și pentru turiști cu scopul de a crește interesul pentru istoria și arheologia orașului, de a descoperi mai mult din ce este orașul Constanța.
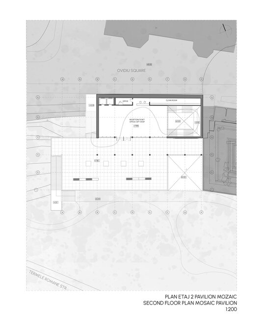
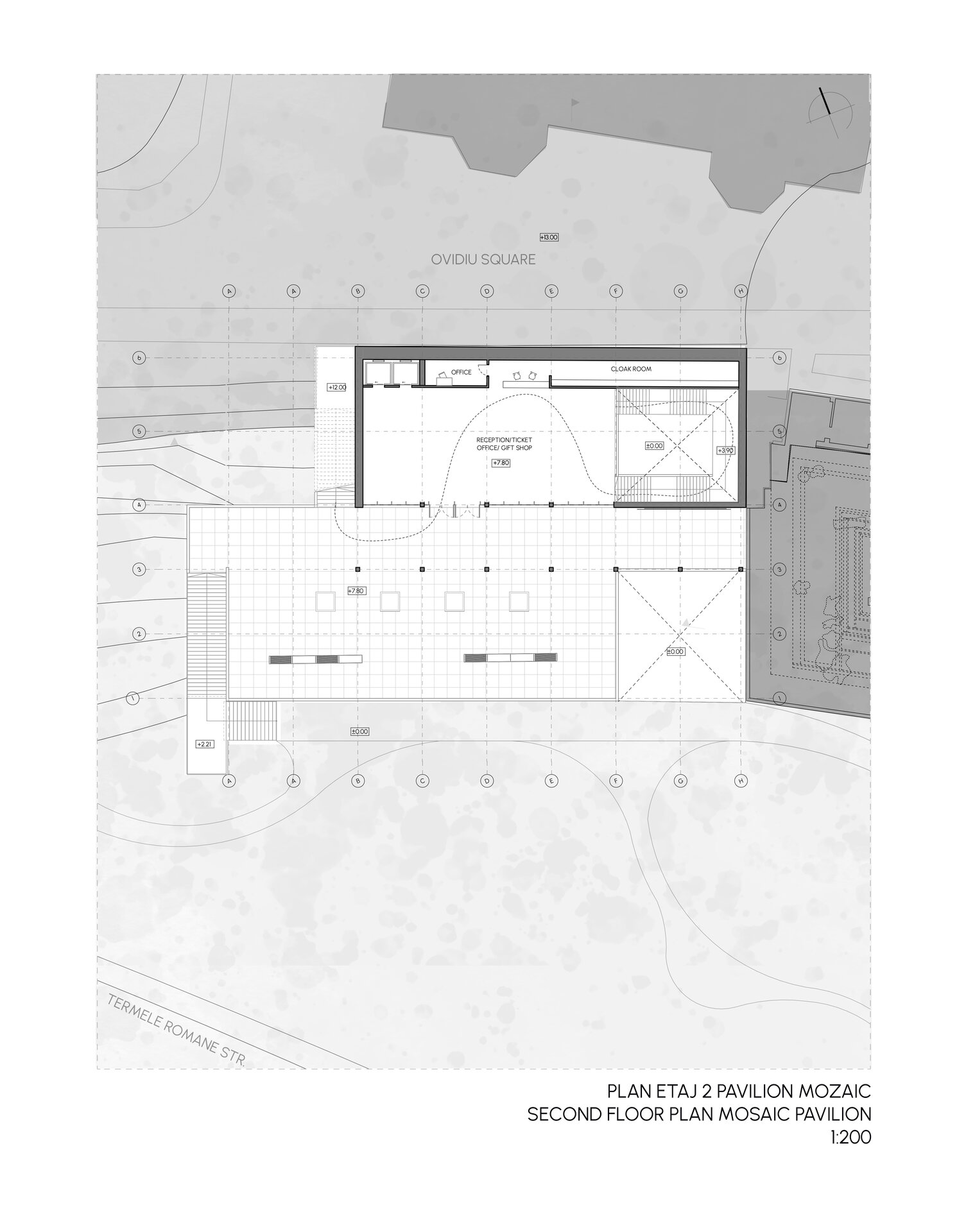
Galeria Nouă are scopul de a reactiva taluzul vestic al Peninsulei și de a crește interesul pentru istorie și arheologie și astfel vitalitatea culturală a Constanței. Proiectul extinde rețeaua muzeală din centru și întregește parcursul pietonal. Ansamblul se compune din 3 pavilioane, două dezvoltate în faleză pentru a consolida malul și a se camufla în peisajul natural și un al treilea volum în prelungirea vestigiilor Termelor Romane pe care le protejează și le pune în valoare. Pavilionul Mozaic situat lângă Edificiul Roman cu Mozaic înglobează funcțiuni precum casa de bilete, magazinul de suveniruri, expoziția permanentă de tezaur, o sală de proiecții video, Pavilionul Ovidiu este compus din două săli pentru expoziții temporare, o sală de conferințe de 150 de persoane, foaier și ateliere pentru diverse activități și Pavilionul Terme găzduiește expoziția permanentă dedicată Termelor Romane și artefactelor descoperite în timpul construcției, o cafenea și un butic. Materialitatea proiectului – beton aparent pigmentat, metal și sticlă – reflectă materialele și cromatica regăsite în clădirile învecinate, precum Edificiul Roman cu Mozaic. Acestea formează o poezie a materialității, fiind juxtapuse, tectonice, transparente. Pavilioanele sunt conectate cu exteriorul prin intermediul unor spații intermediare, spații liminale, porticuri, patio-uri sau buzunare urbane care facilitează tranziția de la spațiul interior la cel exterior. Propunerea reconectează localnicii și turiștii cu istoria orașului prin crearea unui circuit de situri și clădiri dedicate istoriei și arheologiei în Peninsulă. Proiectul „Noua Galerie” nu este doar o adiție arhitecturală la peisajul urban al Constanței, ci un catalizator pentru revitalizarea interesului față de istorie și reînnoirea urbană, promovând valorile culturale locale. Prin integrarea armonioasă a spațiilor expoziționale și funcționale în peisajul existent și prin punerea în valoare a vestigiilor arheologice, proiectul își propune să îmbogățească experiența culturală a locuitorilor și turiștilor deopotrivă.