
Comentariul autorului:
Ce este o filarmonică? Ce înseamnă astăzi și ce ar putea deveni? Lucrând la acest proiect, mi-am imaginat filarmonica ca un spațiu care nu tace, odată ce ultima notă a concertului s-a stins. Concertul simfonic reprezintă inima care dă puls clădirii, dar care nu definește întreaga dimensiune a programului.
În acest proiect, filarmonica este concepută ca un spațiu deschis, viu, conectat direct cu orașul, chiar și în afara programului de concerte. Mai mult, filarmonica trebuie să inspire și să educe; ea trebuie să fie un loc de schimb între public și artiști. În cadrul filarmonicii, educația și deschiderea devin la fel de importante ca și reprezentația în sine. Spațiile dedicate copiilor, elevilor și studenților încurajează învățarea atât cu mâinile, cât și cu inima prin ateliere, repetiții și masterclass-uri unde curiozitatea se dezvoltă liber. Familiile și vizitatorii sunt invitați la recitaluri incluzive, gândite ca experiențe comune care atenuează și dizolvă separarea tradițională dintre interpreți și public. Această barieră, atât de adânc înrădăcinată în instituția clasică a filarmonicii, este exact ceea ce proiectul își propune să depășească, deschizând calea unei întâlniri mai participative și mai umane cu muzica.
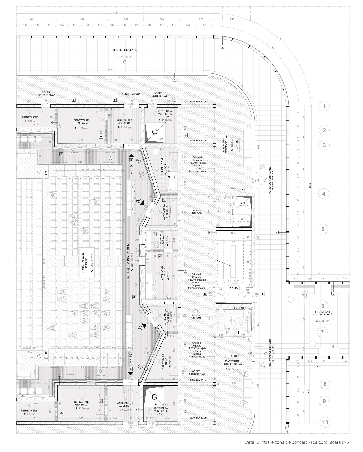
Foaierul nu mai este doar un pasaj, el devine un spațiu cu prezență proprie, o trecere între cotidian și extraordinar. Mai mult decât un simplu loc de așteptare, el se transformă într-un moment de anticipare, unde întâlnirea dintre artist și public se desfășoară natural. Aici, reflecția și conexiunea devin prioritare; vizitatorii sunt eliberați de anonimatul mulțimii și își redescoperă sinele în armonie cu ritmul orașului.
Am realizat, de asemenea, că lipsea ceva esențial: dialogul dintre muzică și lumea naturală. Muzica nu trebuie să fie închisă între ziduri, ci ar gtrebui să poată respira, să ajungă și să rezoneze cu viața cotidiană. Înconjurată de școli și tineri, filarmonica se deschide atât către exterior, cât și către interior. Nu este concepută ca un monument, ci ca o prezență, transparentă, accesibilă și profund umană. Și, pentru mine, apropierea oamenilor de muzică reprezintă o prioritate centrală în acest proiect.