
Comentariul autorului:
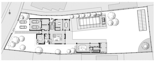
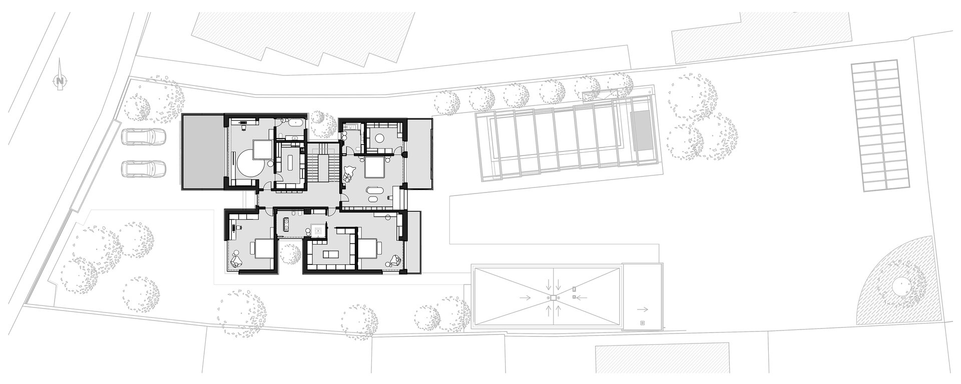
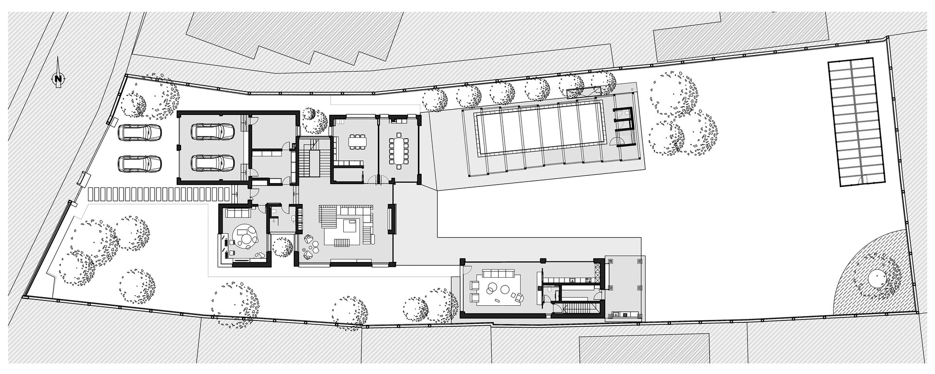
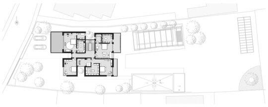
O locuință unifamilială în inima orașului, într-un țesut preponderent rezidențial, cu o arhitectură contemporană, aspect sobru și elegant transpus de la exterior la interior, un răspuns la nevoia de locuire contemporană și totodată căutarea de a contura un obiect complex cu spații confortabile și bine gândite. Beneficiarii, o familie cu doi copii, și-au dorit un spațiu generos în directă legătură cu exteriorul. Spațiile interioare inundate de lumină naturală sunt zonificate funcțional foarte clar pentru a oferi maxim de confort și intimitate. Zona de zi este compusă din living, bucătărie și dining, separate printr-o partiție de sticlă ce permite comunicarea vizuală între spații. Livingul generos este definit de canapeaua insulară ce reprezintă și nucleul central al locuinței. De asemenea, la parter regăsim și o baie de serviciu și camera de joacă pentru copii, un spațiu ludic, unde au fost folosite accente colorate și elemente de design prietenoase, care contribuie la crearea unui ambient familiar. Tot la parter regăsim și spațiile complementare precum un dressing generos ascuns de ușa filomuro, cameră tehnică și garajul. La etaj se desfășoară zona de noapte, unde întâlnim zona matrimonială și cea proprie pentru fiecare copil, având elemente specifice care reflectă preferințele fiecărui membru al familiei.
Din punct de vedere estetic, stilul abordat este unul contemporan, minimalist, iar paleta cromatică este compusă din texturi și materiale naturale precum lemn, marmură, alamă, finisaje performante precum Fenix, corian, combinate cu nuanțe neutre de bej, nisip, gri, mici accente colorate. Elementele alese au un design atemporal și contribuie la eleganța interiorului.