
Comentariul autorului:
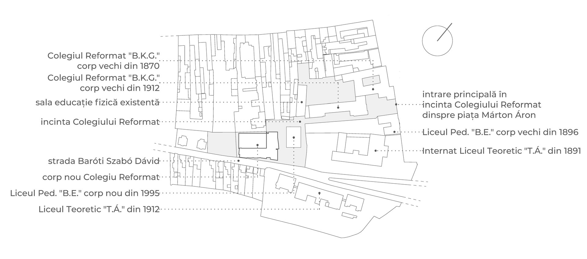
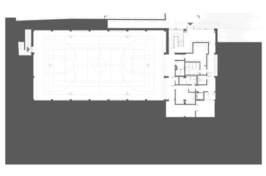
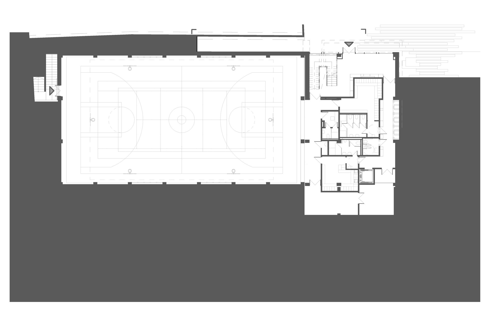
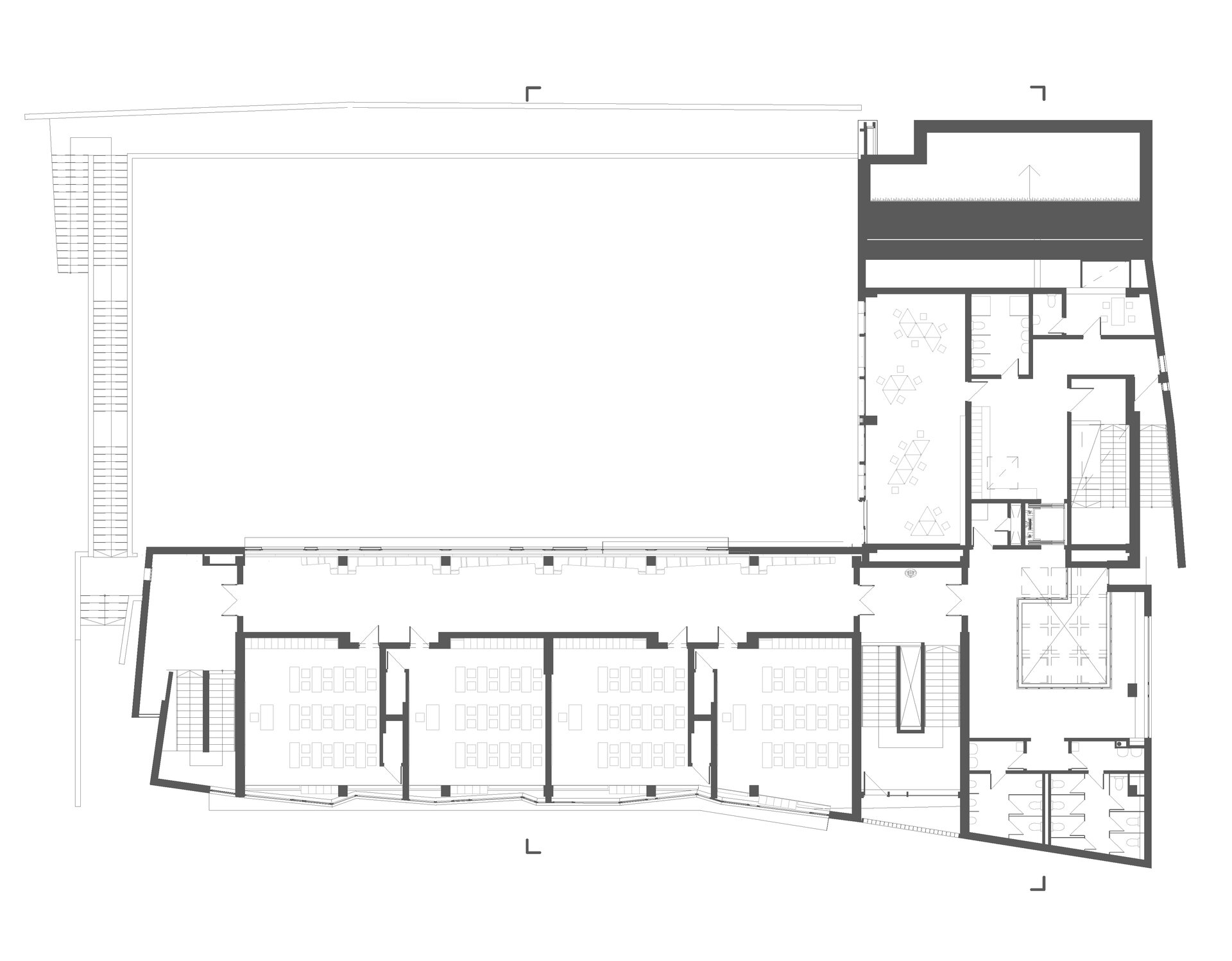
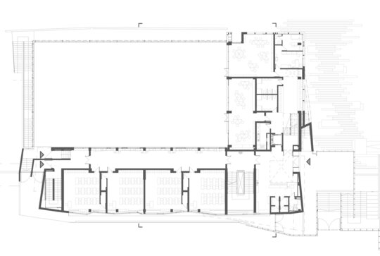
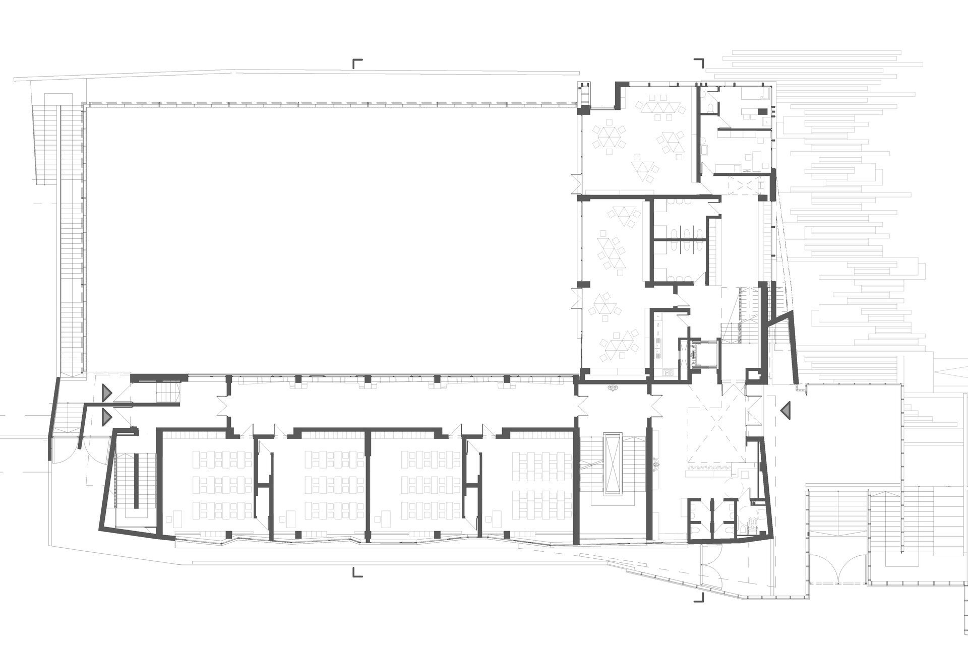
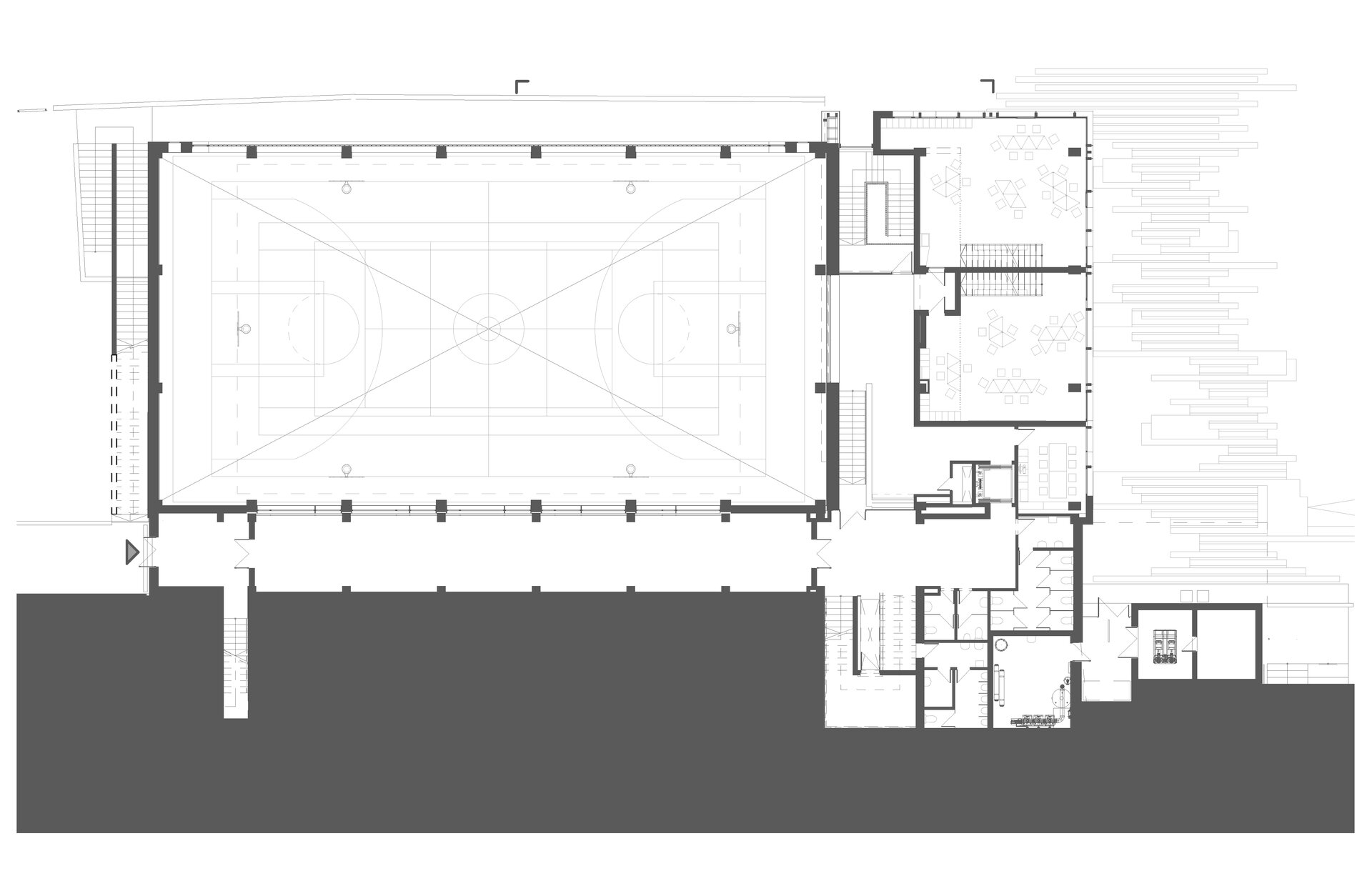
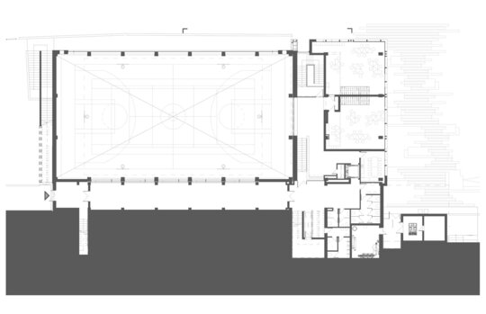
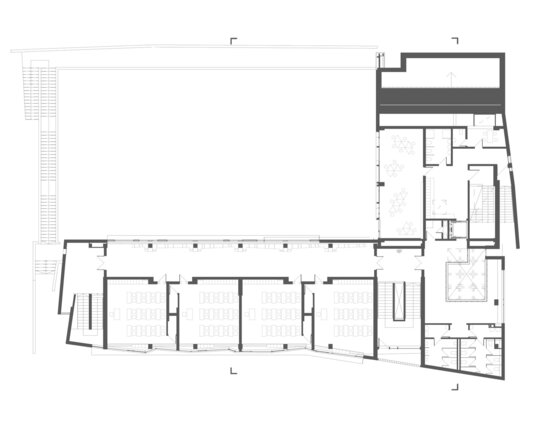
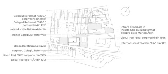
Școală elementară, grădiniță și sală de sport dau funcțiunea unei operații de chirurgie urbană, rezultând un nou edificiu semi-ascuns în versantul abrupt (cu 12m diferență de nivel) dintre școlile vechi, cel mai mare volum constuit în centrul istoric al orașului, realizat în ultimii 30 de ani. Noua clădire de școală își expune doar fragmente atât către stradă cât și către curtea de acces dinspre vechiul colegiu reformat, iar adevăratul său volum, teșit printr-un plan imens, nu se percepe, decât prin abundența spațiilor interioare. Suprafețele verzi de altă dată, aferente amprentei construite, se redau peisajului fiind ridicate la nivelul acoperișului înverzit ce preia înclinația versantului. Pielea ca de cameleon își schimbă aspectul în relație cu vecinătățile ce definesc amplasamentul, strada cu casele etajate pe parcele minuscule de vis-a-vis își lasă amprenta pe fațada cutată expunând două niveluri în imaginea stradală dominată de clădirea secesionistă a liceului "Tamási Áron", fără să afecteze silueta istorică a dealului Sf. Nicolae, ce se înalță deasupra centrului istoric. Către clădirea școlii pedagogice, proiect tip aterizat cu ceva întârziere chiar aici la începutul anilor 1990, noul edificiu își întoarce o față mai abstractă, cu pielea albă ritmată de goluri orizontale ce se înfășoară pe soclul masiv, ascunzând sala de sport ce își poartă curtea școlii pe acoperișul său imens. Traseele interioare se desfășoară pe patru niveluri între holuri de acces poziționate în articulațiile funcțiunilor majore ce compun ansamblul. Trasee exterioare variate conectează cele trei curți din jurul clădirii oferind un gradient de intimitate extins pornind de la spațiul urban și ajungând la grădina ascunsă.