
Comentariul autorului:
Locuirea colectivă este astăzi una dintre cele mai mari provocări ale arhitecturii și urbanismului contemporan. Într-o lume marcată de urbanizare accelerată, presiunea densității și schimbările climatice, modul în care proiectăm și construim locuințe colective influențează direct calitatea vieții, coeziunea comunităților și sustenabilitatea orașelor.
România, asemenea multor țări europene, se confruntă cu tensiuni majore între diferitele scale ale locuirii: pe de o parte, fronturile de blocuri înalte moștenite din perioada modernistă și comunistă; pe de altă parte, țesuturile fragile de locuințe individuale joase, care supraviețuiesc adesea fragmentar în spatele arterelor principale.
Proiectul de față propune o soluție echilibrată la această tensiune structurală a orașului românesc: un ansamblu de locuințe colective care construiește o tranziție atent calibrată între blocurile înalte și locuințele individuale joase. Prin volumetrie, tratarea spațiilor publice și comunitare, dar și prin alegerea unui sistem structural inovator (CLT cu diafragme din beton), proiectul oferă un model viabil de regenerare urbană, cu potențial de replicare la scară largă.
Orașele României sunt astăzi moștenitoarele a două logici urbane distincte și adesea conflictuale. Există cartierele de blocuri înalte, organizate pe principii moderniste, cu aliniamente rigide la bulevarde și densitate ridicată, care asigură eficiența locuirii la scară mare, dar generează adesea o rupere față de țesuturile istorice sau față de scara mică a locuințelor tradiționale.
În spatele acestor fronturi persistă cartierele de case individuale joase, cu parcele mici, străzi înguste și o logică aproape rurală. Confruntarea dintre aceste două tipologii creează tranziții dure, spații reziduale și lipsa unei armonii urbane. Problema majoră este că între aceste două lumi nu există un liant, o trecere firească. Lipsesc spațiile intermediare care să articuleze scara mare cu scara mică, generând continuități, nu rupturi, și lipsesc spațiile comunitare de calitate, capabile să lege locuirea de viața publică.
Proiectul răspunde acestei situații printr-un model tipologic nou: o compoziție de volume care mediează între înălțimea blocurilor existente și scara locuirii joase, construind un cadru comunitar articulat, generos și sustenabil. Volumetria ansamblului este gândită ca o succesiune de trepte. Clădirea orientată spre bulevard păstrează alinierea și scara blocurilor existente (P+7), iar în spatele ei se află un al doilea volum ce scade până la P+5, apropiindu-se de țesutul caselor. Această trecere nu este brutală, ci construită ca o adaptare graduală, un dialog între două lumi urbane.
Între aceste volume se creează o serie de spații comunitare. Piațeta urbană din fața clădirii P+7 este organizată ca un spațiu public deschis, cu o pădure de copaci aliniați pe un grid, oferind perspectivă și continuitate bulevardului. Curtea interioară de lumină devine spațiu de ventilare și socializare, cadru al întâlnirii cotidiene. Grădina privată în spatele ansamblului este rezervată exclusiv locuitorilor, oferind refugiu de liniște și microclimat vegetal. Astfel, arhitectura nu este doar o sumă de volume, ci un dispozitiv urban care mediază între scări și între tipuri de spațialitate – public, semi-public și privat.
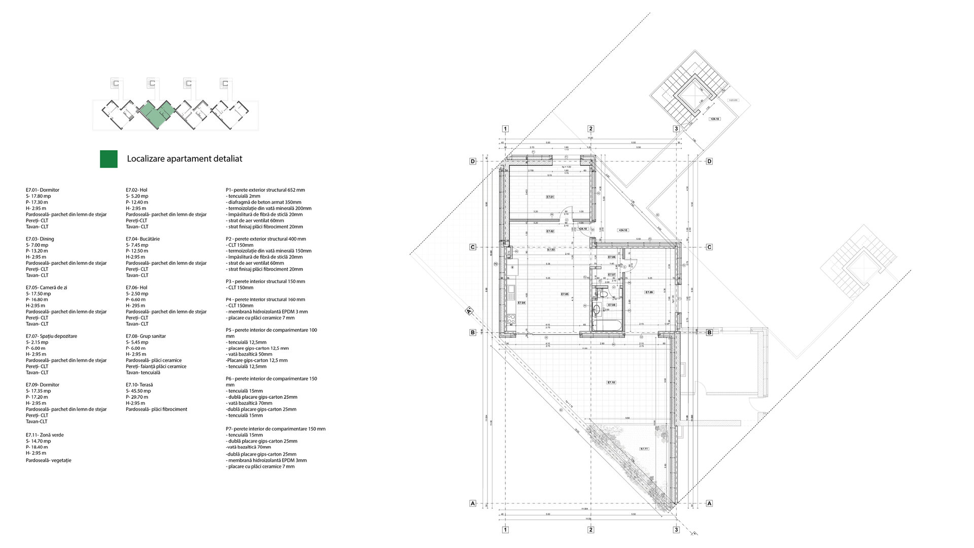
Un aspect esențial al proiectului îl constituie modul în care au fost gândite orientările apartamentelor. În locul orientării nord-sud pe care ar fi urmat-o conturul clădirii, propunerea explorează o soluție mai subtilă, adaptată contextului și nevoilor locuirii contemporane: orientarea diferențiată pe sud-vest și nord-est, variabilă în funcție de etaj și poziția în ansamblu. Această alegere oferă o calitate sporită a luminii naturale, apartamentele primind soare dimineața sau după-amiaza, ceea ce permite diversitate de atmosferă și confort termic pe parcursul zilei. Locatarii pot beneficia de apartamente personalizate în raport cu preferințele lor, fie că își doresc lumina blândă a dimineții, fie razele calde ale serii. Orientarea devine astfel o strategie de proiectare care influențează decisiv calitatea locuirii, microclimatul și sustenabilitatea întregului ansamblu.
Propunerea demonstrează că densitatea poate fi de folos, că sustenabilitatea poate fi integrată natural în arhitectură, că structura poate fi atât sigură, cât și ecologică, și că spațiile comunitare sunt esențiale pentru calitatea vieții urbane.
Într-o perioadă în care orașele României caută soluții de regenerare și coeziune, acest proiect oferă un exemplu concret și replicabil. El nu este doar o clădire, ci o viziune: aceea a unui oraș mai echilibrat, mai verde și mai uman.