
Comentariul autorului:
toYA – root house
towards Your Aspiration
abordare:
Prin aceasta insertie am dorit sa cream un spatiu stereotipal de ,,casa” chiar daca locuina este cuplata noi am incercat sa o tratam ca o ,,viletta’’ de oras, care sa lase senzatia de casa izolata. Acoperisul este un element important pentru acesta scop, iar frontonul a fost detasat ca sa obtinem imaginea de locuinta isolata.Pantele sunt gandite in asa fel incat sa rezolve surgerile apelor fara a afecta vecinii.
Copertinele masive au un rol multiplu: racordul cu garajul vecin, ruperea de scara ca element contextual si de preluare a inaltimilor joase, element tectonic si de tesut vernacular care acopera o prispa ( terasa, pridvor), protectie fata de ploi si soare, umbrar pentru reducerea efectului de insolatie, suport pentru gradini elevate, suport si masca pentru echipamente tehnice cu vizitare si servisare etc..
Materiale: tabla faltuita din Aluminiu tratat, caramida de fatada, otel, piatra vulcanica, beton parent, stejar reconditionat
Finisarea reprezinta o cautare de armonie intre materialele tectonice si cele de anduranta.
S-a recurs la o intarsie intre ce creste din sol si ce este orientat spre cer. In sectiunea longitudinala se observa relatia functionala intre elemente – pridvor, prispa, goluri pentru ventilare si iluminat, scara interioara ca element de circulatii, mobilier, transitie si ventilare a spatiilor.
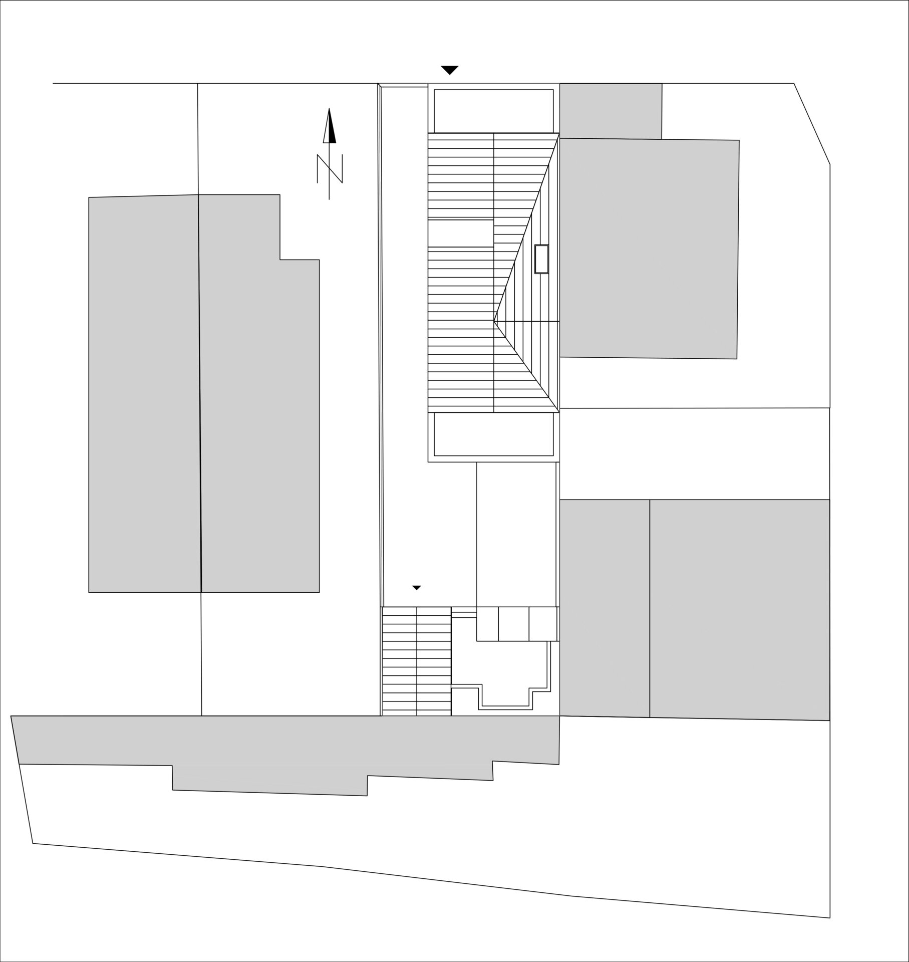
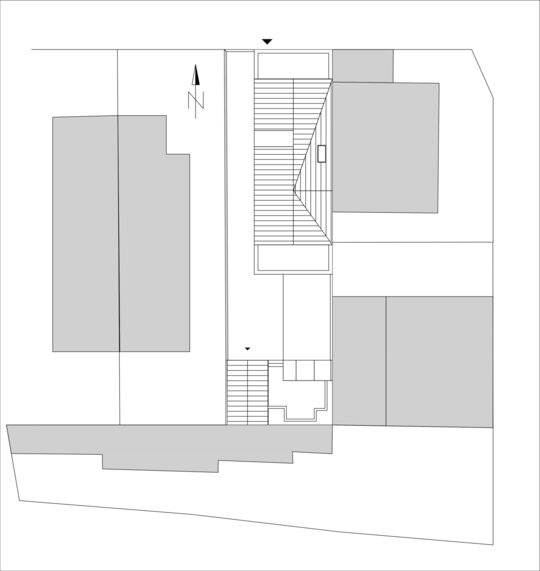
Gradina are cateva paliere de relationare – gradina publica reconditionata – spatiul de intampinare si dialog public, gard – jardiniera – element de bariera si de acces limitat, dar cu grade de trasparenta pentru evitarea delimitarii categorice, traseul auto – tratat ca o curte longitudinala, terasa spate pentru relaxare all sezons cu jakuzzi, piata pietruita si gradina de vara – amenajata in zona de calcan spate pentru a oferi fundal si senzatie de discontinuitate.
Tehnologie..cu un cost relativ modest tehnologile sunt menite sa ajute in limitarea producerii de noxe si a consumului excesiv de energie. Astfel incepand cu geometria si pozitia geografica - pana la alegerea materialelor si a echipamentelor sau obtinut rezultate notabile – folosirea redusa a aparatelor A.C. – practic o luna pe an in zona parter, distribuirea incalzirii prin pardoseala cu termostate wireless si prin telefon, centralizarea elementelor de iluminat cu control zonal si de intensitate, elemente de incalzire cu senzor si adaptare automata a temperaturii, panouri solare pentru reducerea consumului de energie.
Interior
In interior s-au eliminat complet elementele structurale prin acunderea lor in compozitia peretilor. Spatiul la parter de 100 m.p. pare mai mare datorita stalpilor ascunsi, iar folosirea betonului aparent cenusiu sau gri subliniaza accentul idustrial
al spatiilor. Pentru a crea contradictii si elemente de confort s-au folosit covoare traditionale, mobilier colorat si lemn masiv din stejar refolosit. Iluminatul natural este asigurat pentru fiecare zona de trai, cu exceptia scarilor care sunt iluminate zenital. Iluminatul artificial este asigurat prin banda LED si spoturi cilindrice care ofera control si accente zonale. Lemnul si caramida au un rol antropomorfic si sunt folosite ca material de legatura intre raceala betonului si tencuiala alba.