
Comentariul autorului:
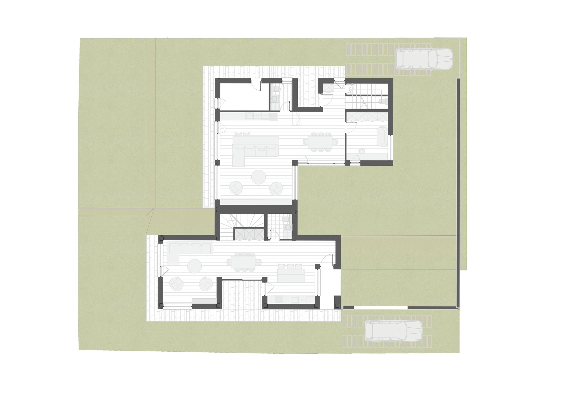
Ansamblul propus este alcătuit din două locuințe individuale cuplate, dezvoltate într-un context rural aflat în transformare, la marginea comunei Chinteni. Propunerea își asumă rolul de liant între tradiție și contemporaneitate, reinterpretând casa cu acoperiș în două ape într-un limbaj clar, esențializat. Cu o volumetrie compusă din două unități articulate, casele se încadrează într-o configurație tip „L” care generează curți interioare semi-private. Fiecare locuință beneficiază de intimitate, orientare corectă către punctele cardinale și deschidere către peisaj. Arhitectura favorizează o iluminare naturală optimă, datorită spațiilor vitrate generoase, asigurând în permanență un contact cu exteriorul.
Materialitatea exprimă un contrast echilibrat între tencuiala albă a parterului și placajul ceramic roșu al etajului, evocând discret arhitectura vernaculară reinterpretată. Planimetria urmărește o logică a vieții cotidiene: parterul găzduiește activitățile comune, cu deschideri generoase spre grădină și terase, în timp ce etajul este destinat odihnei și retragerii.
Integrarea în teren se face prin realizarea unor diferențe de nivel minime, ce asigură o armonie funcțională necesară fiecărei locuințe. Proiectul explorează ideea de comunitate restrânsă, păstrând în același timp autonomia fiecărei unități locative.