
Comentariul autorului:
Vila modernistă, construită la sfârșitul anilor 1920, este situată într-o zonă rezidențială elegantă, edificată între 1928-1940, în jurul unei părți a centrului istoric. Majoritatea clădirilor, destinate claselor mijlocii, sunt moderniste sau „Art Deco”. Parcela vilei este situată spate în spate față de ansamblul Episcopiei Ortodoxe locale. În centru parcelei reunite, la limita de contact a fost transferată o frumoasă biserică de lemn.
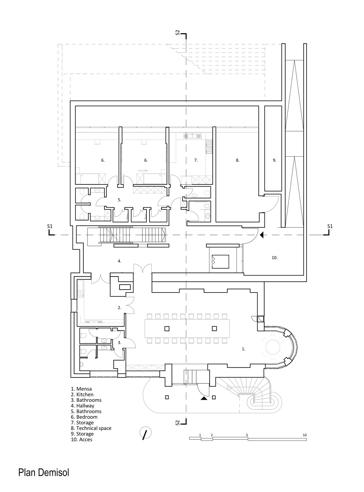
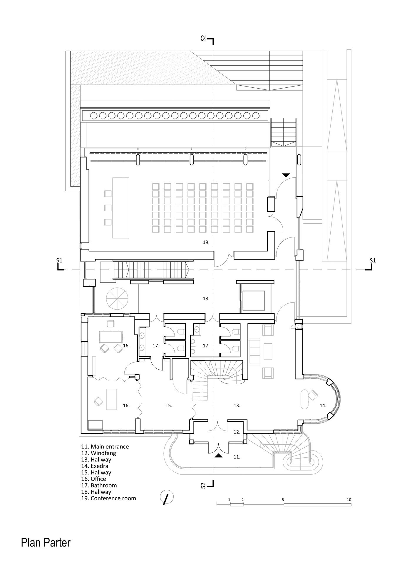
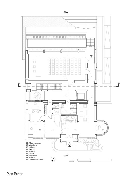
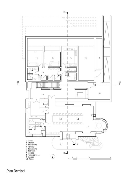
Proiectul constă în restaurarea vilei alterate și în expandarea sa cu un corp nou, în vederea transformării într-un Centru pentru Tineret. Conceptul s-a dezvoltat pe două direcții. În primul rând s-a urmărit recuperarea aspectului original prin reabilitarea structurii din beton armat și refacerea atât a interiorului cât și a exteriorului vilei. Prezența, în vecini, a unei vile similare intacte, proiectată de același arhitect (Krausz) și executată de același antreprenor, a oferit prețioase informații. În al doilea rând, vila a fost expandată cu un auditorium „suspendat” conectat printr-un „landform” cu grădina episcopiei. Acest nou spațiu a fost conceput pentru a găzdui evenimente, conferințe, întâlniri și interacțiuni informale. Noul spațiu a fost înzestrat cu un amplu vitraliu (mozaic-vitraliu) cu orientarea spre grădină, creat de un artist renumit: Silviu Orăvitzan. Lucrarea evidențiază un aspect aparte al relației dintre lumină și spațiu: contrastul între lumina solară, diurnă („Lumen”) și lumina simbolică, convocată („Lux”).
Cooperarea dintre arhitect și artist pentru a obține o operă de artă complet integrată a fost complexă, dar plină de satisfacții. Lumina trebuie tratată cu atenție, folosind cele mai bune materiale și tehnologii. Scopul principal al noului spațiu a fost crearea unei punți între vechi și nou, între lumea concentrată a spiritualității și lumea deschisă a tineretului contemporan. Este un proiect unic, care recreează un întreg ansamblu, dând o nouă viață unei frumoase clădiri de patrimoniu, promovând legături între lumi folosind magnificul joc al luminii și spațiului.
Lumina este o parte esențială a artei și arhitecturii. Fără lumină, arhitectura ca artă nu există. Interacțiunea dintre lumină și suprafață, lumină și volum și lumină și spațiu face ca geometria și compoziția formelor să prindă viață. Însă lumina nu este doar lumina vizibilă, lumina solară („Lumen”), ci este și prezența simbolică, transcendentală, necreată și energetică, extrem de simbolică („Lux”). Este o manifestare cosmică, care a fost exprimată atât în mozaicurile din Ravenna, cât și în lucrările unor mari artiști contemporani precum Cardinalul Marko Ivan Rupnik și Silviu Orăvitzan. Proiectul nostru conectează lucruri, spații, planuri și viziuni; nu era suficient să stabilim câteva reguli, articulații, procedee pentru a „refuncționaliza” o colecție de obiecte, transformându-le într-o unitate superioară. Aveam nevoie de altceva – lumină încorporată în artă.
Am fost inspirați de capacitatea artistului Orăvitzan de a „călători prin timp, din primul mileniu până în prezent” (Card. Marko Ivan Rupnik). Am stabilit împreună că fațada principală a noii adiții va conține un „mozaic vitraliu” numit „Zidul Luminii”. Acesta trebuia să definească spațiul interior al auditoriului, aducând un joc de lumină aurie, galbenă, albă și roșie pentru a crea o atmosferă spirituală fără a se referi explicit la simbolurile religioase (prezente discret pe tavan).
În același timp, „Mozaicul de sticlă” acționează ca fundal pentru vechea biserică și ca destinație pentru oamenii care trec prin Parcul Arhiepiscopal. Pentru a evita strălucirea, din cauza expunerii spre sud, „rama” „mozaicului vitraliu” a fost configurată cu grijă ca un parasolar. „Mozaicul de sticlă” este compus din bucăți de sticlă optică lucrate manual, de cea mai înaltă calitate, de 5 x 5 cm. Unele dintre tessere au formă de diamant pentru a refracta lumina într-un mod spectaculos. Modulația este de 100 x 100 cm, fiecare modul conținând 400 de tessere (peste 16000 în total). Dimensiunea totală a „peretelui de lumină” este de 3 x 13,5 m. Modulele sunt susținute de o structură autonomă, coordonată cu geometria structurală a pavilionului. Peretele cortină exterior are o configurație specială, fiind susținut de cabluri pretensionate. Sticla sa este perfect transparentă, pentru a asigura cea mai bună vizibilitate; și totodată este prevăzută cu o perdea de aer pentru a elimina condensul. Pentru a sugera tranziția către vitraliu, elemente din sticlă aurie de 5 x 5 cm sunt diseminate de-a lungul pilelor de beton aparent ale atriumului intermediar.
Colaborarea noastră cu un artist important a contribuit la bogăția și valoarea proiectului de refuncționalizare și reabilitare a vilei. Proiectul artistic a fost pe deplin integrat în proiectul arhitectural. A fost un exercițiu de răbdare, dialog și creativitate. Capacitatea „Zidului de Lumină” de a îmbina atât modernitatea abstractă, cât și esența atemporală prin utilizarea luminii ne-a ajutat în efortul de a recrea un ansamblu semnificativ, de a recupera o clădire frumoasă și de a crea legături semnificative în timp și spațiu, utilizând lumina.