
Comentariul autorului:
Reabilitare și extindere Școală Generală, Construirea unui corp nou multifuncțional -Borșa, Maramureș
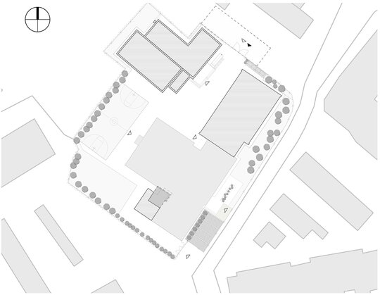
În cazul Scolii Genereale nr. 9, edificată in anul 1980, au fost nevoie de intervenții asupra anvelopei clădirii, înlocuiri de finisaje, tâmplării, copertine și șarpantă, în vedere eficientizării termice. Pentru a beneficia și de o eficientizare a spațiului interior, s-au recurs la minime recompartimentări interioare cât și la propunerea unei extinderi cu un corp nou. Noua clădire va oferi o șansă la educație pentru încă 30 de copii, crescănd astfel efectivul maxim de 180 de elevi dar și condițiile pentru desfășurarea activităților educaționale.
Corp de cladire 1
Cladirea existenta, avand functiunea de Scoala Generala (clasele V-VIII), a scolii nr. 9 este o constructie P+2E, edificata in anul 1980, asupra careia se va interveni cu lucrari de reabilitare ce implica anveloparea cladirii cu termoizolatie in vederea cresterii gradului de eficienta termica, refaceri si inlocuiri de finisaje, tamplarii, copertine, scari si accese, inlocuirea sarpantei existente si a sistemelor de colectare si evacuare a apelor pluviale. De asemenea, lucrarile de interventie vor prevedea si minime recompartimentari interioare prin desfiintarea sau construirea de pereti interiori in scopul reconfigurarii spatiale sau a schimbarii de destinatie a unor spatii cu functiuni secundare.
Extinderea prevazuta va consta in construirea unui corp nou, in prelungirea frontului fatadei principale a cladirii existente, in lungul Aleii Tineretului, respectiv pe latura de sud-est a amplasamentului.
Cladirea va cuprinde 4 sali de clasa si 2 laboratoare, avand fiecare o capacitate maxima de 30 de elevi, putand adaposti astfel, un efectiv de maxim 180 de elevi, cat si dotarile sanitare aferente.
Corpul nou va respecta regimul de inaltime al celui existent, inaltimea la cornisa, limbajul arhitectural existent.
Dupa realizarea proiectului, scoala existenta + extinderea propusa vor avea un numar total de 16 sali de clasa repartizate astfel: 12 sali de clasa in scoala existenta + 4 sali noi de clasa in extinderea propusa si un numar total de 3 laboratoare repartizate astfel: 1 laborator (informatica) in scoala existenta + 2 laboratoare nou propuse in partea de extindere. Salile de clasa si laboratoarele sunt dimensionate si proiectate astfel incat sa satisfaca spatiul necesar unui efectiv maxim de 30 de elevi/ sala de clasa, din punct de vedere al normativelor tehnice si sanitare in vigoare, la data elaborarii prezentei documentatii tehnice.
Sala multifunctionala propusa va fi o cladire cu regimul de inaltime P+1E (sala cu regim de inaltime P si spatii secundare cu regim de inaltime P+1E).
Sala propriu-zisa, avand ca destinatii posibile: cadru pentru serbari scolare, festivitati de premiere, spectacole pentru elevi, evenimente cu public, etc., a fost dimensionata pentru un efectiv maxim de 100 de spectatori, fiind dotata cu spatiu pentru public si spatiu destinat scenei. Spatiile secundare necesare functionarii salii multifunctionale includ grupuri sanitare dimensionate specific pentru numarul de utilizatori, depozit de mobilier (scaune, mese), centrala termica, oficiu pentru cadre didactice.
In sala multifunctionala propusa nu se vor efectua activitati sportive/ de educatie fizica, scoala nr. 9 corpul A, de pe str. Decebal (zona studiata este corpul B, de pe str. Aleea Tineretului), avand o sala de sport acreditata in acest scop, unde se desfasoara toate activitatile fizice scolare, inclusiv de catre elevii din corpul B – pe care ii priveste in mod direct aceasta documentatie tehnica.
Spatiile de la etaj sunt prevazute in vederea implementarii unui program de tip afterschool, sau pentru activitati extra-scolare si includ spatii ca: biblioteca, sala multimedia, sala de pregatire a lectiilor, vestiare si grupuri sanitare.