
Comentariul autorului:
Prin valoarea sa tehnologică, științifică și socială patrimoniul industrial cere o abordare complexă și vizionară care să onoreze memoria locului și să ofere flexibilitate urmașilor, mai ales în contextul de globalizare și evoluție tehnologică accelerată.
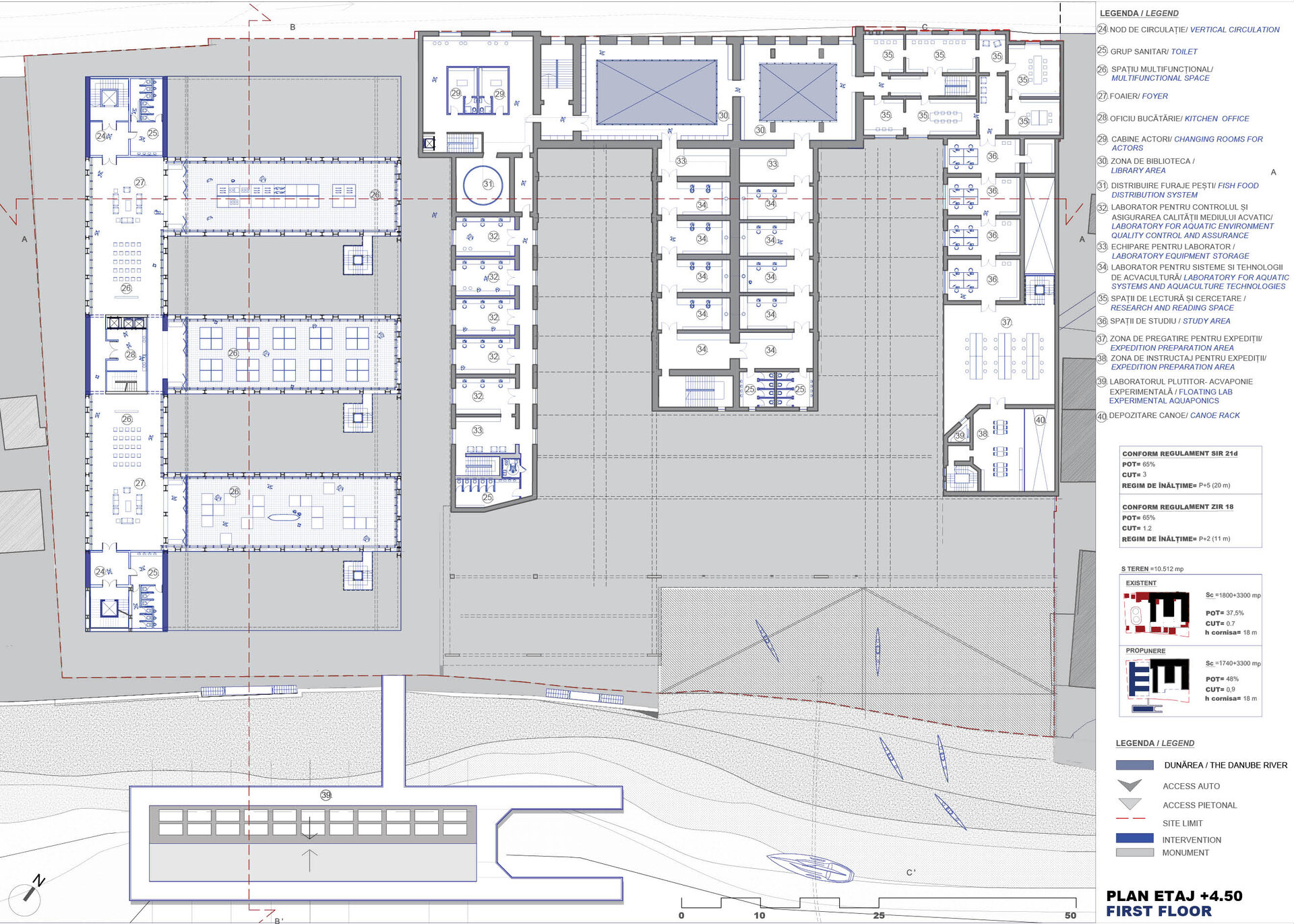
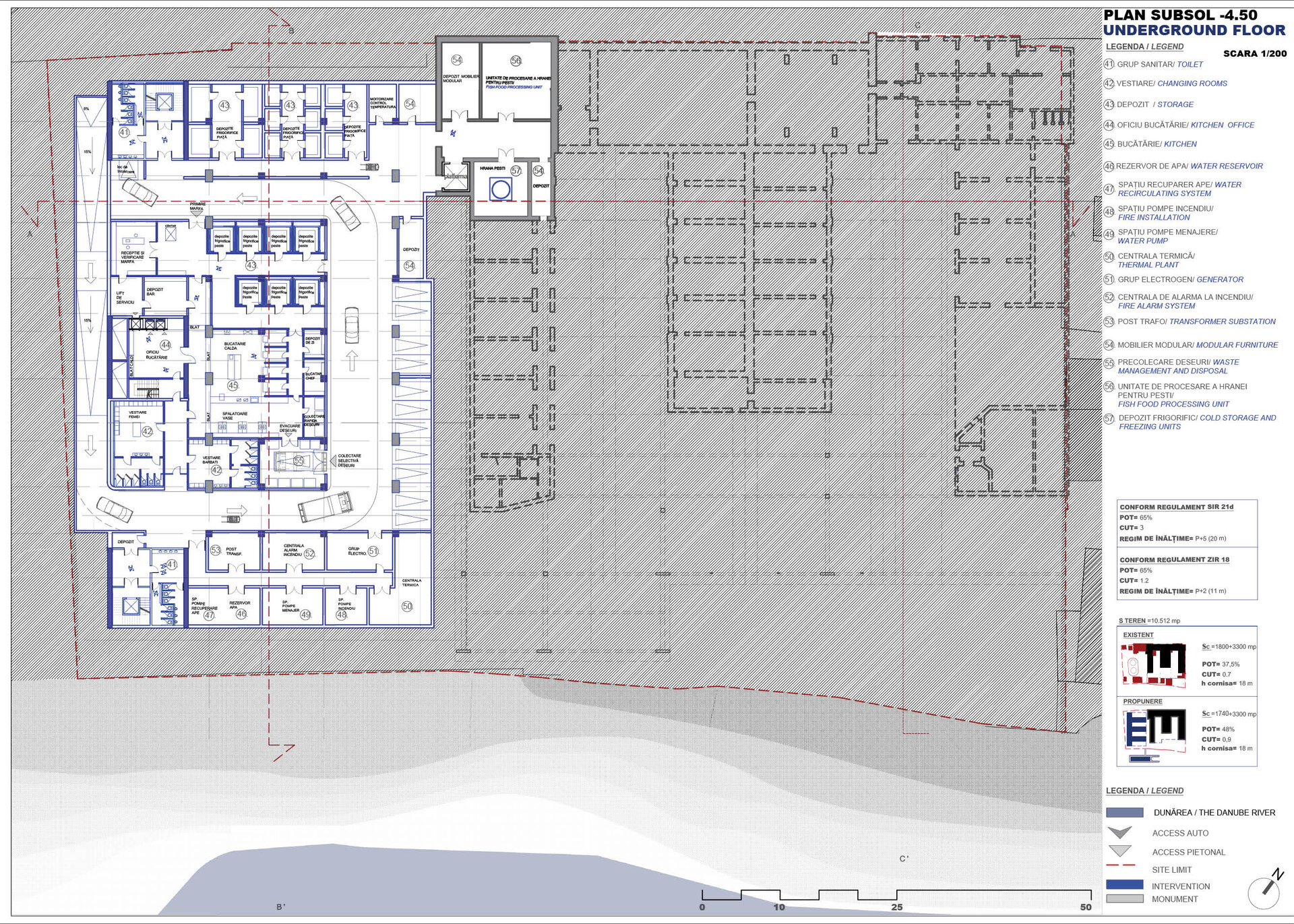
Astfel, proiectul de diplomă are la bază conversia și extinderea Pescăriilor Statului din Galați, clasate relativ recent (2010) ca monument istoric. Ideea de Centru de Cercetare și Inovare în Acvacultură are ca scop formarea unei punți între trecut (povestea pescuitului tradițional) și viitor (utilizarea responsabilă a resurselor din Dunăre).
Refacerea materialului piscicol și studiul acvaponiei se materializează aici printr-o serie de instalații și bazine de creștere și cercetare a peștilor, amplasate în interiorul vechilor hale, dar și printr-o fermă acvaponică plutitoare, amplasată pe amprenta vechilor docuri.
În paralel, extinderea clădirii vine ca o reinterpretare a pieței de pește originale (1912), care se remarcă în documentele din arhiva BVAU. Piața nou propusă, va relaționa direct cu monumentul Pescăriilor și va fi marcată de flexibilitate. Funcționarea acesteia s-ar produce în trei timpi: trei volume suspendate alături de o bară cu plan liber destinate pentru comerț, cultură și/sau educație.
Așadar, propunerea are un caracter privat, pe de-o parte spațiile destinate cercetării, iar pe de altă parte oferă spații pentru comunitate și turiști.