
Comentariul autorului:
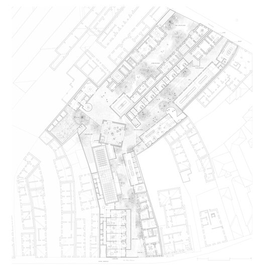
Proiectul de diplomă a început printr-o privire prudentă, aproape metodică, asupra orașului, la o scară macro. A urmat apoi o coborâre firească către o situație concretă: zona Căii Griviței, o axă istorică a Bucureștiului, care, deși marcată de fragmentări, păstrează încă o anumită coerență structurală.
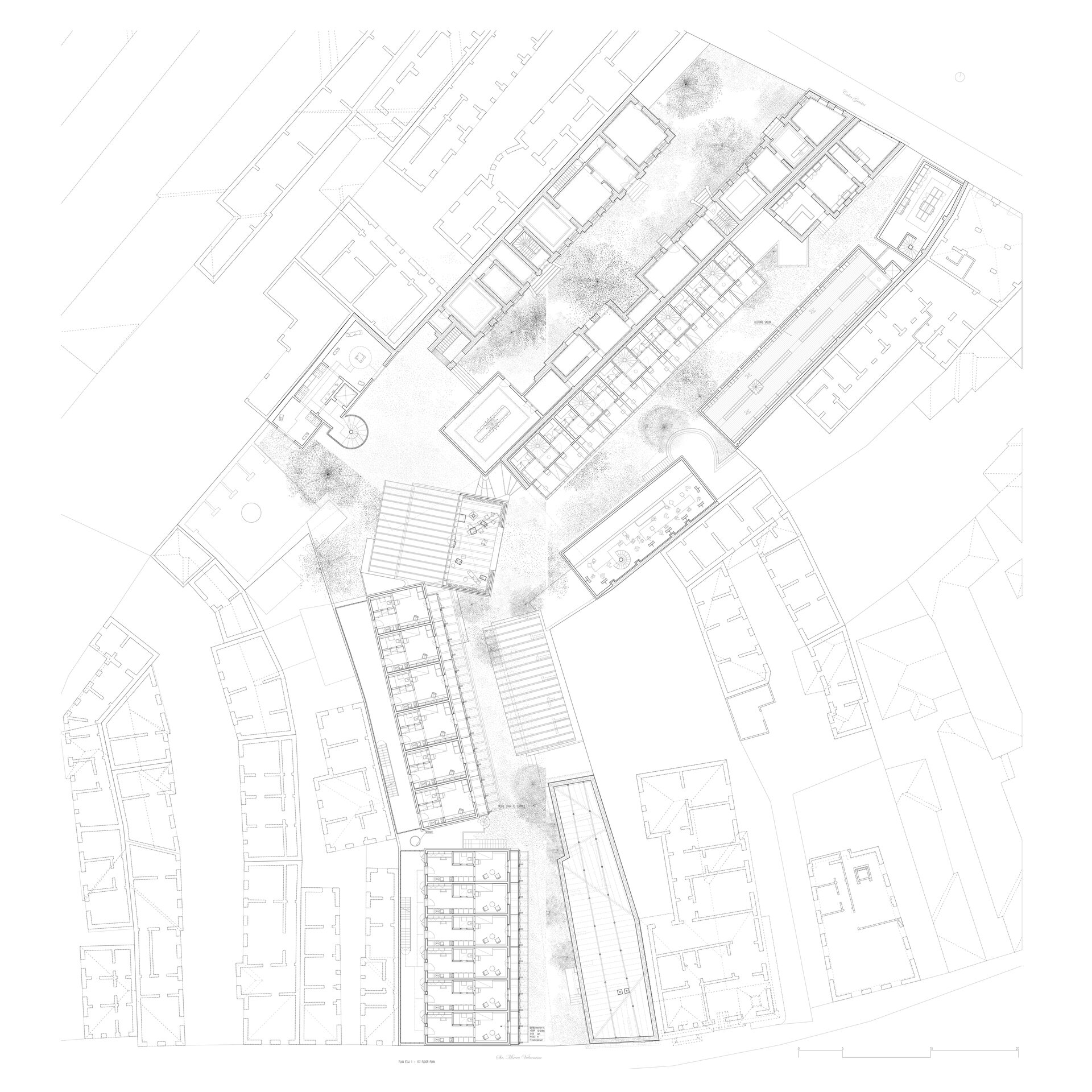
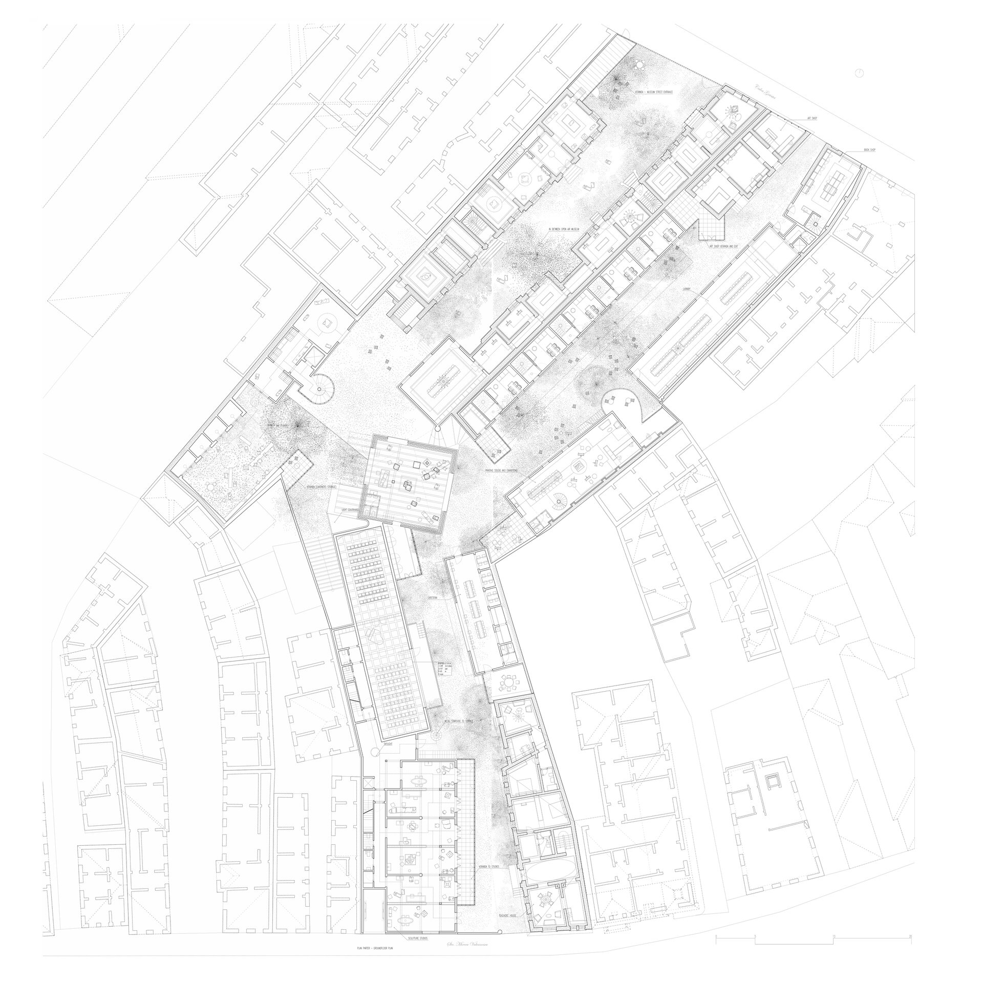
Pentru a numi mai pe îndelete situația actuală, proiectul a căutat să se așeze într-un țesut marginalizat, mai exact pe granița dintre Calea Griviței și strada Mircea Vulcănescu, o fâșie de țesut unde se află trei case vagon într-o stare avansată de degradare. Apropiindu-ne mai mult de soluție și de situația concretă, proiectul caută să se înrădăcineze în loc. Astfel, apare această „seducție a planului”. Desigur, proiectul a început cu o atentă privire asupra planului: au fost decorticate, analizate și redesenate toate zidurile rămase ale caselor. A apărut apoi gândul rigidizării, întrucât aceste ziduri sunt extrem de fragile. În această căutare de a le întări, se naște o anfiladă de spații care adăpostesc, la parter, ateliere de sculptură, iar la etajele superioare, camerele de locuit ale studenților.
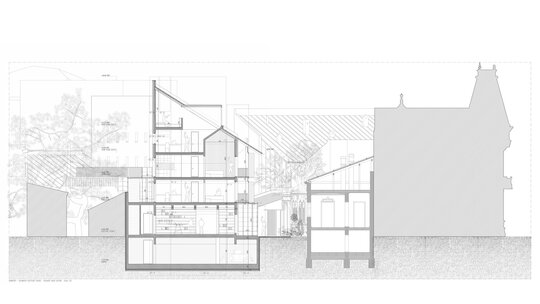
Având la purtător ipoteza compunerii prin mai multe obiecte care se raportează atât la loc, cât și la cartier, apare gândul irezistibil al șarpantei. Acestea încearcă, desigur, să își găsească locul, fiind fie autonome, fie alipite, aglutinate la timpan. Odată cu aceste șarpante delicate, într-o apă, apare și ideea îmbogățirii locului cu structuri fine, ușoare – o serie de verande ce evocă tipologia geamlâcului bucureștean.
Apar astfel structuri atașate volumelor pline, opace. Aceste spații extrem de fine sunt, în esență, crâmpeie de grădină. Și dacă tot vorbim despre detalii, prezența acestor șarpante atrage după sine și o familie de elemente mărunte, așezate și calibrate atent: hornuri, lucarne, luminatoare, jgheaburi, burlane.
Făcând un zoom-out de la scara detaliului, devine important de menționat ce adăpostește fiecare spațiu. Spre strada de jos, pe Mircea Vulcănescu, se află spațiile intime, private, respectând cu strictețe caracterul locului: locuirea studenților la etaj și atelierele acestora la parter. Dintr-o necesitate firească de a realiza un spațiu lung, apare această cameră alungită, îngropată, accesibilă printr-o scară ascunsă.
Mai departe, se află atelierul principal al studenților. Acesta are o structură specială – un soi de carcasă de beton dublată de o zidărie realizată din cărămizile pierdute și descoperite pe sit, curățate și îmbinate cu mortar. Spre Calea Griviței, pentru a păstra caracterul comercial al frontului, se află o librărie și un magazin de artă/papetărie, iar cele două case vagon recuperate adăpostesc spații muzeale de pictură și sculptură.
Există, desigur, și alte spații necesare unui cadru tipic studențesc, precum o bibliotecă cu sală de lectură și un mic studio de pictură.
În final, proiectul caută frumusețea detaliului: curți, praguri, scări, garduri. Aceste grădini ascunse, scări care conduc spre spații joase, sunt elementele care fac orașul să fie oraș, iar proiectul le fixează în loc.