
Comentariul autorului:
Acordând atenție reglementărilor urbanistice, proiectul introduce funcțiuni complementare și recreative într-o zonă rezidențială prin propunerea unei clinici medicale și a unui parc urban pe două parcele oglindite. Adaptându-se regulilor peisajului urban, volumul clinicii urmărește să se deschidă spre sud prin dublarea înălțimii fațadei sale scurte spre nord și prin coborârea înălțimii celei orientate spre sud.
Materialele alese, texturile și nuanțele de contrast se joacă împreună cu limbajul formal al volumului: etajul superior și partea de nord a clădirii sunt acoperite cu un material mineral mai închis, rugos, în timp ce zona parterului dedicată cabinetelor de consultații medicale este abordată printr-o ceramică de culoare deschisă. Granița dintre cele două este accentuată de un element orizontal cu nuanțe roșii.
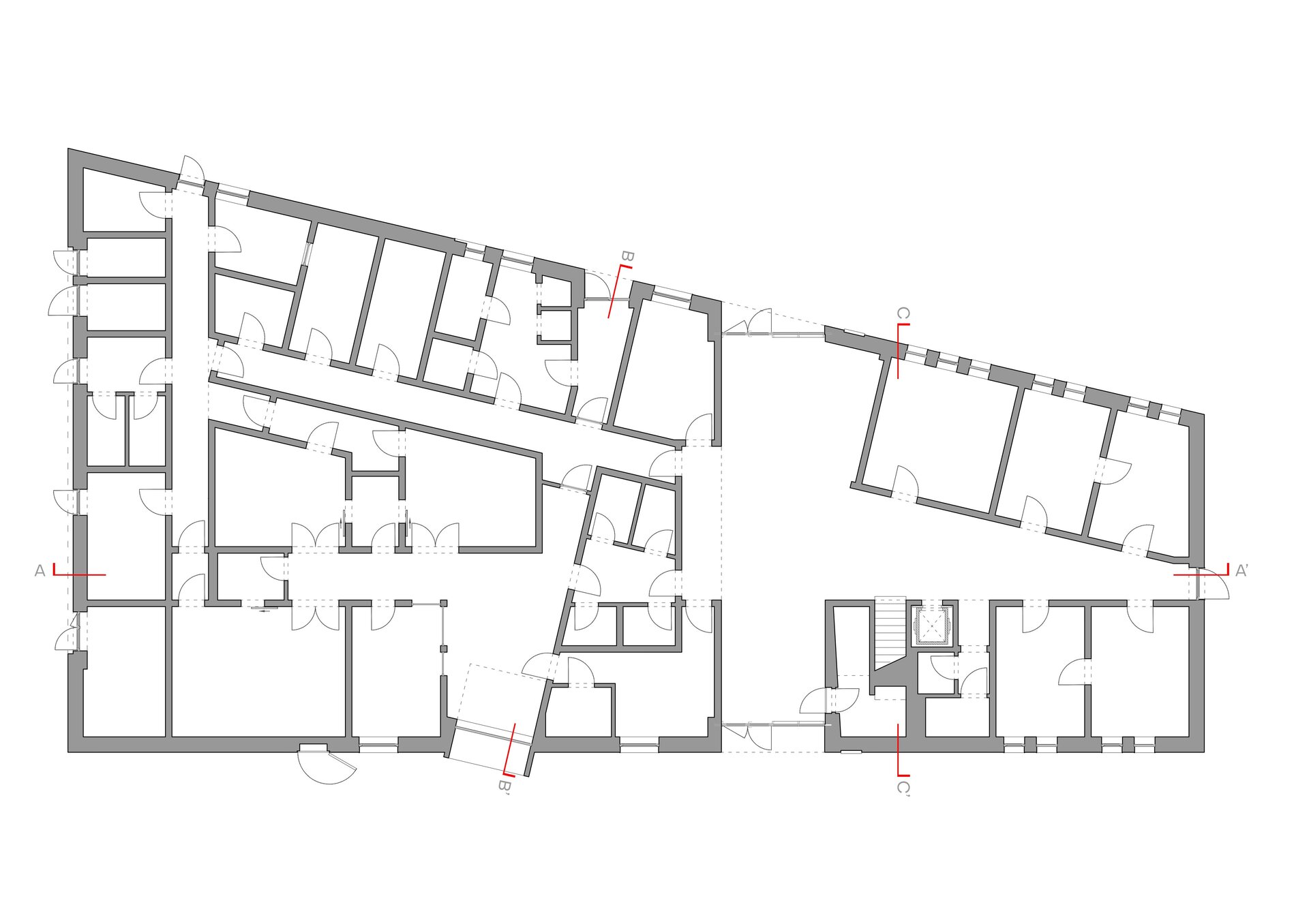
Clădirea comunică cu împrejurimile pe diferite niveluri: recepția devine ca o ancoră accesibilă din ambele părți, cu sala de așteptare orientată spre parc, în timp ce un colț de relaxare mai retras este definit ca un accent volumetric al fațadei.
Toate deschiderile orientate spre est urmăresc să încadreze perspective diferite asupra parcului care își schimbă vegetația odată cu anotimpurile. Fereastra pătrată a fațadei nordice acționează ca un semnal discret către cartier, comunicând prin lumină desfășurarea evenimentelor din sala multifuncțională situată la etajul superior.
Chiar dacă din punct de vedere funcțional clădirea are două etaje inegale, volumul reușește să devină unul compact prin înclinarea întregului acoperiș spre sud. Prin acest unghi dinamic secțiunea permite variații de înălțime și perspective către cer din sălile de operație de la parter.
Acest lucru contribuie, de asemenea, la o suprafață mai bine controlată a fațadei în ansamblu, în timp ce acoperișul se umple ușor cu panouri fotovoltaice. Îndeplinind o serie de cerințe, clinica a fost pre-certificată cu succes ca o clădire cu consum redus de energie de către Passive House Institute.