
Comentariul autorului:
Terroir, identitate calmă și design tactil
Crama Domeniile Ovidiu se așază cu discreție și eleganță în peisajul viticol al Dobrogei de Sud, într-un teritoriu unde solul fertil, clima blândă și tradiția viticolă dau naștere unui terroir unic. Arhitectura clădirii dialoghează subtil cu topografia ușor deluroasă, folosind piatra, lemnul și sticla ca materiale care armonizează construcția cu natura. Fațadele ventilate, acoperișul verde și taluzările vegetale extind continuitatea între clădire și peisaj, în timp ce transparența atent controlată și lumina naturală creează vizitatorilor o experiență calmă, tactilă și aproape intimă, pregătindu-i pentru întâlnirea cu vinul și povestea sa.
Reconfigurarea fluxului și valorizarea terroir-ului
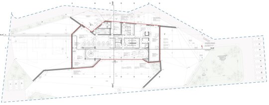
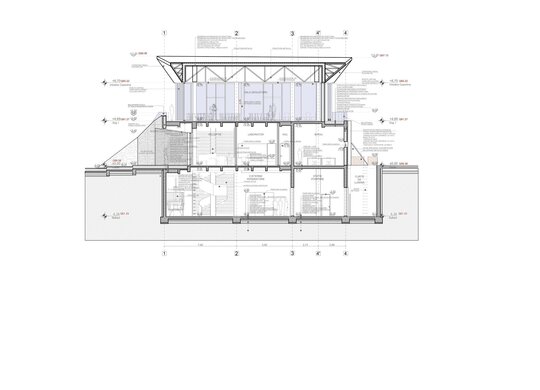
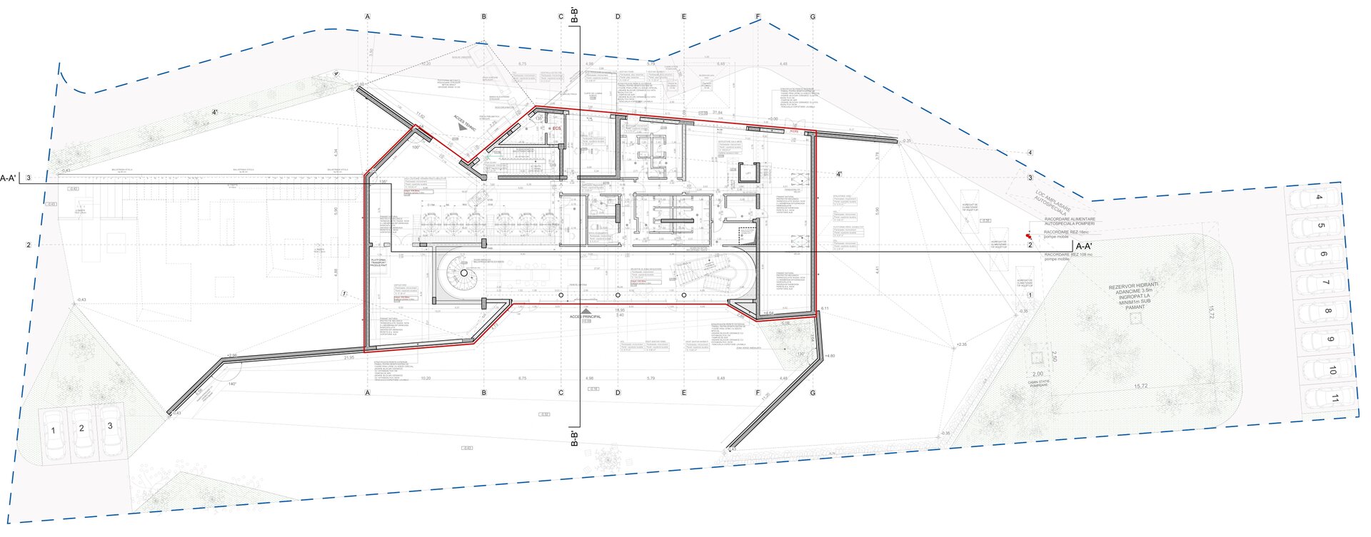
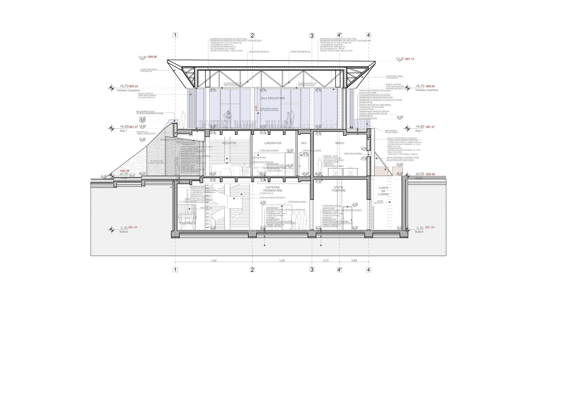
Structura cramei reflectă logica procesului viticol, separând clar zonele de producție de cele dedicate vizitatorilor. Subsolul adăpostește depozitele, sălile tehnice și spațiile pentru baricuri și cisternele de fermentare, asigurând un flux tehnologic sigur și eficient. Parterul concentrează zona de vinificație, birourile administrative și recepția materiilor prime, în timp ce etajul este destinat experienței vizitatorilor, cu sala de degustare și terasa orientată către podgorie. Accesul publicului este complet separat de fluxurile tehnologice, astfel încât vizita devine o experiență intuitivă și confortabilă, fără interferențe, punând în valoare atât vinul, cât și arhitectura clădirii.
Experiența interioară și vibrația istoriei
Interiorul cramei combină beton aparent, finisaje ClayWall, microciment și pardoseli naturale, creând spații coerente, elegante și tactile. Sala de degustare și foyer-ul se deschid către priveliștea viilor, în timp ce plafonul Hunter Douglas imprimă ritm și intimitate. Fiecare detaliu interior – de la texturile materiale, la lumina controlată și transparența spațiilor – amplifică experiența senzorială a vizitatorilor, transformând vizita într-o incursiune vibrantă prin istoria și terroir-ul podgoriei. Vinul adună în el fragmente de memorie: urmele soldaților romani care apărau apeductul Tomisului, legenda poetului Ovidiu și tradiția milenară a locului, toate integrate subtil în fiecare pahar și în fiecare spațiu.
Arhitectură tehnologică și sustenabilitate
Construcția folosește un sistem dual de cadre și pereți structurali din beton armat, completat de soluții sustenabile: acoperiș verde, taluzări vegetale și fațade ventilate, pentru eficiență energetică și durabilitate. Materialele au fost alese pentru longevitate, rezistență la foc și integrare estetică, respectând normele PSI și de protecția muncii. Tehnologia și designul se completează reciproc, creând o cramă modernă, funcțională, prietenoasă cu mediul și fidelă spiritului locului.
Integrare în peisaj și experiența vizitatorului
Clădirea se integrează armonios în topografia podgoriei Dobrogei de Sud, iar acoperișul vegetal și taluzările vegetale ajută la menținerea unei temperaturi controlate în interior. Terasa și sala de degustare oferă priveliști panoramice asupra viilor, în timp ce materialele naturale și lumina atent dozată creează un ambient intim și elegant, punând în valoare atât vinul, cât și moștenirea culturală a zonei. Fluxul vizitatorului se desfășoară ca o poveste coerentă, de la strugure la vin, de la pământ la pahar, iar experiența este completată de atenția la detalii și calitatea spațiului.
Crama Domeniile Ovidiu reprezintă o fuziune între tradiție, tehnologie și experiență vizuală. Alegerea materialelor, proporțiile arhitecturale și atenția la detalii creează o identitate calmă, durabilă și tactile, care valorifică patrimoniul viticol al zonei și oferă vizitatorilor o experiență completă de degustare și vizitare, unde arhitectura, vinul și memoria locului se împletesc într-un întreg coerent și memorabil.