
Comentariul autorului:
E un cariu. Ceasornicul Morții, îi spun unii. Și într-adevăr este un ceasornic al morții. Numai bătăile lui îmi revelează Timpul-Moarte, timpul în care trăim noi, oamenii, atunci când spunem că trăim, că suntem vii. Orice altă bătaie – de ceasornic, de orologiu, de clopot – mi se pare camuflată. Suntem păcăliți; ni se spune că a mai trecut o jumătate de oră, sau că e șase – ca și cum asta ar avea vreo importanță. Important e că Timpul nostru, așa zis al Vieții, e un Timp al Morții. (M. Eliade, Noaptea de Sanziene, p. 67, Editura Minerva, 1991, Bucuresti)
Încercând să navighez între layerele istorice și posibilitățile de abordare a unui sit cu multiple valențe și moșteniri, am propus un proiect experimental despre reflexia și reflecția societății în dezvoltarea urbană și arhitecturală, despre căutarea insipirației în cinematografie, beletristică și literatura de specialitate. Devine un proiect scenografic, de căutare și interpretare a timpului istoric, mitic, literar și fizic. Așadar, fiecare decizie categorică are un corespondent în cel puțin una din cele menționate mai sus.
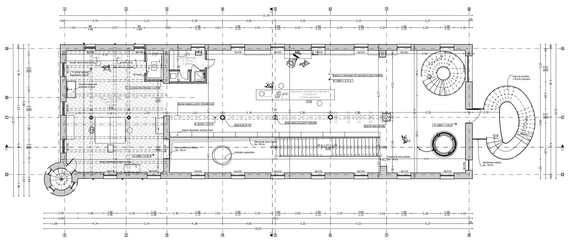
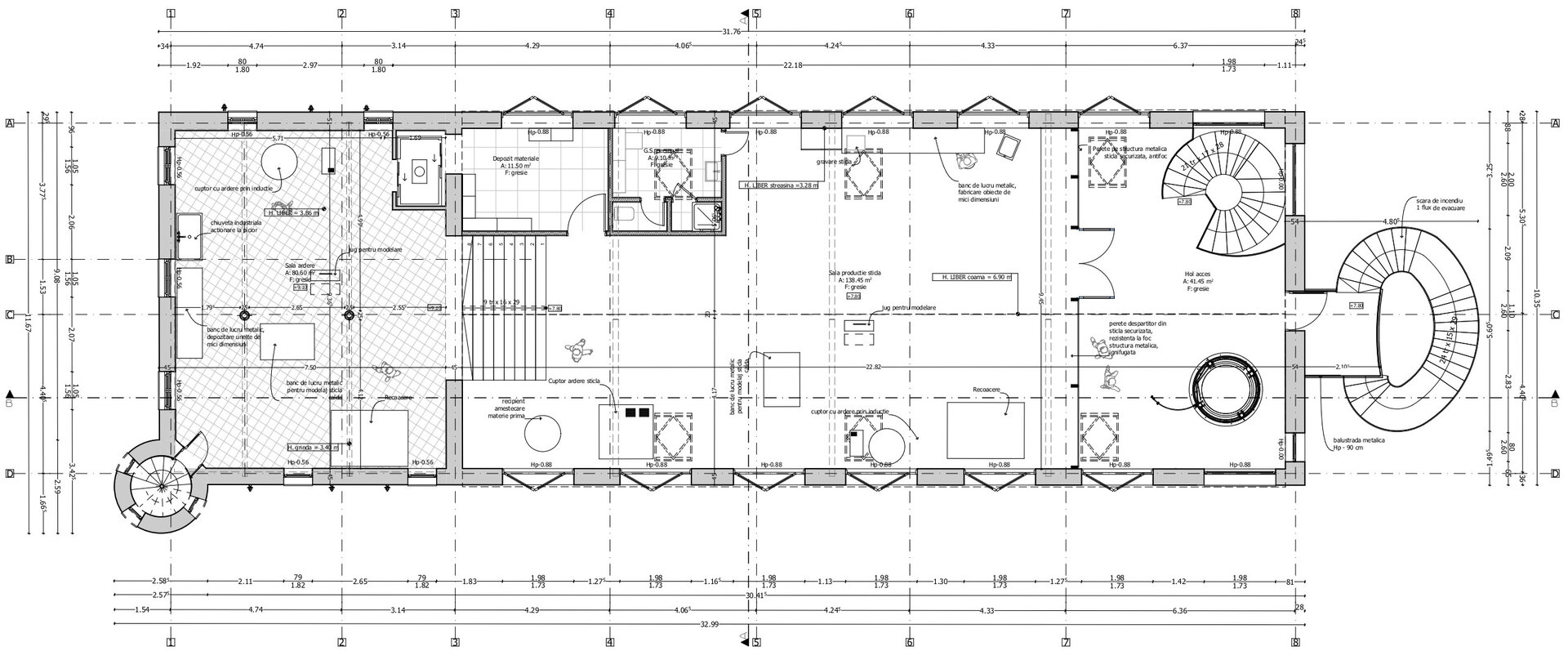
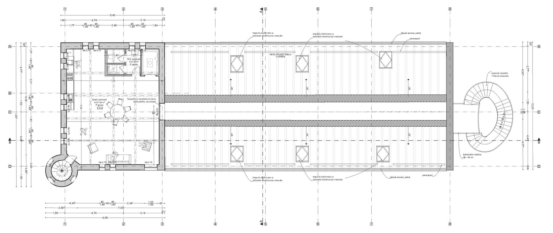
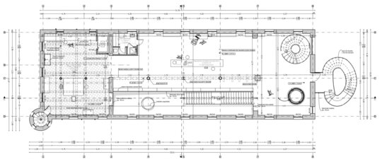
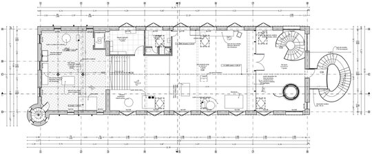
Proiectul cuprinde două părți: propunerea de dezvoltare urbanistică și propunerea arhitecturală. În cadrul proiectului s-au analizat atât corpurile fostei fabrici, cât și sinagoga Wisznitz. Astfel, se reiterează ipoteza expusă in cadrul lucrarii de fundamentare, anume tratarea ansamblului ca un mall cultural, un organism de sine stătător.
Lucrarea a încercat de la început să se raporteze la diferite instanțe ale timpului: trecutul istoric, realitatea de azi, și timpul dintre cele două. Ierarhizarea acestora se conturează și în urma analizei posibilităților de transpunere și situația existentă: memoria colectivă a siturilor evreiești, percepția antagonică asupra siturilor industriale. Astfel, s-au identificat perioadele importante legate de dezvoltarea ansamblului pe care încercăm să le reiterăm în cadrul proiectului. Identificarea perioadelor este reprezentată schematic în figura „axa temporala. Layere istorice”, iar transpunerea și corespondentele bibliografice sunt explicate în schema detalii de plan pentru amenajare teme-suprateme:
Perioada de început – Art Nouveau – 1860-1920 – golul. Ochi de apa, reflectie si reflexie
Este perioada în care se dezvoltă industria orădeană și situl aflat în studiu. S-au identificat câteva caracteristici specifice curentul Art Nouveau, care se transpun în traseul tematic și parcul propus împrejur.
Corpul C1 - amplasată atipic în tesutul urban actual (datorită mutilării sitului istoric industrial), apropierea de cladire invită la reflecție și reflexie prin crearea unei oglinzi de apă – astfel, orașul apare ca proiecție a imaginarului si ca un proiect al psihicului colectiv prin funcția memorialistică. Se propune un spatiu imaginat, care impreună cu clădirea Jean Nouvel, devine interesant prin prisma dinamicității ce se creează, și mai puțin prin arhitectura pe care o propune.
Perioada este reintertpretată si la nivel de funcțiuni, în special a corpului Fabrik, care pune în prim-plan manufactura printr-o optică contemporană și economică.
Al Doilea Război Mondial – Memoria colectivă în spațiu public – 1939-1945
Descrie trecutul dureros și transformarea zonelor adiacente în ghetou de evrei; așează situl în contextul orașului.
Raportat la aceste două perioade, se propune crearea unui traseu tematic atat la nivel de oras (care include clădiri Art Nouveau, Seccesion și zone cu importanță ridicată pentru comunitatea evreiască – sinagogi), cât și la nivel de amplasament. De asemenea, este propusă o instalație de artă ce se inspiră din romanul „Ora 25”, care îl are în centru pe Ion, Jacob, Iankel, Johan, Iohan. (vezi figura detalii de plan pentru amenajare teme-suprateme).
Perioada socialistă – djini ai locului
Își lasă amprenta asupra sitului prin prisma dezvoltărilor urbanistice din împrejurimi și prin parazitarea sitului Fabricii. Pe de alta parte, conform unor cutume urbane, ea a fost utilizată ca fabrică de parfumuri in aceasta perioadă (sursele istorice avute la dispoziție nu au atestat încă acest fapt).
Raportarea la aceasta perioadă de timp impune anumite polemici, legate în special de percepția antagonică a populației asupra moștenirilor perioadei, dar și asupra faptului că mostenirile urbane și arhitecturale sunt considerate parazitare.
Azi – Ruină – 1945-2024
Dicteaza niște direcții mai palpabile privind propunerea conceptuală: accentuarea imaginii existente de ruină stabilizată.
Trecut - prezent – Viitor – instalatie de artă timpul
Puse în antiteză și in comparație, se propune o instalație de artă în piațeta scufundată inspirată din filmul Inception – ca orientare asupra timpului oniric. Acest punct terminus invită la rememorare, la o perspectivă critică asupra ipostazelor temporale – care, privind de aici, le putem înțelege cumulativ, atât ca perspective urbane, cât și ca percepție spatială.
Propunerea de dezvoltare urbanistică propune două scenarii: pornind de la contextul existent (scenariul 1) si anticiparea următoarelor direcții de dezvoltare urbanistică și imobiliare din zonă (scenariul 2).