
Comentariul autorului:
Scopul general al lucrării este elaborarea unui proiect arhitectural pentru transformarea unei foste băi publice din Chișinău într-un centru SPA modern, printr-o intervenție care combină păstrarea valorii arhitecturale originale cu integrarea unor funcțiuni contemporane. Baia Nr.5, construită în 1961, a fost o parte importantă a culturii sovietice, având scopul de a compensa lipsa generală a instalațiilor de baie în locuințe. Astăzi, e o simplă clădire din cărămidă roșie, uitată și ascunsă de vegetație.
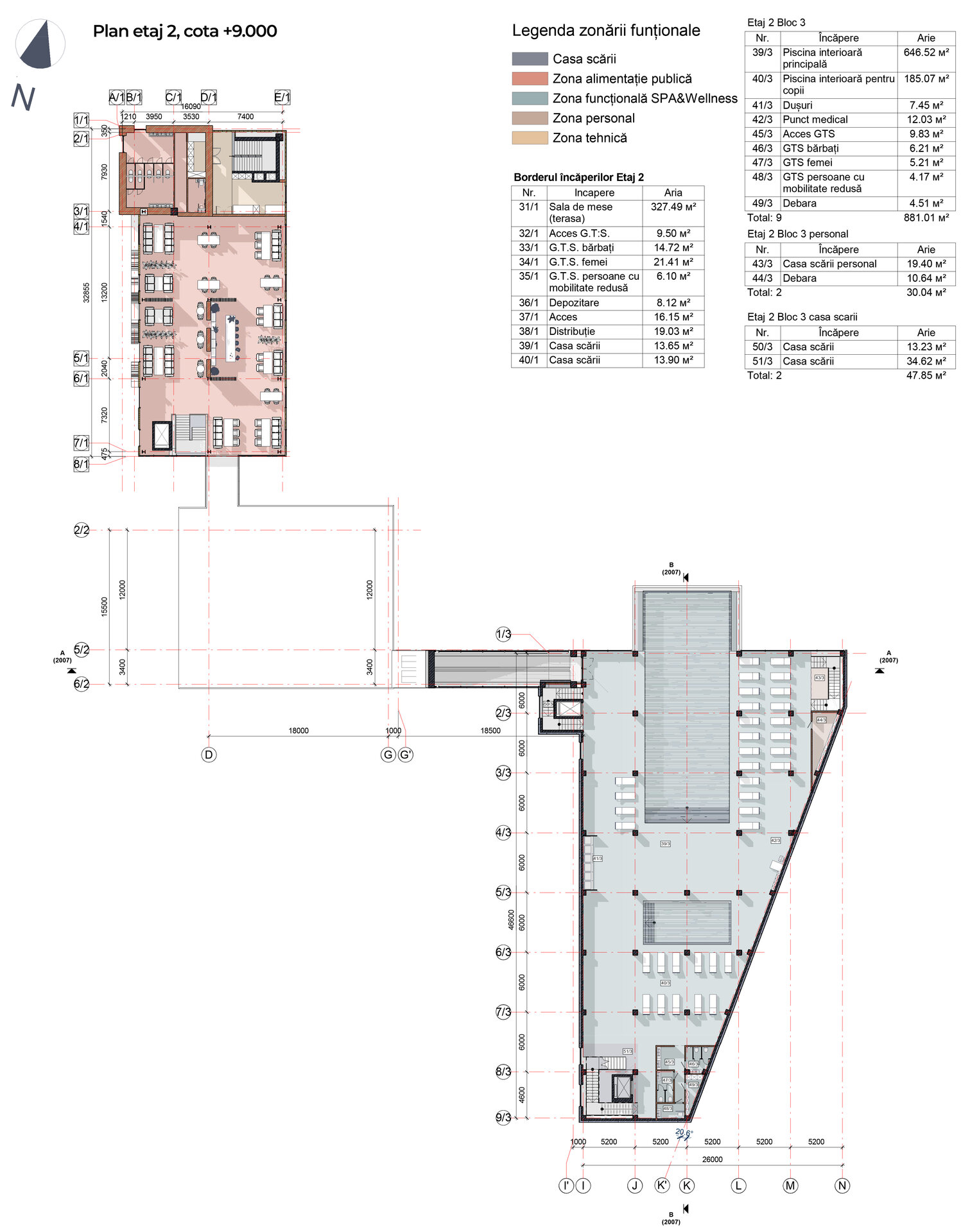
În urma cercetării și analizei sitului, a fost elaborat un plan general detaliat pentru un centru SPA cu o capacitate de 110 persoane, pe un teren de 0,38 ha. Zona este organizată funcțional în mai multe subzone: zona construită (cu trei volume – baia reconvertită și consolidată, clădirea de acces și corpul SPA propriu-zis, toate 3 unite între ele prin galerii), zona piscină exterioară, zone verzi, spații gospodărești și accese auto/pietonale. Având în vedere suprafața limitată a terenului, s-a decis propunerea parcărilor subterane, iar suprafața din fațada principală a centrului a fost valorificată optim pentru amenajarea spațiilor verzi, acceselor pietonale și pentru crearea unor zone de terase destinate sezonul estival. Zona exterioară a fost gândită cu atenție la patrimoniu, pentru a conserva identitatea istorică și valoarea arhitecturală, dar și a armoniza construcțiile propuse cu cele existente.
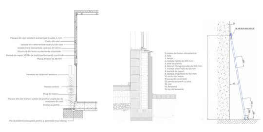
Din punct de vedere arhitectural, proiectul valorifică estetica clădirii funcționaliste existente, păstrând fațada originală din cărămidă roșie, completată de volume moderne cu geometrii simple și intervenții transparente., Cărămida conferă clădirii existente o textură caldă, iar cortenul, aplicat ca accent, subliniază dinamismul și autenticitatea arhitecturală, fiind parte integrantă a formei clădirii. Fațada ventilată din fibrocement a clădirilor propuse, cu aspectul său modern și tehnic, contrastează cu cărămida și cortenul, accentuând tensiunea dintre tradiție și inovație. Acest contrast ajută la evidențierea formei și performanței clădirii, fără a compromite estetica dinamică.
Soluția spațială a centrului SPA oferă o distribuție clară a funcțiunilor pe niveluri și o relație coerentă între spațiile interioare și cele exterioare între cele 3 blocuri propuse.
Primul bloc (clădirea existentă) își păstrează cu forma existentă regulată în plan, cu propunerea conversiei în zone de alimentație publică (cafenea, restaurant și terasă), zone tehnice, căi de comunicare. Al doilea bloc, destinat zonei de intrare, are o formă parțial rectangulară în plan. Aceasta prevede zona de intrare cu garderobă, recepție, lounge, zona personalului, zona comunicaților verticale, zona sanitară destinată vestiarelor și dușurilor și zona parcării subterane,cu o capacitate de 44 locuri.În clădirea zonei SPA se află zona SPA propriu-zisă, desfășurată pe 5 nivele, prevăzută cu dușuri (tropical, emoționale), saune, băi cu aburi, zona terapiilor, cabinete de masaj, Zona VIP, spații sanitare, spații pentru personal și depozitare, zona bazinelor interioare, spații pentru saloane de înfrumusețare și sală de sport.
În concluzie, din punct de vedere constructiv, au fost propuse soluții de consolidare a structurii existente, precum și un sistem structural modern pentru corpurile nou propuse iar soluțiile de design coloristic, alături de conceptele arhitecturale ale fațadelor și rezolvarea aspectului spațial-volumetric, contribuie la crearea unui caracter unic al centrului SPA.