
Comentariul autorului:
Proiectul propus constă într-un complex multifuncțional care îmbină un centru de afaceri cu un hotel de cinci stele, oferind o experiență unitară și diversificată pentru utilizatori. Ansamblul are ca obiectiv crearea unui pol de atracție urbană, care să răspundă atât nevoilor de business și cazare la standarde internaționale, cât și celor de socializare, consum și recreere. Capacitatea hotelului este de 100 de locuri, ceea ce îl face competitiv în raport cu infrastructura turistică a orașului, dar și integrat organic într-o clădire care nu este exclusiv dedicată unei singure funcțiuni.
Compoziția volumetrică este structurată în două corpuri principale. Pe de o parte, turnul de birouri cu 16 niveluri, o prezență verticală și elegantă care marchează silueta ansamblului. Pe de altă parte, hotelul cu un caracter mai orizontal, desfășurat pe volume fluide cu terase verzi, care aduc natură la fiecare etaj și creează o atmosferă prietenoasă pentru utilizatori. Între cele două volume se află zona comună a centrului comercial, dezvoltată pe parter și primul etaj, gândită ca un spațiu vibrant, animat și permeabil.
Expresia arhitecturală se bazează pe liniile fluide și pe colțuri rotunjite, care atenuează relația cu contextul și conferă ansamblului o eleganță modernă. Fațadele biroului sunt articulate prin benzi vitrate ample, parțial filtrate de lamele metalice ușoare care reglează intrarea luminii și creează un dialog dinamic de umbre. Vegetația este tratată deliberat ca element de arhitectură: hotelul integrează plante și jardiniere pe balcoane, transformând fiecare etaj într-o terasă verde care atenuează scarile volumetrice și oferă comfort vizual și microclimatic; în paralel, vegetația urmează parțial liniile ferestrelor vitrately ale corpului de birouri, creând o bandă vegetală care subliniază ritmul fațadei și aduce un filtru natural pentru interior.
Configurarea internă și relațiile verticale pun accent pe calitatea experienței: centrul comercial beneficiază de un atrium generos care devine „piața” internă a spațiului comercial—un loc de acumulare, expunere și întâlnire, proiectat pentru a conferi identitate și atmosferă. În același timp, hotelul și centrul de afaceri păstrează funcțiuni distincte și tratare separată, pentru a asigura coerență operațională și intimitate acolo unde este necesar.
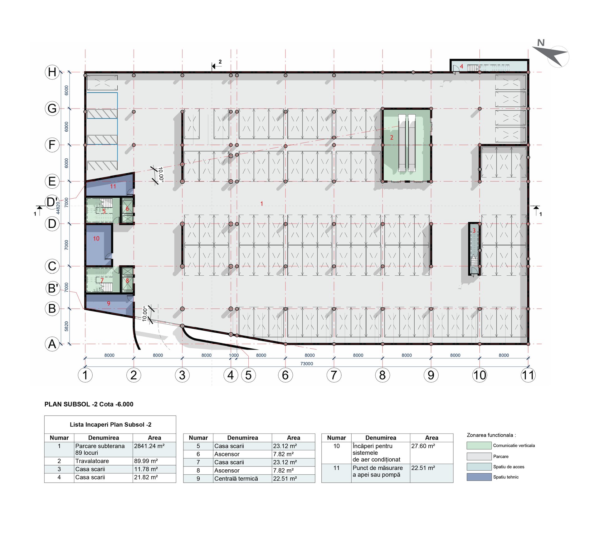
Soluțiile pentru parcări și circulații auto au fost gândite pentru claritate și eficiență. Accesul principal la parcarea subterană se face la cota -1, unde fluxurile sunt organizate pentru intrări și ieșiri separate către cele două niveluri (-1 și -2). Tot la nivelul -1 se află și zona de așteptare pentru taxiurile hotelului, concepută astfel încât să nu interfereze cu fluxurile pietonale de la suprafață. În completare, complexul dispune de o parcare exterioară deschisă, amplasată în partea din spate, aproape de accesul în centrul de afaceri, iar în dreptul hotelului au fost prevăzute trei locuri speciale pentru autocare, pentru a facilita sosirea grupurilor de turiști.
Un element distinctiv îl reprezintă integrarea verticală a luminii și vegetației. Planșeul parterului este străbătut de goluri ample, care permit amplasarea de scări și escalatoare exterioare pentru legătura directă dintre parter și subsoluri. Aceste deschideri creează transparență între niveluri și aduc lumină naturală în profunzime. În plus, unele goluri sunt concepute pentru a include arbori de talie medie, astfel încât vegetația pătrunde până la nivelul -1, conferind o ambianță naturală și o identitate vizuală unică spațiilor subterane.
În completare, a fost gândită o zonă verde extinsă – un parc urban – care oferă un cadru natural de relaxare și devine elementul principal al spațiilor exterioare, contribuind la identitatea și atractivitatea complexului.