
Comentariul autorului:
Teatrul Național „Eugene Ionesco”, care poartă numele marelui dramaturg român de renume mondial, reprezintă un reper cultural și social de importanță majoră pentru comunitate. Proiectul propune reconstrucția clădirii existente, păstrând memoria locului și integrând arhitectura contemporană, astfel încât să se creeze un spațiu cultural modern, funcțional și vizibil pentru întreaga zonă urbană. Situl are o valoare istorică deosebită: Biserica Sf. Mihail și Gavriil (Catedrala Vechi), fondată în 1806, și muzeul bisericesc, construit în 1906, marchează tradiția culturală a zonei. De asemenea, fostul cinematograf (1965), ridicat peste fundațiile bisericii după demolările monumentelor istorice din 1963, reflectă evoluția complexă a sitului. Ruinele muzeului bisericesc și vestigiile clădirilor anterioare au fost păstrate și integrate în conceptul nou, menținând continuitatea urbană și respectând istoria locului.
Intervenția arhitecturală răspunde problemelor existente: fațade degradate, spații interioare nefuncționale, lipsa accesibilității, iluminare insuficientă și neconformitatea cu standardele tehnice actuale. Pentru conservarea și punerea în valoare a monumentelor istorice, fațadele clădirilor istorice au fost restaurate, iar în zona Bisericii Sf. Mihail și Gavriil am propus un vitraliu în pavaj, care permite vizualizarea fundațiilor originale și oferă o legătură vizuală între trecut și prezent. Zona muzeului bisericesc a fost reconstruită ca spațiu pietonal complet accesibil, iar beciurile subterane au fost transformate într-un mic muzeu cu panouri informative despre istoria sitului, creând astfel un traseu educativ pentru vizitatori. În ansamblu, zona exterioară a fost organizată cu atenție la patrimoniu, pentru a păstra identitatea istorică și a integra armonios clădirile noi cu cele existente.
Conceptul arhitectural al teatrului urmărește o reorganizare clară și funcțională a spațiilor, integrând principii de sustenabilitate și deschidere către comunitate. Fațadele clădirii noi sunt realizate din panouri metalice albe, rotite la 45°, care filtrează lumina naturală, reduc supraîncălzirea și oferă o imagine dinamică, inspirată din metafora „draperiei scenice”. Volumetric, clădirea se distinge în peisajul urban prin ritmul verticalităților, creând un reper vizual puternic și recognoscibil.
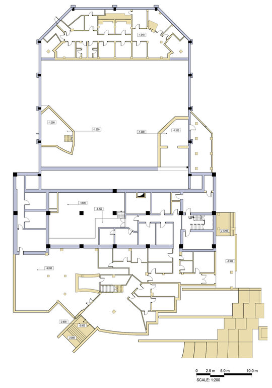
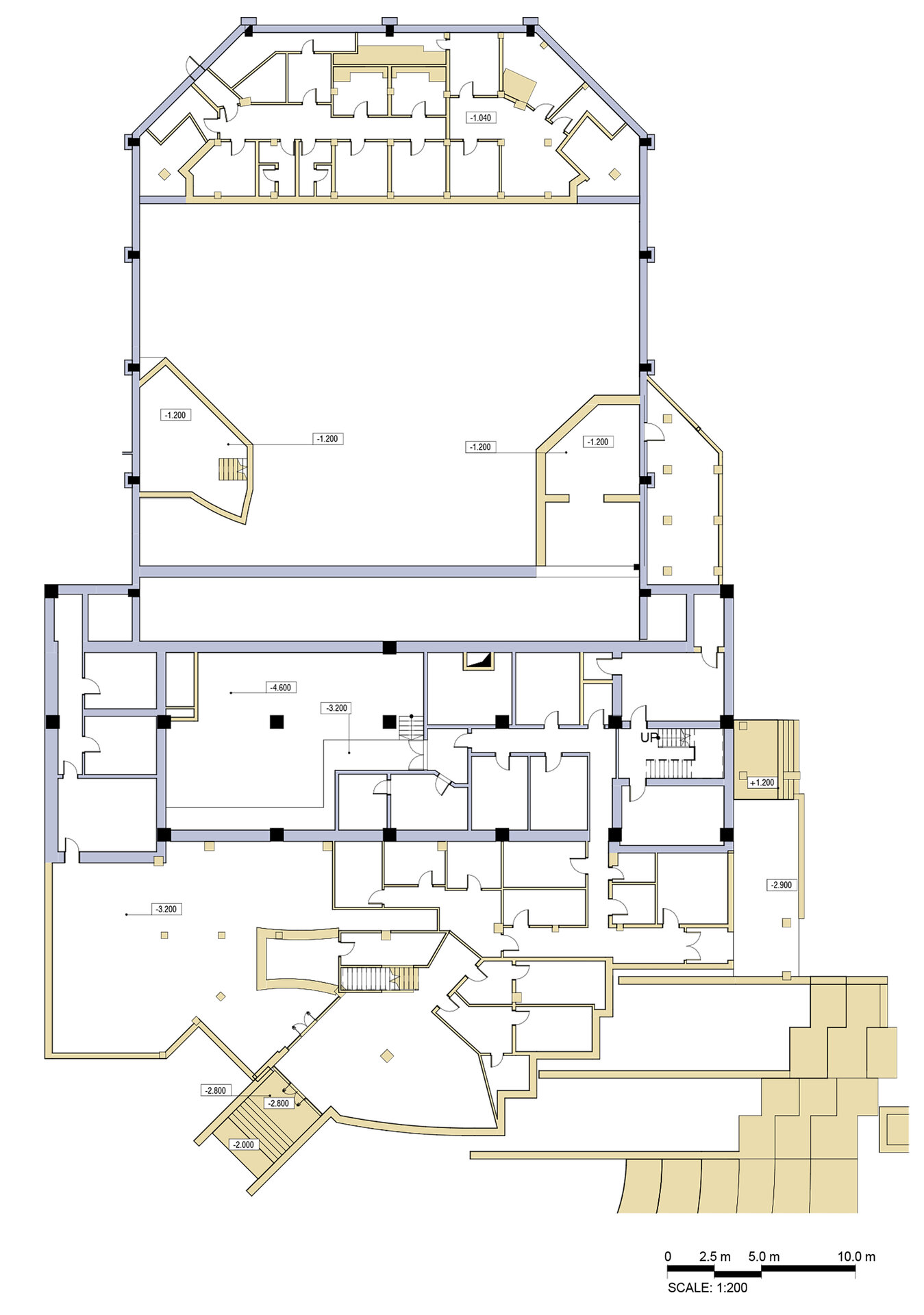
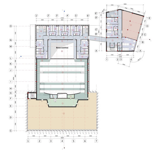
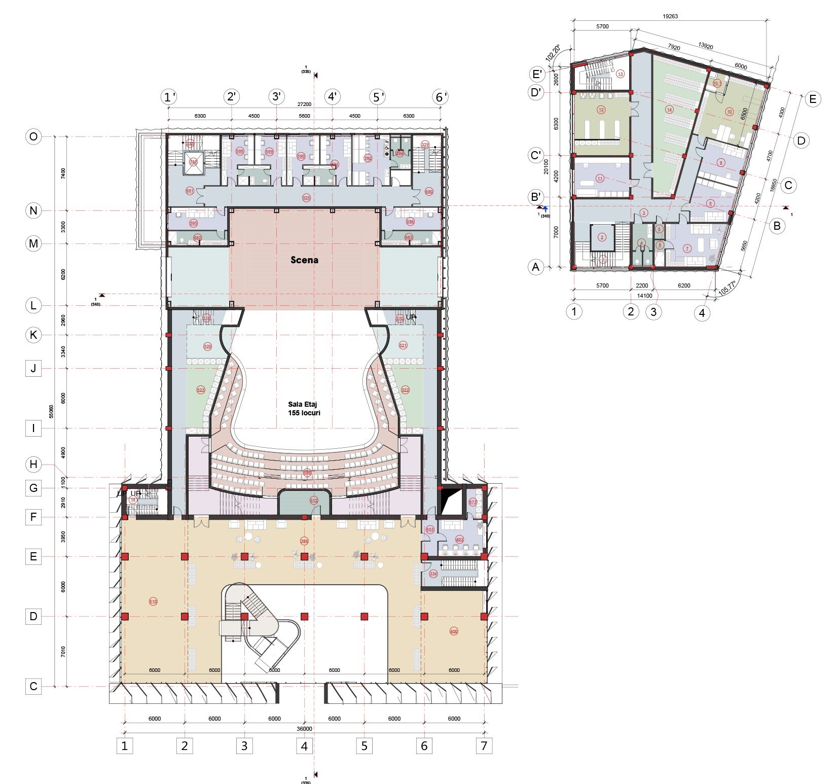
Funcțional, teatrul este organizat pe nivele bine definite: demisol – sala mică de 137 locuri, complet autonomă; parter – sala principală cu 407 locuri, foaier, cafenea și loje pentru 155 de spectatori; etaje – spații administrative, tehnice și de repetiții. În partea din spate, boxa scenică respectă standardele internaționale pentru spectacole complexe, iar blocul de producere, desfășurat pe cinci nivele, include parcare subterană, ateliere și spații dedicate artiștilor invitați.
Spațiul public este animat și conectat la comunitate printr-o sculptură simbolică a lui Eugene Ionesco călare pe rinocer, marcă identitară și element de recunoaștere culturală pentru public. Traseele pietonale, zonele verzi și iluminatul ambiental au fost gândite pentru a crea un mediu sigur, accesibil și prietenos, care încurajează interacțiunea și vizitele regulate ale publicului.
În ansamblu, proiectul propune un teatru modern, funcțional și cultural relevant, care pune în valoare istoria sitului, păstrează monumentele și fundamentele istorice, și oferă infrastructură contemporană, adaptată nevoilor actuale ale orașului, artiștilor și spectatorilor. Intervenția realizează un echilibru între trecut și prezent, între patrimoniu și arhitectură contemporană, transformând situl într-un centru cultural european cu identitate puternică și vizibilitate urbană.