
Comentariul autorului:
Scopul proiectului: Elaborarea unei propuneri spațial-volumetrice și funcțional-planimetrice pentru reabilitarea Filarmonicii Naționale existente, situate în centrul istoric al orașului Chișinău, pentru a-și relua funcțiile și oferi condiții confortabile și sigure vizitatorilor, muzicienilor și angajaților instituției.
Obiectivele principale:
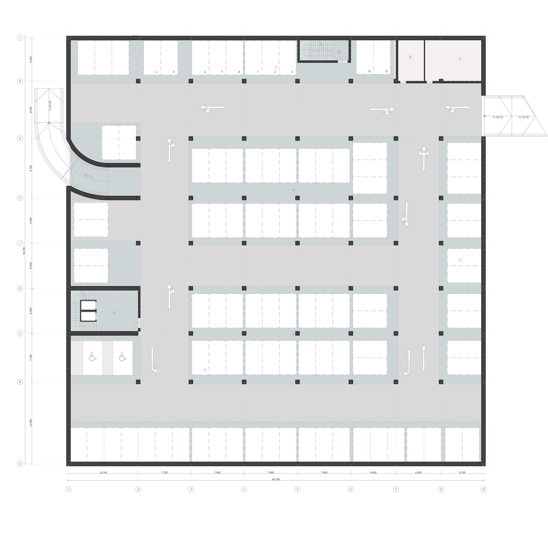
1. Îmbunătățirea infrastructurii de transport, prin asigurarea unui acces confortabil la facilități, alei de acces și intrări, precum parcare pentru angajați și vizitatori.
2. Realizarea unei clădiri moderne, atractive din punct de vedere estetic, încadrându-se în contextul existent al centrului istoric al Chișinăului.
3. Organizarea spațiului astfel încât să îndeplinească cerințele moderne privind zonarea funcțională, oferind condiții confortabile și sigure pentru vizitatori și angajații Filarmonicii, inclusiv sisteme de acces pentru persoanele cu mobilitate redusă.
Rezultate obținute: Proiectul reprezintă o abordare integrată a dezvoltării unui obiect de arhitectură, care nu s-a limitat la realizarea unei clădiri pentru desfășurarea evenimentelor muzicale, ci a inclus și rezolvarea unor probleme de urbanism, figurativ, estetic și tehnologic. În faza de proiectare, a fost abordată problema infrastructurii de transport, fiind elaborate și implementate măsuri pentru asigurarea accesului la obiectiv și pentru reducerea congestionării traficului din zonă, prin amenajarea unor locuri de parcare supraterane și subterane, în beneficiul vizitatorilor și angajaților. Proiectul prevede toate grupurile de spații necesare desfășurării concertelor, repetițiilor și activităților pregătitoare ale Filarmonicii. Propunerea de proiect a completat clădirea Filarmonicii cu o zonă de scenă de vară, care poate fi folosită nu numai pentru spectacole muzicale, ci și pentru desfășurarea diverselor evenimente culturale și de divertisment în aer liber parcursul sezonului cald.
Conceptul arhitectural al Filarmonicii, în care panourile de fațadă evocă imaginea unor culise, reprezintă o soluție unică ce îmbină funcționalitatea cu estetica. Această alegere nu doar reflectă tematica teatrală a clădirii, ci și adaugă dinamism aspectului exterior, generând un joc de lumini și umbre care se schimbă pe parcursul zilei. O astfel de abordare permite integrarea armonioasă a clădirii în contextul urban, evidențiind-o totodată ca un reper cultural important. Spațiul interior capătă o dimensiune suplimentară, oferind vizitatorilor o conexiune cu arta încă de la intrarea în Filarmonică.
Elementul de design amplasat la intrarea principală, reprezentat de discul suspendat, îndeplinește o dublă funcție: pe de o parte, oferă un accent vizual distinct, iar pe de altă parte, servește ca sursă de lumină ambientală, direcționând fasciculele luminoase către zona de relaxare și spectacol. Această soluție contribuie la crearea unei atmosfere primitoare și plăcute, marcând totodată punctele de interes și activitate. În plus, iluminatul astfel conceput susține siguranța și confortul spațiului public în orele de seară.
Teatrul de vară, amplasat în incinta Filarmonicii, oferă un cadru ideal în care se îmbină valorile educaționale cu cele culturale. Datorită proximității față de școala de muzică, elevii au ocazia de a-și demonstra talentul pe o scenă profesională. Această platformă le oferă tinerilor muzicieni oportunitatea de a cânta în fața publicului și de a acumula experiență valoroasă în cadrul evenimentelor artistice.
În spatele teatrului de vară se află o zonă cu vegetație bogată, unde copacii au rolul de a reflecta și controla propagarea sunetului, prevenind dispersia acestuia în afara spațiului de spectacol. Această soluție arhitecturală contribuie la îmbunătățirea acusticii, asigurând o calitate sonoră superioară pentru spectatori. Arborii acționează ca elemente naturale de absorbție fonică, reducând ecoul și zgomotele externe, pentru a oferi o experiență auditivă clară și plăcută.
Mutarea monumentului lui Karl Schmidt în zona centrală a scenei de vară reprezintă un gest simbolic, menit să evidențieze importanța și contribuția sa istorică. Așezarea sa în centrul compoziției atrage atenția asupra valorii sale și îl transformă într-un reper vizual și identitar pentru acest spațiu. Această decizie accentuează relevanța istorică a personalității omagiate, oferindu-i o vizibilitate sporită în cadrul comunității.
Coloanele, al căror design este inspirat din structura unei rotonde, nu reprezintă doar elemente de susținere și coeziune arhitecturală, ci și simboluri cu semnificație istorică. Ele evocă memoria și moștenirea culturală, făcând referire inclusiv la rotonda proiectată anterior de arhitectul Voițehovski. Acest omagiu adus istoriei și patrimoniului arhitectural este integrat armonios în conceptul modern, contribuind astfel la păstrarea și celebrarea tradiției în cadrul unei viziuni contemporane.