
Comentariul autorului:
Proiectul urmărește reabilitarea unui fragment din țesutul urban al Bucureștiului. Această zonă ocupă un loc în memoria colectivă și se impune ca un arhetip al spațiilor de agrement interbelice, având în vedere faptul că, încă de la prima organizare a parcelei, în 1928, aceasta și-a păstrat scopul original – acela de piscină publică. Prima propunere, realizată de Marcel Iancu, o figură marcantă a modernismului românesc, imagina o incintă amplă, organizată în jurul laitmotivului complexului: piscina.
Conceptul operează la scară urbană, cu intenția de a reda valoarea acestei părți din țesutul urban, care a devenit un spațiu rezidual, insensibil față de semnificația sa istorică. În consecință, se prevede demolarea elementelor parazitare apărute în ultimele decenii și, în plus, rămase nefinalizate, precum și reorganizarea parcelei prin volume arhitecturale simple, care aderă la unele dintre principiile evocate în planul original.
Având ca scop depășirea unui răspuns pur funcțional, specific programelor de acest tip, discursul se orientează spre statutul nobil și elegant reprezentat de gimnaziile și palestraele antice – predecesoarele sălilor de sport moderne. Această întoarcere la origini determină expresia formală a spațiului central protejat, ilustrată printr-o incintă amplă, în jurul căreia se coagulează celelalte funcțiuni sportive.
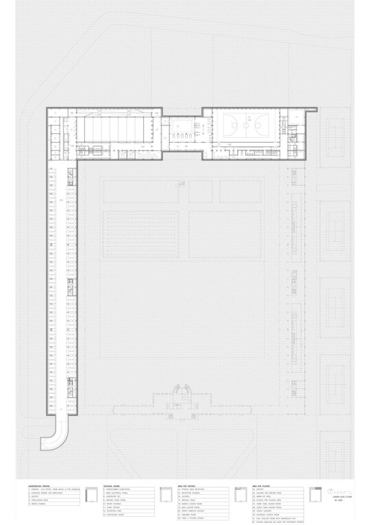
În afara incintei propriu-zise, zonele neconstruite sunt structurate într-o succesiune de componente cu roluri diferite, care, împreună, generează coerența de ansamblu: terenurile de sport existente sunt reorganizate sub forma unor „camere urbane”, legate prin piețe umbrite și două puncte principale de acces situate la extremități, fiecare marcat printr-o piațetă minerală de onoare (dintre care una deja există), deschise spre oraș. Spațiul liber rămas devine o generoasă grădină urbană, care intră în caracterul aleatoriu, organic, al vegetației.
Rezultatul este o arhitectură a mișcării și a momentelor – o „agoră” în sensul conotativ al spațiului public de întâlnire, adunare. Pentru a accentua această zonă centrală, motivul porticului perimetral este reiterat, depășind scopul pur funcțional și programatic de circulație și devenind mai degrabă o extensie a spațiilor interioare – un foaier exterior, o terasă sau un moment de pauză.
Pe de altă parte, ideea unei osaturi riguroase este susținută de acuratețea structurii, al cărei ritm se exprimă atât în organizarea spațială, cât și în imaginea exterioară. Acest „schelet sincer” își adaptează caracteristicile zonelor interioare, îngustându-se sau lărgindu-se în funcție de elementele programatice importante – cum ar fi sala de sport, piscina interioară și foaierele de acces. Aceste spații principale își exprimă relevanța în cadrul ansamblului prin scară și înălțime. Semnificația lor spațială este strâns legată de conținut, iar limbajul și expresia sunt modelate de natura fiecărui loc în parte. Se conturează un dialog continuu între funcțiune, structură și materialitate, care distinge fiecare experiență spațială.
Astfel, agora își propune să fie mai mult decât convenționalul locului de antrenament - este un loc al orașului și pentru oraș, în care memoria arhitecturii de loisir interbelice a Bucureștiului este retrăită.