
Comentariul autorului:
Proiectul răspunde invitației lui Carlo Ratti de a explora termenul intelligens, propunând ca punct de plecare conceptul de „rădăcină”. Dacă „gens” înseamnă „oameni”, „neam” sau „trib”, „rădăcina” evocă atât originea, cât și conexiunea profundă cu un imaginar colectiv, depășind limitele actuale ale inteligenței artificiale. Această viziune anticipează o formă de inteligență inclusivă, adânc ancorată în imaginarul colectiv, ce depășește limitările contemporane ale Inteligenței Artificiale.
Industria Arhitecturii, Ingineriei și Construcțiilor are un impact semnificativ asupra mediului prin consumul de resurse și generarea de emisii. Reducerea acestor prejudicii necesită o abordare radicală a metodelor de construcție și proiectare. Proiectul propune o întoarcere la rădăcini, accentuând înțelesurile termenului, de la sensul primar al rădăcinii unei plante până la sensurile figurate de cauză, origine, sau element lingvistic ireductibil. Rădăcina devine astfel o sursă de inspirație pentru soluții inovatoare.
Întoarcerea la rădăcini înseamnă reamintirea unei inteligențe arhaice provenite dintr-un imaginar colectiv. Oamenii pământului au trăit în ritmul naturii, iar inteligența lor își are sursa în imaginarul colectiv descris în repertoriul național literar. Această inteligență s-a manifestat în toate aspectele vieții, inclusiv în mediul construit, făcând acești oameni sustenabili avant-la-lettre. Credința a avut rol de vector comunitar, tradus în termeni contemporani prin "misiune, viziune, valori." Acesta subliniază importanța unei abordări integrate și a valorilor comune în proiectarea viitorului.
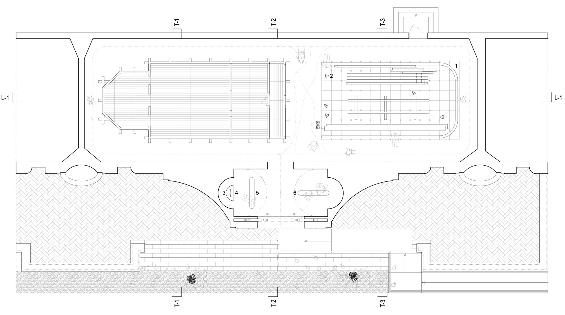
În urma celor enunțate, se ridică întrebări esențiale despre necesitatea construirii, potențialul de recuperare al valorilor abandonate, revitalizarea meșteșugurilor, reducerea deșeurilor și contribuția la conștientizarea comunitară. Proiectul propune ca prezența României la Bienala de la Veneția să graviteze în jurul strămutării, restaurării și înapoierii unei biserici, mai exact a Bisericii de lemn din satul Sâmbotin, județul Gorj, monument istoric înscris în LMI 2015 cu codul LMI 2015: GJ-II-m-B-09369. Acest gest simbolic reafirmă importanța patrimoniului cultural și a meșteșugurilor tradiționale.
Biserica, inclusă în proiectul de documentare al Asociației Biserici Înlemnite, este abandonată și degradată. Datată din 1794, biserica are un plan drept cu abside și pridvor deschis. Sistemul constructiv implică îmbinări în coadă de rândunică și elemente notabile precum grinzile superioare în consolă. Componentele artistice includ iconostasul și ușile diaconești decorate.
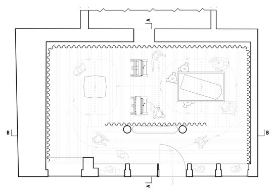
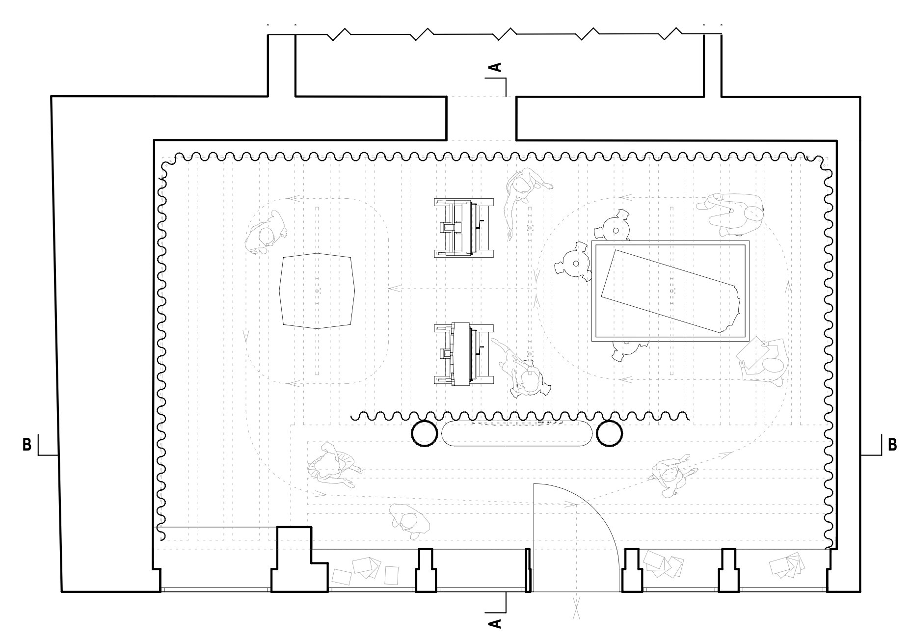
Pavilioanele României din Veneția vor deveni laboratoare de restaurare, spații educaționale și muzee. Efortul va fi concentrat pe analizarea și restaurarea monumentului și pe activitățile conexe, oferind suport pentru restaurare, educație, expoziție și dezbatere. Expoziția va fi vie, iar procesul de restaurare va fi însoțit de prelegeri. Astfel, vizitatorii vor fi martorii și participanții activi la procesul de restaurare.
Pe parcursul primelor 3 luni, se va asista la înălțarea bisericii în Pavilionul României din Giardini della Bienale, biserica fiind amplasată în jumătatea nordică a pavilionului, iar spațiul sudic amenajat pentru activitățile de restaurare și ateliere. Galeria IRCCU va fi dedicată restaurării componentelor artistice, servind drept laborator și spațiu metaforic similar unui spațiu ecleziastic.
În paralel cu restaurarea din Veneția, la Sâmbotin se va desfășura șantierul de restaurare al fundației bisericii pentru ca la finalul bienalei biserica restaurată să fie redată comunității din Sâmbotin. Un gest simplu cu putere de manifest și cu un obiectiv specific, măsurabil, ambițios, realist și relevant. O întoarcere la origini într-o căutare a sensului și, deci, a unei fundații solide pentru un viitor incert - totul sub, probabil, cea mai mică amprentă de carbon a vreunei participări a României la Bienala de Arhitectură de la Veneția.