
Comentariul autorului:
Pe măsură ce mediul construit se confruntă cu o listă tot mai mare de provocări , în contextul unei realități în continuă schimbare, procesul de proiectare presupune o continuă atitudine de reconsiderare a modului în care gândim un concept fezabil, în care ne raportăm la Temele de proiectare, de la concept, la organizarea spațială.
În zilele noastre, planificarea se concentrează pe do no harm, așa că majoritatea criteriilor de verificare a sustenabilității includ modalități de a atenua daunele cauzate de proiectarea deficitară sau de protocoalele și tehnicile de execuție deficitare, protejând resursele pentru generațiile viitoare.
Calea de urmat necesită regândirea nu doar a modului în care construim, ci și a modului în care abordăm întregul proces de proiectare și construcție. Aceasta înseamnă pe de o parte, circularitatea- luarea în considerare a materialelor locale, a lanțurilor de aprovizionare și a nevoilor comunității încă din primele etape, anticipând posibilele etape de evoluție ale comunităților, mediilor construite, și în al doilea rând, integrarea tehnologiilor emergente, ca instrument de facilitare a procesului de cercetare și inovație.
În general, organizarea fizică de succes a fiecărui grup funcțional major implică colocalizarea funcțiilor atât pentru a minimaliza transportul inutil de persoane și materiale, cât și pentru a concentra utilizarea intensivă a capitalului, a spațiului și a echipamentului.
În plus, anumite componente necesită relații strânse cu celelalte din unul sau mai multe motive (ex. accesibilitate, flexibilitate în viitor, etc.).
În planificarea serviciilor care urmează să fie oferite de un spital, trebuie atins un echilibru între riscul investiției și rentabilitatea financiară. Serviciile de diagnosticare, terapeutice, de recuperare și de asistență trebuie să fie planificate și echipate pentru a se completa reciproc în vederea formării unui set complet. Rezultatul trebuie să fie un răspuns eficient și rentabil la cererea probabilă a pacientului. În contextual propus- modernizarea și extinderea unor departamente și servicii medicale esențiale în funcționarea unui Spital Județean de Urgență- Bloc operator, Bloc de nașteri și departamentele conexe, investiția propusă este primordială pentru conformarea spitalului la normele și exigențele în vigoare.
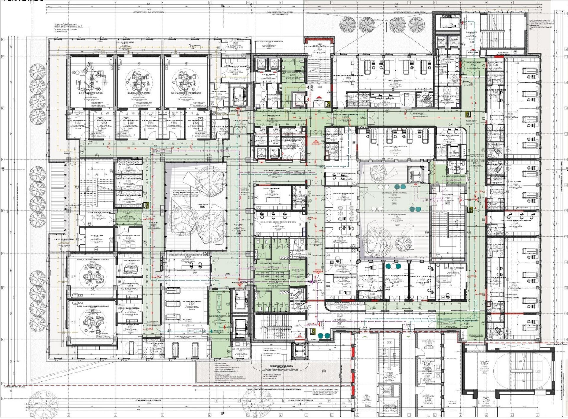
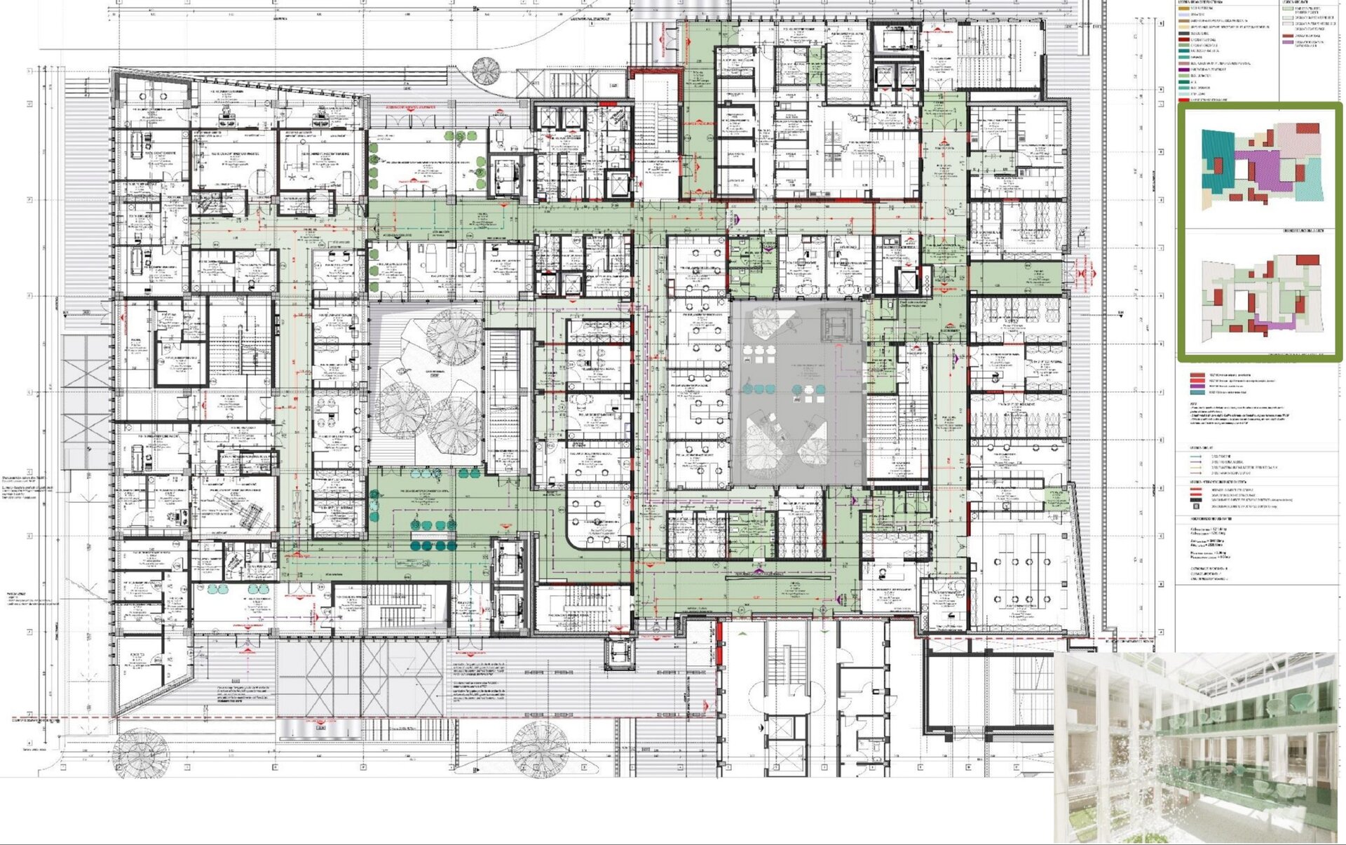
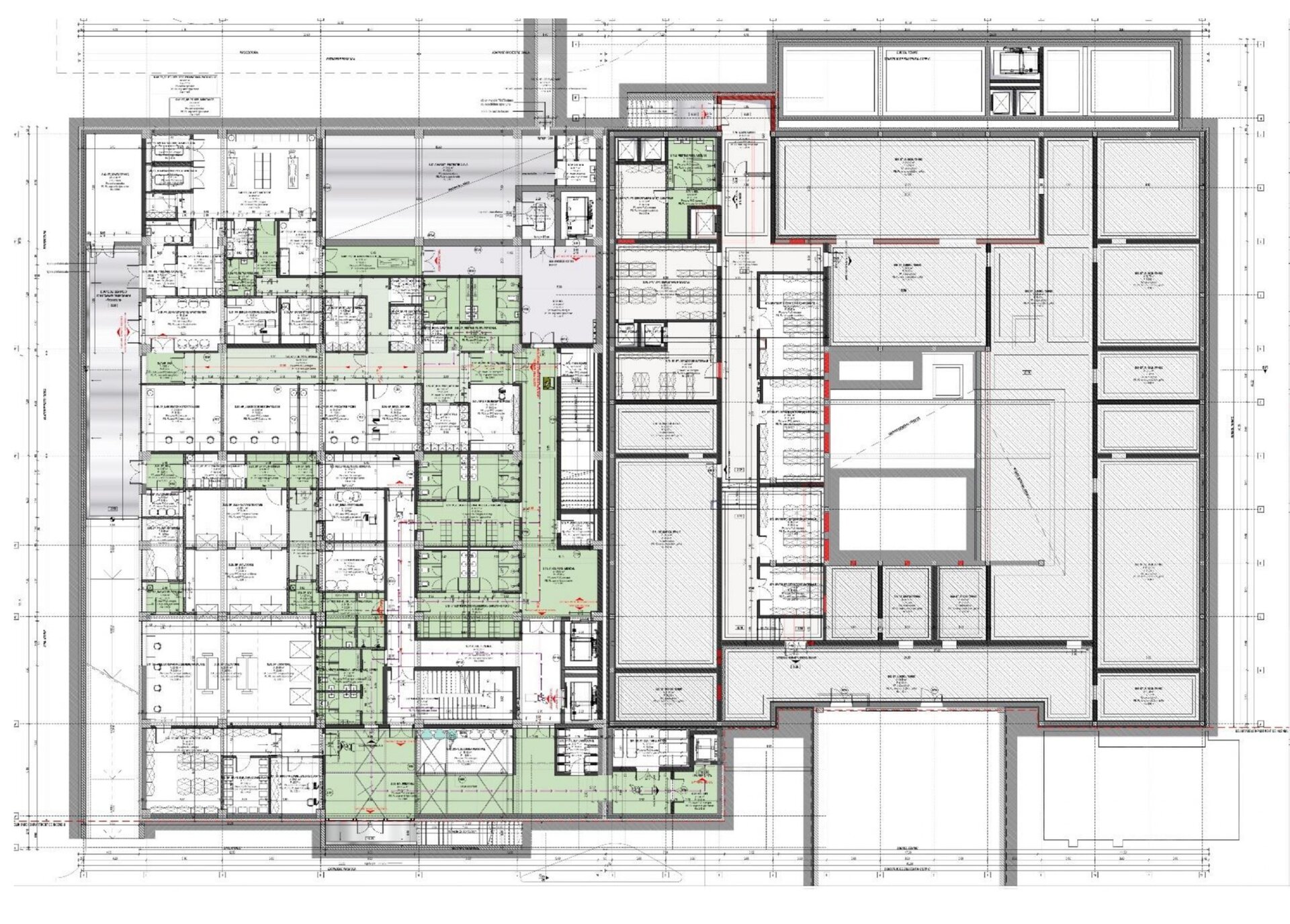
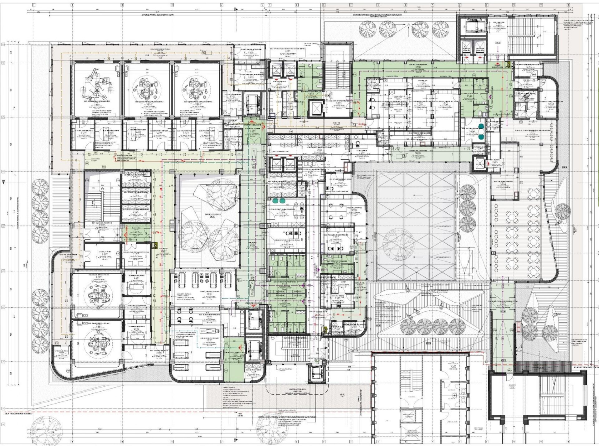
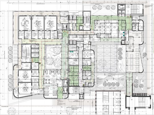
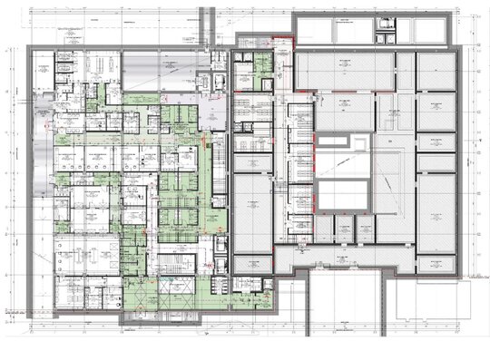
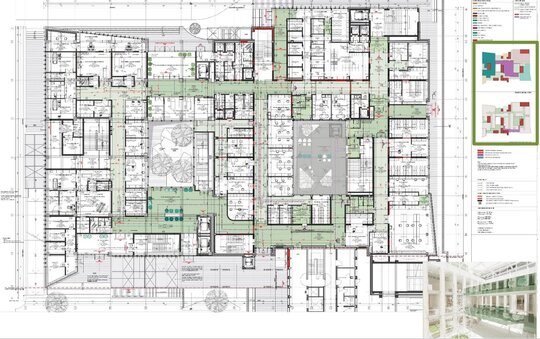
PROPUNEREA FUNCTIONALA s-a realizat prin diferentierea fluxurilor din cadrul sectiilor, dar si din intreg spitalul atat pe orizontala cat si pe verticala, asigurând utilizarea la maximum a capacităților tehnice şi a resurselor umane, dar și circuite corecte din punct de vedere epidemiologic.
Organziarea funcțională propune 2 tronsoane
- tronsonul existent- organizat în jurul unei curți interioare- transformtă în spațiu interior destinat personalului medical- prevăzut cu luminator, pasarele pentru circulație și odihnă personal medical , și lift.
- extinderea propusă- se dezvoltă în jurul unei curți interioare, spre care se deschid circulațiile și spațiile destinate personalului medical
- o pasarelă de legătură cu corpurile A și B ( spitalizare ți circulații verticale) pentru realizarea circuitelor medicale spre Blocul de nașteri și spre Blocul operator.