
Comentariul autorului:
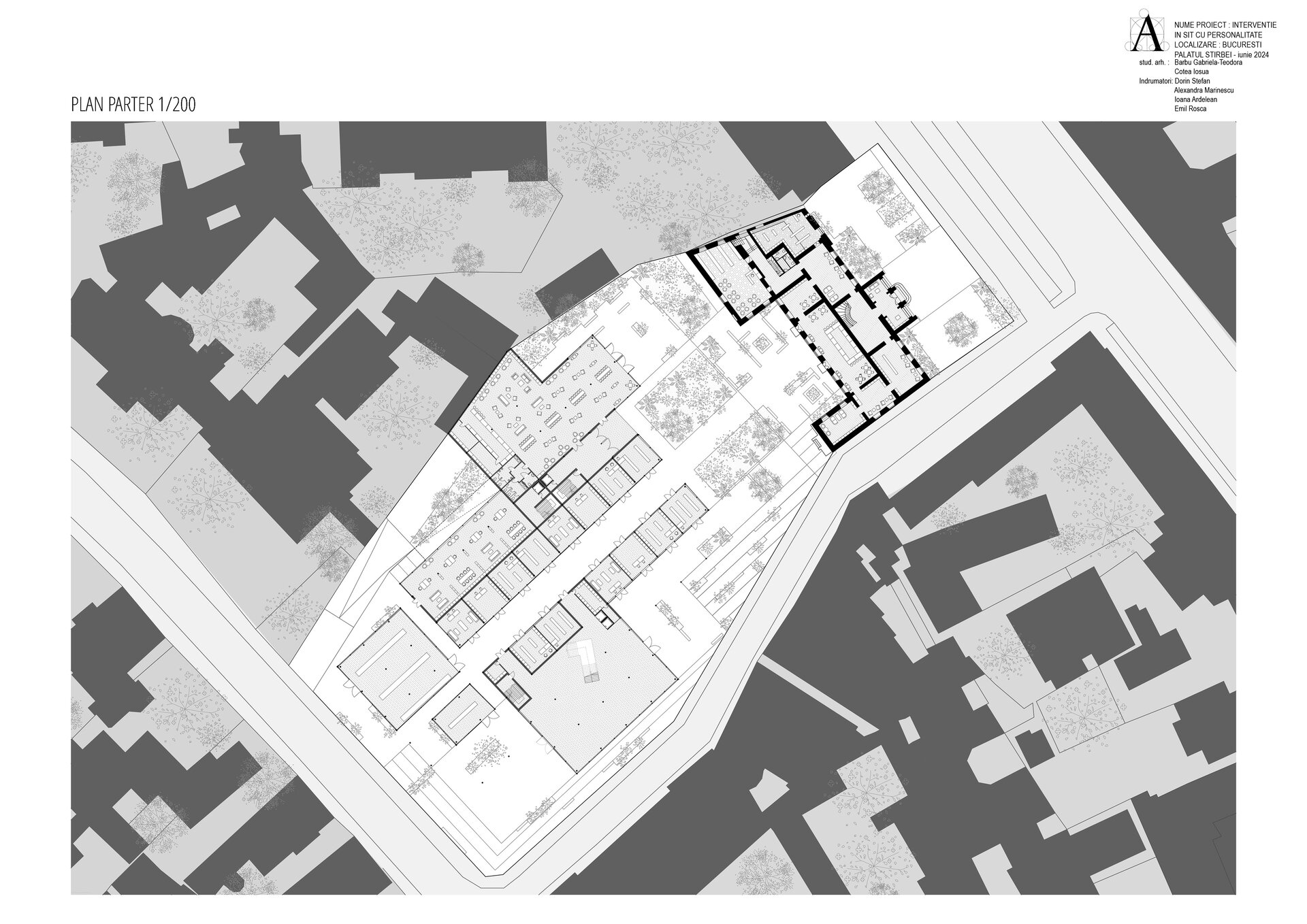
Proiectul de fata reprezinta o reabilitare a Palatului Stirbei si o interventie noua in curtea posterioara a acestuia. Asupra palatului, reabilitarea a fost realizata urmand compartimentarea existenta si pastrand aspectul exterior original al palatului. In interior, elementele arhitecturale valoroase precum tratari ale ferestrelor, plafoanelor, planseelor, sau diverse firide si decoratiuni ale peretilor au fost pastrate, acolo unde se putea, intercaland aceste elemente cu un stil de amenajare contemporan si minimalist. S-au folosit finisaje metalice, naturale, aparente, si mobilier actual, de design. In palat s-au propus functiunile de cafenea, librarie, spatiu expozitional, si magazine diverse. Interventia din gradina palatului constra intr-o cladire noua, ce are functiunea de centru cultural si adaposteste spatii precum cele expozitionale, magazine, in zona de parter, biblioteci, sala multifunctionala, terase si foaier, iar la ultimul etaj, un restaurant panoramic. Conceptul cladirii are la baza fragmentarea si iregularitatea volumelor, regasite in imaginile aeriale ale Bucurestiului, in special in zona Platului Stirbei. Astfel, volumul este unul fragmentat, de volume glisante, "taiate"de terasele iregulare, ce dau impresia unor fasii subtiri ce sparg volumul. Aceste terase sunt partial circulabile. Cladirea are la baza o structura metalica de stalpi si grinzi, iar partea necirculabila a teraselor este de asemenea din metal, zone detaliate si studiate. Sala multifunctionala are intrare prin propriul foiaer si o terasa proprie, avand de asemnea inaltime dubla , cu randuri centrale de scaune, si altele asezate perimetral, de tip loja. La parter, volumul este impartit in doua de un culoar central, bordat de magzine, ce imita la scara mica, senzatia Caii Victoriei, unde palatul are deschidere directa. Noua propunere este legata de palat prin amenajarea exterioara si corelarea functiunilor acestora, dar mai are deschidere si catre artera posterioara acestuia, unde se afla un nod de stalpi structurali si sculpturali, ce sustine etajele superioare ale volumului.