
Comentariul autorului:
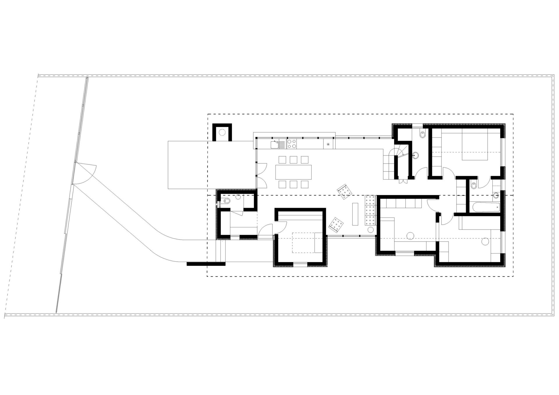
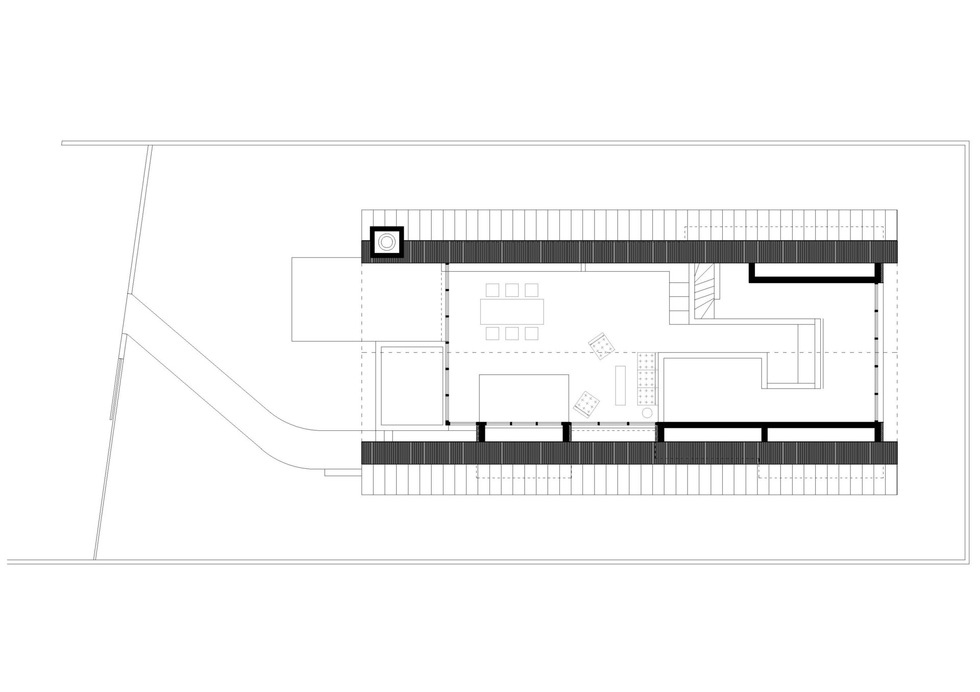
Locuirea se petrece sub un mare acoperis simplu, in doua ape. Sub acest acoperis, o serie de cutii ofera spatiile intime, ascunse ale casei; camere introvertite, cu inaltime mica, cu ferestre obisnuite. Aceste cutii deseneaza in negativ spatiul dominant, de zi, in care isi gasesc loc elementele de mobilier care confera domesticitate: masa, canapeaua, bucataria, etc. Experienta schimbarii scarii arhitecturale este astfel intarita de tipul acoperisului (oblic/ orizontal), al luminii si al clarobscurului, al vitrajelor, etc. Inaltimea cutiilor este mai mica tocmai pentru a permite acoperisului sa isi pastreze integritatea si simplitatea formala; pe aceste cutii e un loc de citit si spatii de depozitare. Structura casei este din lemn (santierul: 9 luni in total); cum acoperisul este elementul arhitectural car aduna si care concentreaza spatiile, am cautat exprimarea structurii si constructiei sale in imaginea interioara a casei (termoizolatia fiind asezata peste astereala).