
Comentariul autorului:
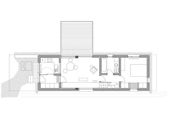
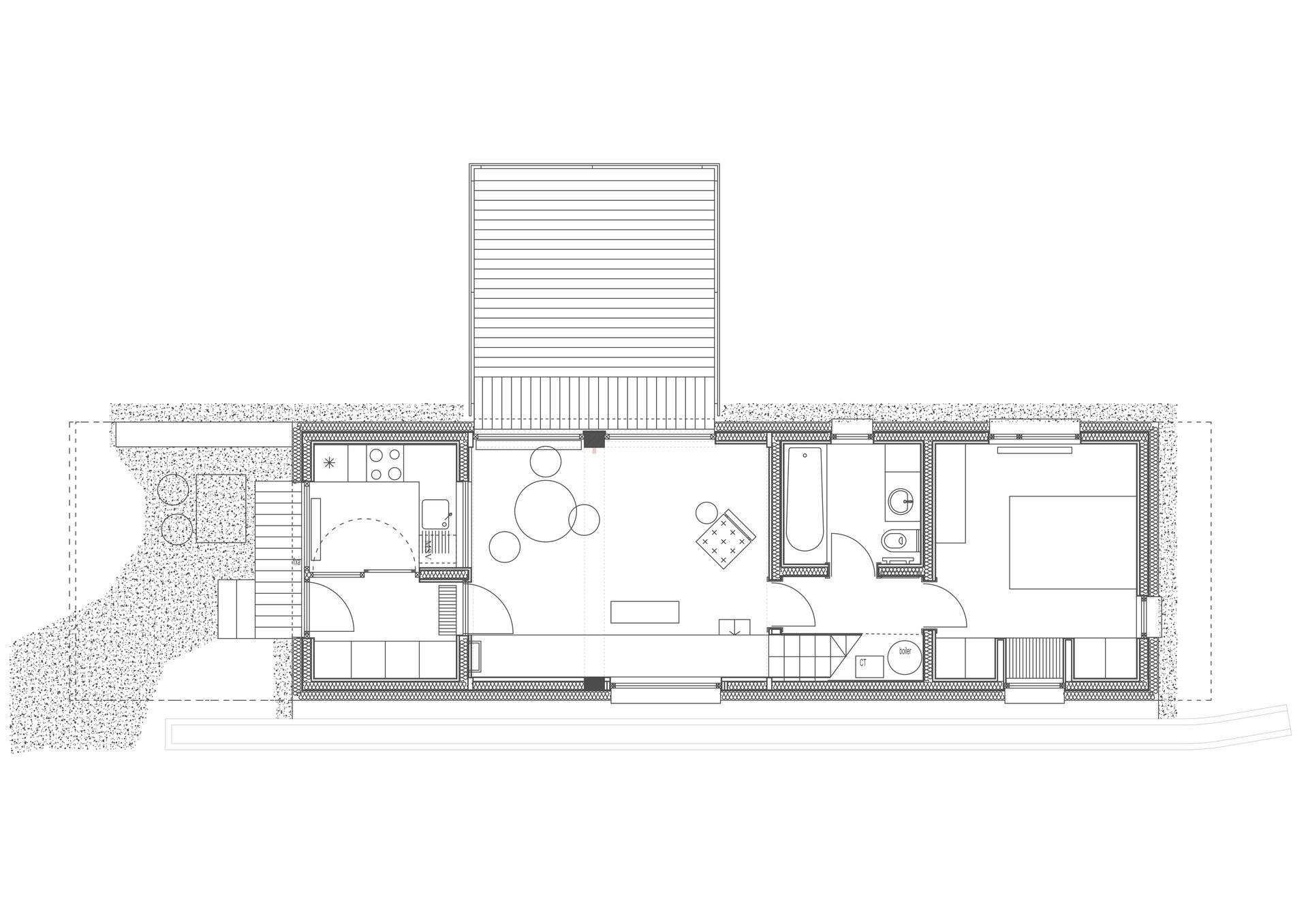
Sotrile753 este o casă mică, de vacanță, la munte. Schimbarea scarii arhitecturale este miza proiectului: spații intime, ascunse, se adună în jurul unei încăperi principale cu două etaje, care are o deschidere generoasa spre priveliștea indepărtată. Secțiunea lungă este desenul care conține intențiile proiectului. Există două locuri exterioare: unul protejat, direct pe pământ, în relație directă cu bucătăria; iar cea extrovertită - terasa suspendată, cu acces din acamera de zi, permițând privirii să ajungă până la Lacul Păltinu (5 km distanță). Cu exceptia dormitorului principal si a baii, toate incaperile sunt in amfilada, in relatie unele cu altele, avand ferestre si goluri unele catre altele si, astfel, producand fatade interioare.