
Comentariul autorului:
Tema program a constat in realizarea unei cladiri cu destinatia de locuire unifamiliala, pe terenul aflat in proprietatea beneficiarului.
Terenul studiat, cu suprafata de 598 m2, este situat in partea de N-E a municipiului Oradea, fiind invecinat:
- la V, cu un teren avand destinatia de drum privat,
- la S, cu drumul public – str. Cantonului,
- la N si E, cu proprietati private.
Accesul la proprietate se realizeaza din drumul privat (cu latimea profilului transversal de 9 m).
Conform Planului Urbanistic General (P.U.G.) al Oradiei, amplasamentul studiat este cuprins in limitele unitatii teritoriale de referinta (U.T.R.) LiL (locuinte cu regim redus de inaltime dispuse in zone de livezi si vii).
Terenul a fost studiat printr-o documentatie de urbanism tip P.U.Z., aprobata prin H.C.L., ce a conditionat amplasarea constructiilor pe parcele, respectand:
- limita de implantare a imprejmuirilor, la minim 6 m – distanta masurata din axul str. Cantonului, respectiv minim 4.50 m – distanta masurata din axul drumului privat de acces la proprietate;
- limita de implantare a constructiilor, la minim 6 m – distanta masurata de la aliniamentul str. Cantonului, respectiv 3.50 m de la aliniamentul drumului privat de acces;
- retrageri laterale minim 3.50 m, pe o latura;
- retrageri in raport cu limita posterioara de proprietate minim 1.90 m;
- asigurarea unui loc de parcare, minim;
- valoarea maxima a procentului de ocupare a terenului (P.O.T.) de 35%;
- valoarea maxima a coeficientului de utilizare a terenului (C.U.T.) de 0,6.
Amplasamentul este cuprins in regiunea pomicola si viticola a municipiului Oradea, zona ce a suferit un proces accelerat de urbanizare neplanificata dupa anul 1990. Treptat, ea primeste un caracter rezidential, in detrimentul culturilor pomicole, sustinuta de o infrastructura precara.
Arealul studiat apartine unitatii definite de Dealurile Oradiei, la nord de unitatea depresionara a vaii raului Crisul Repede, cu altitudini cuprinse intre 150-200 m – dealuri cu pante domoale si vai cu energii de relief scazute.
Culmea deluroasa are orientare VSV-ENE si margineste la N-V str. Facliei. Versantul nordic are dezvoltare larga, inclinare care nu depaseste 10° si este mobilat longitudinal cu trei strazi importante: str. Cantonului, str. Emil Isac si str. Sofiei. Versantul are altitudini peste 200 m, coame prelungi si pante relativ domoale.
Terenul cuprins de versanti beneficiaza de vedere panoramica – atat asupra urbei desfasurata in partea vestica si sudica a acestuia, cat si asupra zonei pomicole si viticole dezvoltata pe pantele domoale ale Dealurilor Oradiei in partea estica si nord-estica.
Amplasarea constructiei in teren a urmarit valorificarea din plin a perspectivelor deschise.
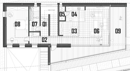
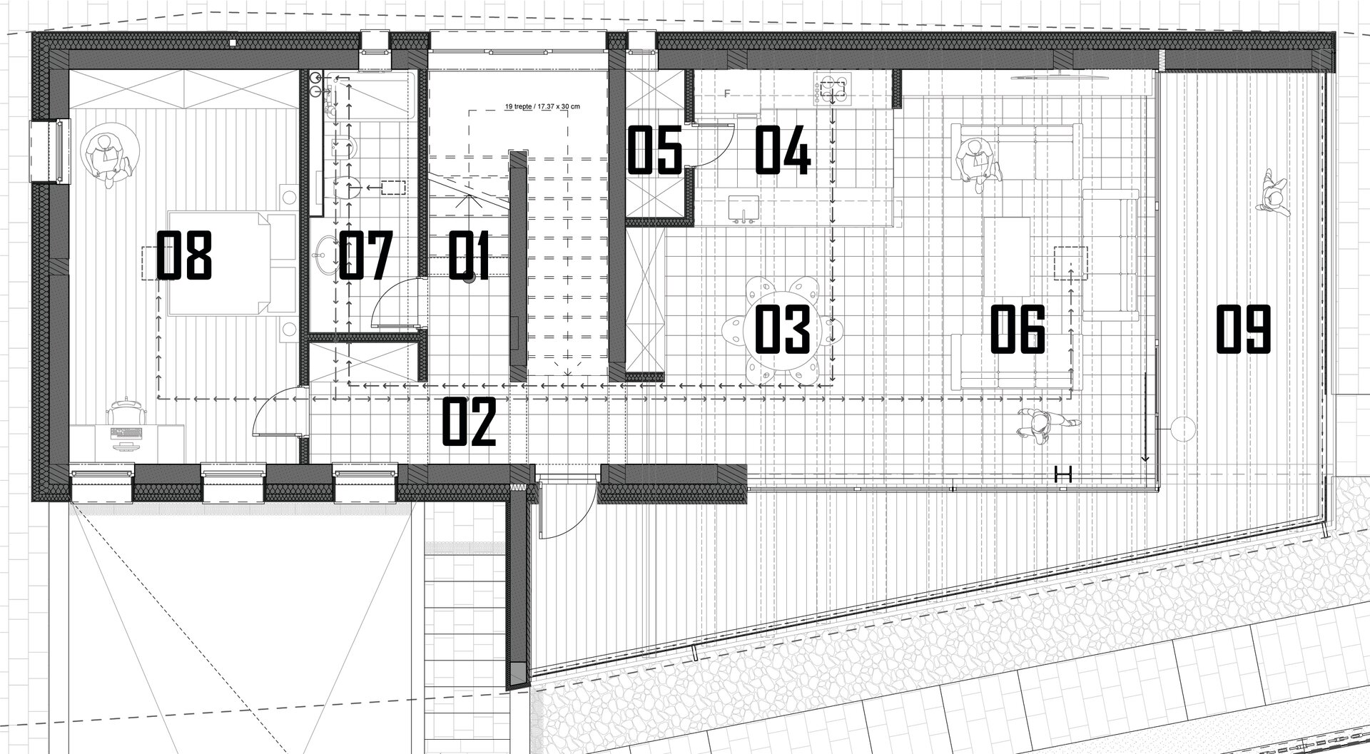
Aceasta se desfasoara in adancimea terenului, paralel cu limita dreapta de proprietate si cu directia pantei, totodata. Parcursul constructiei (planul nivelului parter) incepe de la nivelul terenului natural amenajat – gradina de fatada determinata prin retragerea constructiei in raport cu frontul la str. Cantonului (in sud) – coborand treptat odata cu terenul pe care este asezata, determinand astfel un demisol partial (nivel destinat gararii si spatiilor tehnice / depozitarii). Tot la acest nivel, se obtine o curte destinata recreerii.
Prin desfasurarea constructiei in trepte, toate spatiile de zi de la nivelul parterului (locul de luat masa si camera de zi) beneficiaza de accesul direct in curte.
Studiul de insorire realizat demonstreaza faptul ca fatada sudica (si incaperile adapostite) beneficiaza de lumina naturala pe intreaga perioada de insorire.
Drept urmare, continuitatea spatiului la acest nivel (neobturat) si iluminarea naturala confera un caracter privilegiat acestei zone.
Dormitorul amenajat la parterul constructiei cu deschideri orientate spre N si N-V asigura perspective neobturate asupra pantelor Dealurilor Oradiei.
Etajul constructiei ramane zona destinata odihnei, adapostind dormitoarele. Spatiile de la acest nivel beneficiaza de privelisti directe asupra urbei – in S, respectiv asupra pantelor Dealurilor Oradiei – in N.
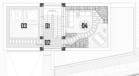
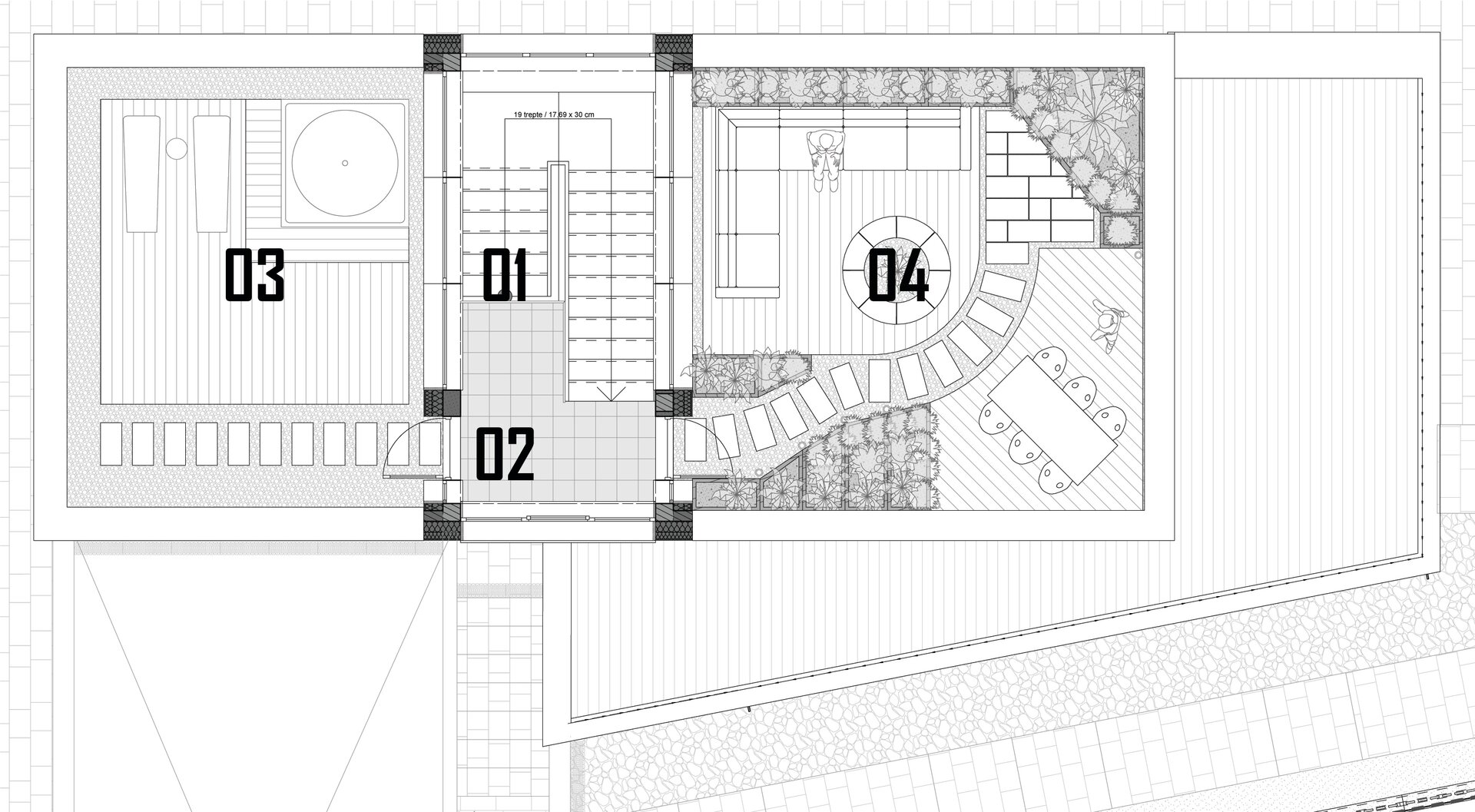
Nu in ultimul rand, pentru valorificarea din plin a perspectivelor deschise, s-a optat pentru acoperisul de tip terasa circulabila, accesul la acest nivel realizandu-se prin intermediul unei scari balansate inchise. Este zona destinata recreerii, contemplarii si relaxarii, cu deschidere panoramica.
Din punct de vedere constructiv, vorbim despre o constructie mixta (in cadre si profile metalice IPE), cu anvelopa realizata din zidarie de blocuri ceramice cu goluri verticale in grosime de 30 cm, cu termosistem din polistiren expandat in grosime de 25 cm.
Structura de rezistenta consta din stalpi, grinzi si plansee din beton armat, respectiv stalpi metalici IPE, grinzi metalice HEA (principale si secundare) si plansee din beton armat.
Sistemul de fundare adoptat este de fundatii continue sub peretii structurali.
Compartimentarea interioara neportanta s-a realizat din pereti pe structura metalica 150 mm, cu schelet simplu din profile CW / UW 100 mm, placat in doua straturi 2 * 12.5 mm pe fiecare parte.
Acoperisul constructiei este de tip terasa circulabila.
In ceea ce priveste finisajele interioare:
- pardoselile sunt realizate din rasina epoxidica la spatiul de garare si spatiile tehnice / depozitare, gresie portelanata de interior si parchet laminat la spatiile de locuit, si lemn plastifiat (WPC) la terasele constructiei;
- acoperirea peretilor este realizata prin zugraveli lavabile siliconice de interior;
- acoperirea tavanelor este realizata prin zugraveli lavabile siliconice de interior;
- tamplariile sunt metalice din aluminiu / PVC.
Pentru finisajul exterior, s-a optat pentru:
- acoperirea peretilor cu tencuieli exterioare decorative cu aspect de praf de piatra si zugraveli lavabile silicatice de exterior si intr-o varianta de perceptie ambientala, placare cu panouri decorative din caramida aparenta fixata direct pe sistemul termoizolant;
- acoperirea soclurilor cu tencuieli exterioare decorative cu aspect de praf de piatra si zugraveli lavabile silicatice de exterior.
Aleea carosabila de acces la garaj si trotuarele sunt realizate din dale autoblocante din beton.
Privind gabaritele si indicii de utilizare ai terenului, amenajarea presupune:
- suprafata teren, 598 m2
- suprafata construita, 152,67 m2
- suprafata desfasurata , 357,48 m2 (din care, suprafata construita a demisolului reprezinta 80,05 m2, suprafata construita a parterului reprezinta 152,67 m2, suprafata construita a etajului reprezinta 103,56 m2, si suprafata construita a casei de scara pentru accesul la terasa circulabila peste etaj reprezinta 21,20 m2)
- suprafata utila desfasurata, 259,17 m2 (din care, suprafata utila a demisolului reprezinta 64,61 m2, suprafata utila a parterului reprezinta 95,76 m2, suprafata utila a etajului reprezinta 82,90 m2, si suprafata utila a casei de scara pentru accesul la terasa circulabila peste etaj reprezinta 15,90 m2)
- suprafata terasa acoperita, 37,86 m2
- suprafata terase circulabile neacoperite, 116,85 m2
- suprafata alee carosabila, 32,33 m2
- locuri de parcare, 4 (din care 2 locuri in volumul constructiei)
- suprafata trotuare, 87,84 m2
- suprafata spatii verzi amenajate la nivelul solului, 317,36 m2
- P.O.T., 25,53%
- C.U.T., 0,597
- regim de inaltime, D+P+R
- cost mediu estimat / m2, 5.300 RON