
Comentariul autorului:
Amplasată în cartierul Gheorgheni din Cluj-Napoca și în proximitatea Scolii Gimnaziale Constantin Brancusi, “Casa O” este înconjurată de un țesut urban incoerent.
Raportată la geometria terenului și natura acestuia, se conectează la contextul actual cu ajutorul volumetriei acesteia și reușește să devină un reper visual remarcant în perspectiva strazii Horticultorilor. Din punct de vedere volumetric, panta accentuată a acoperișului cu învelitoare din tablă dublu fălțuită urmareste diferenta de nivel a terenului dinspre stradă spre capătul parcelei. Astfel, este scoasă în evidență o latură aparte si vioaie rezultată atât din interferarea volumelor, cât si a materialelor de finisaj puse în operă. Acestea din urmă, în ciuda familiilor diferite din care fac parte, reușesc să se contopească formând un tot unitar.
În linii generale conceptul volumetric ilustrează două volume primare: un volum imaculat și sincer, de culoare albă și un volum tangibil materializat de cărămida aparentă zidită. Ambele volume sunt decalate atât în plan, cât și pe înălțime, obținându-se un joc de asimetrie și de contraste. Pe de altă parte, fiecare volum devine scena sau mai bine spus ecranul pe care se proiectează micile detalii și intervențiile asupra fațadelor, care ajută la conturarea și concretizarea conceptului inedit al acestei locuințe colective cu două unități locative. Având orientarea spre sud-vest, volumul alb pune în evidență două elemente de detaliu majore, care au atât un rol de coagulare a volumetriei, cât și un rol protector. Un prim detaliu major este definit de bowindow-ul care leagă volumul alb de cel din cărămidă aparentă zidită și are rolul de a proteja accesul în prima unitate locativă. Pe lângă faptul că bowindow-ul devine o punte de legătură între cele două volume principale ale clădirii, acesta devine de asemenea un element arhitectural de interes pe fațada de la stradă, datorită unui tratament diferit de materialitate. Sticla de colt a acestuia pornește din volumul sincer de culoare albă, continuată de un joc de plin-gol dat de placarea de lemn și fereastra uneia dintre băile situate la etaj, care urmăresc să se unească într-un final cu volumul de cărămidă aparentă zidită. Cel de-al doilea element de detaliu volumetric aflat în strânsă legătură de volumul alb este copertina din lemn stratificat de stejar, care asemenea unei aripi protectoare, reușește să acopere cele două terase de la cel de-al doilea nivel. Grinzile de lemn, atent chertate pe capete sunt lăsate să culce peste o grindă masivă din lemn stratificat de stejar, care preia întreaga greutate și o transmite celor opt stâlpi metalici. Susținerea copertinei de stâlpii metalici și zvelți reprezintă un detaliu ce poate fi citit în întregime datorită transparenței parapeților de sticlă de la cele două terase acoperite. Legătura cu pământul se realizează cu ajutorul celor două portice rezultate din îmbrăcarea grinzilor și a stâlpilor cu cărămidă aparentă zidită. Aceste două elemente arhitecturale care stau la bază și susțin copertina și terasa de la etaj denotă greutatea, stabilitatea și unitatea.
Aflat în antiteză cu volumul alb, volumul din cărămidă aparentă zidită, colorează și modelează conceptul și în el prind consistență detaliile decorative de țesere ale cărămizii. Punerea în operă a cărămizii atât pe orizontală cât și întoarsă, culoarea acesteia, trafoarele oarbe, jocul de plin-gol al ferestrelor, scobitura accesului în cea de-a doua unitate locativă, precum și proporțiile folosite, transformă acest volum monobloc cu greutate într-un element sculptural. Toate acestea se completează cu o placare din lemn de stejar, care unește cele două goluri de fereastră oferind un decupaj al cărămizii la nivelul etajului. Același detaliu de unificare al ferestrelor printr-o placare de lemn este evidențiată clar și la golurile realizate pe fațada vest. Atât pe suprafețele de fațadă tratate cu tencuială decorativă albă, cât și pe cele din cărămidă, golurile ferestrelor sunt evidențiate prin folosirea parapeților de sticlă, care oferă transparență și un aport non-invaziv. Motivul bowindow-ului este repetat pe fațada posterioară, unde sticla ferestrei de colț a acestuia este materialul care primează și crează o legătură între cele două volume majore.
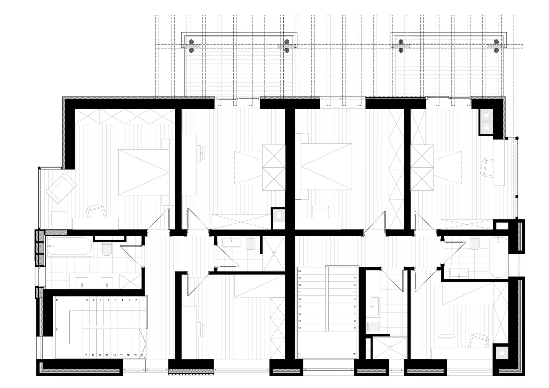
Funcțional, “Casa O” adăpostește două apartamente cu suprafața utilă de 183,15 mp, respectiv 176,83 mp. Nivelul subsolului este destinat spațiilor tehnice cu acces facil atât din exterior, pe o scară acoperită cât și din interior. Parterul este alocat zonelor de zi, care se deschid spre curte prin cele două terase acoperite de la nivelul terenului. La nivelul etajului au fost plasate zonele de noapte, unde fiecare dintre apartamente este prevăzut cu câte trei dormitoare, două băi și două terase acoperite.
“Casa O” reușește din punct de vedere volumetric și funcțional să integreze elemente arhitecturale contemporane și tradiționale într-un concept inedit, devenind o locuință colectivă cu două unități locative atipică zilelor noastre.