
Comentariul autorului:
Ansamblul Bisericii Evanghelice Fortificate din Beia este un ansamblu de monumente istorice de categorie A, cu o evoluție care datează din secolul XV până la
început de secol XX. În prezent, acesta este în stare avansată de degradare. În jurul acestui nucleu există numeroase gospodării valoroase care sunt în diferite stadii de degradare. Odată cu degradarea patrimoniului imobil se pierde și stratul patrimoniului mobil - Beia a fost unul dintre cele mai importante centre de pictură pe mobilier din Transilvania. Proiectul, pe lângă obiectivul de reabilitare își propune recuperarea acestui element identitar al artei picturii pe lemn - reactivarea
clădirilor și extinderea duratei lor de viață prin atribuirea unei noi funcțiuni, de găzduire și îngrijire a patrimoniului imobil și imaterial al comunității. Inițiativa este gândită împreună cu comunitatea locală și are rolul de a contribui la solidificarea relației dintre oameni și valorile existente în satul lor și de a crește gradul de coeziune
comunitară. Noua intervenție propune pentru ansamblul fortificat funcțiunea de Centru de Interpretare al Artei Picturii pe Mobilier, în care biserica restaurată este deschisă permanent pentru vizitare, turnurile servesc ca spații dedicate expozițiilor, anexa slăninărie găzduiește ateliere conexe meșteșugului și cursuri dedicate
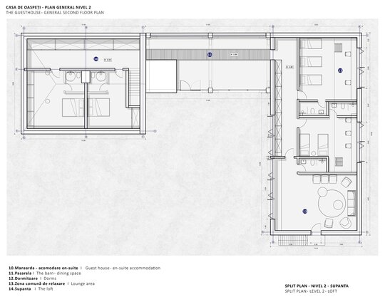
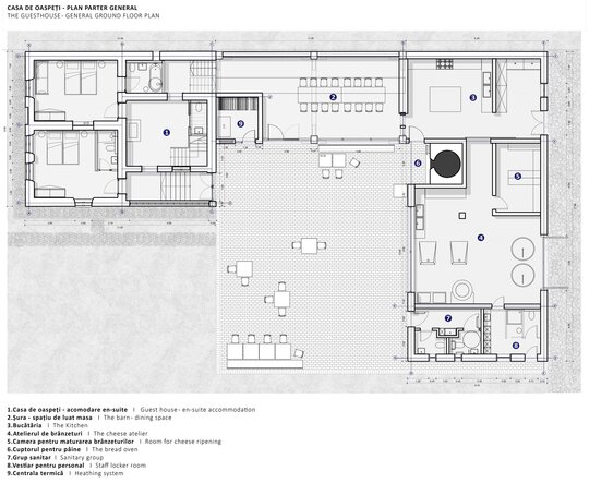
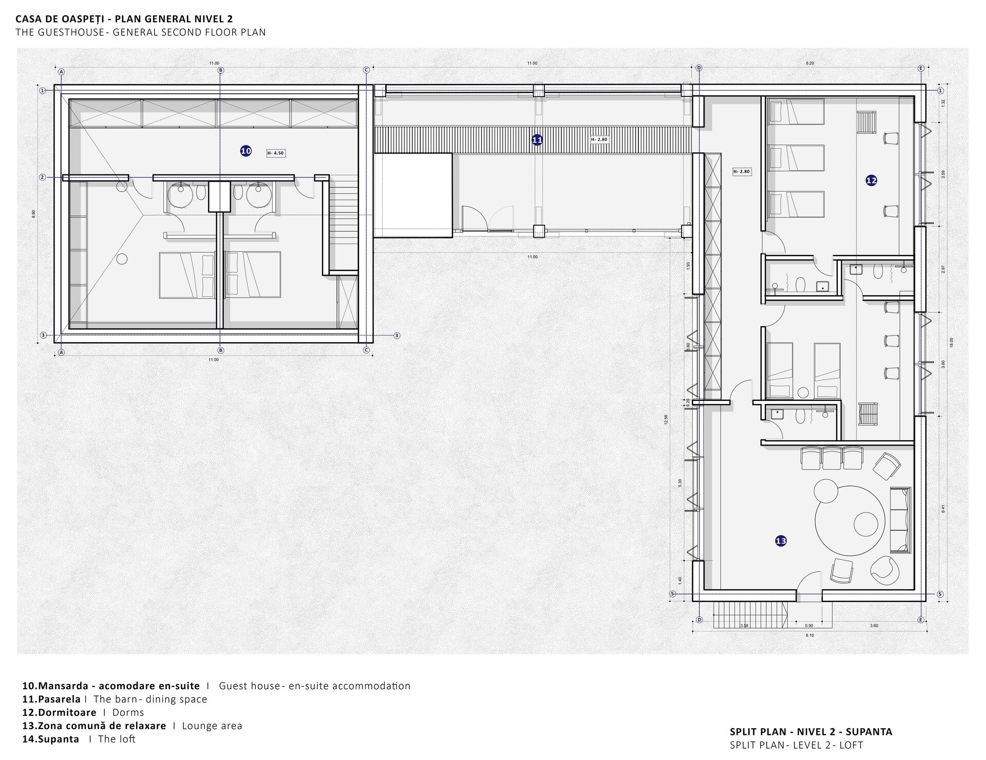
popularizării informaților corecte despre păstrarea pieselor de mobilier pictat. Casa parohială ar deveni casă de oaspeți, cu zone de relaxare și zone de luat masa. Clădirea propusă este o inserție necesară în sit, construită pe lotul ocupat în trecut de o șură anexată casei parohiale. Acestă nouă construcție se încadrează în morfologia unei gospodării săsești, respectând limbajul arhitectural existent. Ea va găzdui o bucătărie comunitară cu facilități de procesare a laptelui, cu cuptor de pâine. Adiacent casei se creează multiple zone care privesc agricultura și care sunt inspirate din activitățile desfășurate în jurul ansamblului în trecutul recent.