
Comentariul autorului:
Tema program a constat in realizarea a doua cladiri cu functiuni diferite (una mixta – C1 – destinata serviciilor – sanatate – si locuirii, iar alta – C2 – destinata turismului – aparthotel) pe terenul aflat in proprietatea beneficiarilor, intr-un mod in care coexistenta lor pe aceeasi parcela sa nu determine animozitati la niciun nivel.
Din punct de vedere functional, utilizarile propuse sunt admise conform reglementarilor Regulamentului Local de Urbanism (R.L.U.) aferent Planului Urbanistic General (P.U.G.) al Oradiei.
Terenul studiat (parcela de colt), cu suprafata de 567 m2, este situat in partea de S-V a municipiului Oradea, fiind invecinat:
- la N, cu drumul public – str. Vladeasa,
- la V si S, cu proprietati private,
- la E, cu drumul public – str. Abatorului.
Accesul la proprietate se realizeaza atat din str. Vladeasa, cat si din str. Abatorului.
Conform Planului Urbanistic General (P.U.G.) al Oradiei, amplasamentul studiat este cuprins in limitele unitatii teritoriale de referinta (U.T.R.) M4 (zona mixta cu regim de construire deschis, adiacenta arterelor de importanta locala).
Zona se remarca printr-o structura functionala heterogena, caracterizata de mixajul intre activitatile de interes general, cu acces public, ce tind sa ocupe parterele si locuirea de tip colectiv situata la nivelurile superioare ale imobilelor multifunctionale. Sunt de asemenea prezente, ocupand imobile monofunctionale, institutii publice si de interes pentru public, dar si alte tipuri de activitati. Alaturi de acestea, rezultat al unei redezvoltari incomplete, se intalneste locuirea de tip individual periferic. Gradul de finisare urbana in spiritul regulii dominante, impuse prin efectul redezvoltarii moderne, e neuniform. Parcelarul e in general inegal, regasindu-se parcele cu fronturi inguste spre strada (in general de 15-18 m) si adancimi variabile, ocupate de cladiri apartinand tipologiei traditionale, de tip periferic, dar si parcele cu deschideri importante spre spatiul public (20-50 m), rezultat al procesului de restructurare aflat in desfasurare.
Structura urbana releva un grad ridicat de diferentiere, rezultat al evolutiei istorice.
Conform reglementarilor Regulamentului Local de Urbanism (R.L.U.) aferent Planului Urbanistic General (P.U.G.) al Oradiei, amplasarea constructiilor pe parcele a fost posibila, respectand:
- conservarea aliniamentului existent;
- alipirea la calcanele vecine existente, in raport cu limita laterala ale parcelei;
- retragerea cu o distanta minim egala cu jumatate din inaltimea cladirilor, masurata la cornisa superioara sau atic, in punctul cel mai inalt, dar nu mai putin de 6 m, in raport cu limita posterioara a parcelei;
- valoarea maxima a procentului de ocupare a terenului (P.O.T.) de 60%; pentru nivelurile cu destinatie de locuire, aria construita maxima este de 35% din suprafata terenului;
- valoarea maxima a coeficientului de utilizare a terenului (C.U.T.) de 1,8.
Conservarea aliniamentului existent a plasat constructia cu functiune mixta – C1 – destinata serviciilor (sanatate) si locuirii in retragere fata de str. Vladeasa (front 1, principal), respectiv in aliniament raportat la str. Abatorului (front 2, secundar), acoperind calcanul existent edificat pe proprietatea invecinata.
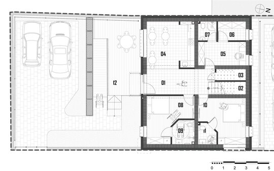
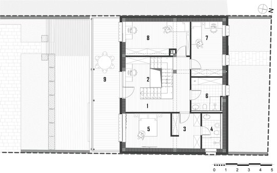
Constructia, avand doua niveluri supraterane, adaposteste in zona frontului 1 spatiile destinate serviciilor (sanatate). Aceasta activitate ocupa – partial – nivelul parterului, restul constructiei deservind strict locuirea. Suprafata utila aferenta functiunii este de 42,21 m2.
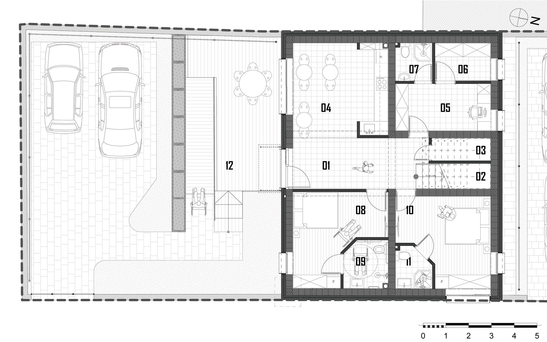
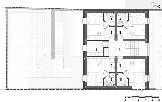
Accesul la spatiile destinate locuirii se realizeaza prin frontul 2. Parterul deserveste zona de acces, spatiile tehnice / depozitarea si zona de zi (bucataria, locul de luat masa si camera de zi – spatiu deschis). Etajul constructiei reprezinta zona destinata odihnei, adapostind dormitoarele. Suprafata utila aferenta locuirii este de 149,52 m2.
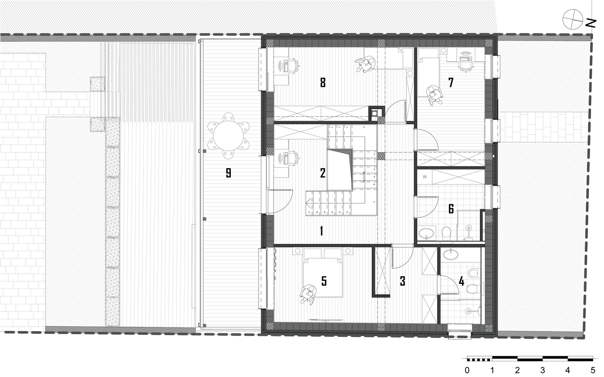
Constructia C2 destinata turismului – aparthotel, 6 camere – este plasata respectand aceleasi rigori: in retragere fata de str. Vladeasa (front 1, principal), respectiv in aliniament raportat la str. Abatorului (front 2, secundar), acoperind calcanul existent edificat pe proprietatea invecinata.
Constructia, avand doua niveluri supraterane, adaposteste la nivelul parterului zona de acces, zona administrativa, spatiile tehnice / depozitarea si doua camere de cazare. Etajul raspunde cerintei de cazare (4 camere), deservita de o zona de menajerie. Suprafata utila a constructiei este de 169,40 m2.
Din punct de vedere constructiv, structura de rezistenta a celor doua constructii este una similara, constand din stalpi, grinzi si plansee din beton armat, cu fundatii izolate sub stalpi legate intre ele cu grinzi de fundare. Peretii de inchidere sunt realizati din zidarii de blocuri ceramice cu goluri verticale in grosime de 30 cm, cu termosistem din polistiren expandat in grosime de 20 cm.
Compartimentarile interioare neportante sunt realizate din pereti pe structura metalica 125 mm, cu schelete simple din profile CW / UW 75 mm, placate in doua straturi 2 * 12.5 mm pe fiecare parte.
Acoperisurile constructiilor sunt de tip terasa necirculabila.
In ceea ce priveste finisajele interioare:
- pardoselile sunt realizate din gresie portelanata de interior si parchet laminat, respectiv lemn plastifiat (WPC) la terasele constructiilor;
- acoperirea peretilor este realizata prin zugraveli lavabile siliconice de interior;
- acoperirea tavanelor este realizata prin zugraveli lavabile siliconice de interior;
- tamplariile sunt din PVC.
Pentru finisajul exterior, s-a optat pentru:
- acoperirea peretilor cu tencuieli exterioare decorative cu aspect de praf de piatra si zugraveli lavabile silicatice de exterior;
- acoperirea soclurilor cu tencuieli exterioare decorative cu aspect de praf de piatra si zugraveli lavabile silicatice de exterior.
Imbracamintea aleilor carosabile consta din piatra cubica, iar cea a trotuarelor din dale autoblocante din beton.
Privind gabaritele si indicii de utilizare ai terenului, amenajarea presupune:
- suprafata teren, 567 m2
- suprafata construita C1, 143,94 m2
- suprafata desfasurata C1, 256,79 m2
- suprafata utila C1, 191,73 m2 (din care, suprafata utila aferenta functiunii de sanatate este 42,21 m2, iar suprafata utila aferenta locuirii este 149,52 m2)
- suprafata terasa neacoperita C1, 34,20 m2
- suprafata construita C2, 114,45 m2
- suprafata desfasurata C2, 228,90 m2
- suprafata utila C2, 169,40 m2
- suprafata terasa neacoperita C2, 22,35 m2
- suprafata construita totala (referinta P.O.T.), 258,39 m2
- suprafata desfasurata totala (referinta C.U.T.), 485,69 m2
- suprafata utila totala, 361,13 m2
- suprafata alei carosabile, 82,68 m2
- suprafata trotuare, 22,72 m2
- suprafata spatii verzi amenajate la nivelul solului, 114,42 m2
- locuri de parcare, 4 in interiorul parcelei la nivelul terenului amenajat
- P.O.T, 45,57%
- C.U.T., 0,856
- regim de inaltime, P+1E
- cost mediu estimat / m2, 5.300 RON