
Comentariul autorului:
Proiectul vizează Grădina Botanică “Vasile Fati” din Jibou, un spațiu verde urban care, din păcate, la fel ca multe altele din România, ar avea nevoie de ceva mai multă atenție.
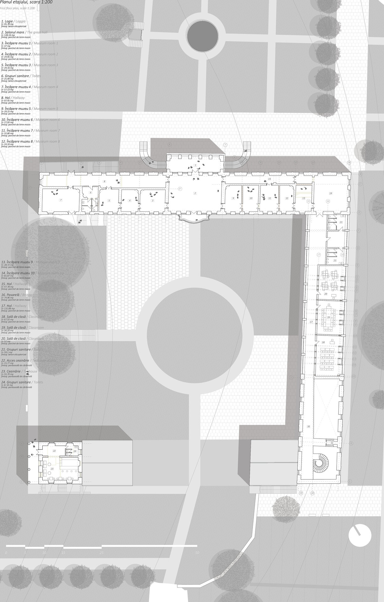
Ceea ce face această grădină cu adevărat specială este prezența ansamblului castelului Wesselényi și relația pe care o are cu acesta - o relație ambiguă, cauzată de lipsa unei comunicări funcționale dintre acestea.
Propunerea dorește să încurajeze o armonie între monumente și grădină prin realizarea unei închideri fizice și funcționale a ansamblului, aducând astfel funcțiuni apropiate instituției
botanice: un centru de cercetare a biodiversității, un muzeu botanic și un centru de educație
ecologică. Acestea își vor găsi locul atât în spațiile castelului și ale grajdului (abandonate de mai bine de un deceniu), cât și în cadrul unor edificii noi, gândite să completeze ansamblul, fără să concureze cu acesta în vreun fel.
Totodată, grădina va fi supusă unor schimbări. În strategia noului design vor fi urmărite realizarea unei rețele continue de ape, folosirea vegetației mature ca limită (atât a celei deja
existente, cât și a celei noi), amenajarea unui traseu coerent și ușor accesibil în funcție de declivitatea terenului, curățarea grădinii de clădiri nevaloroase.