.jpg-d2.jpg)
Comentariul autorului:
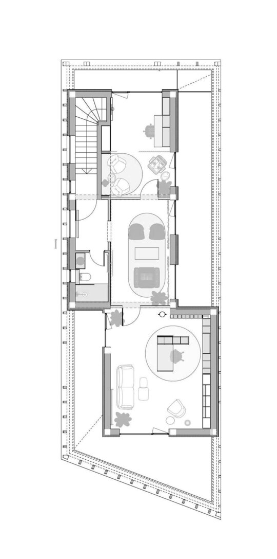
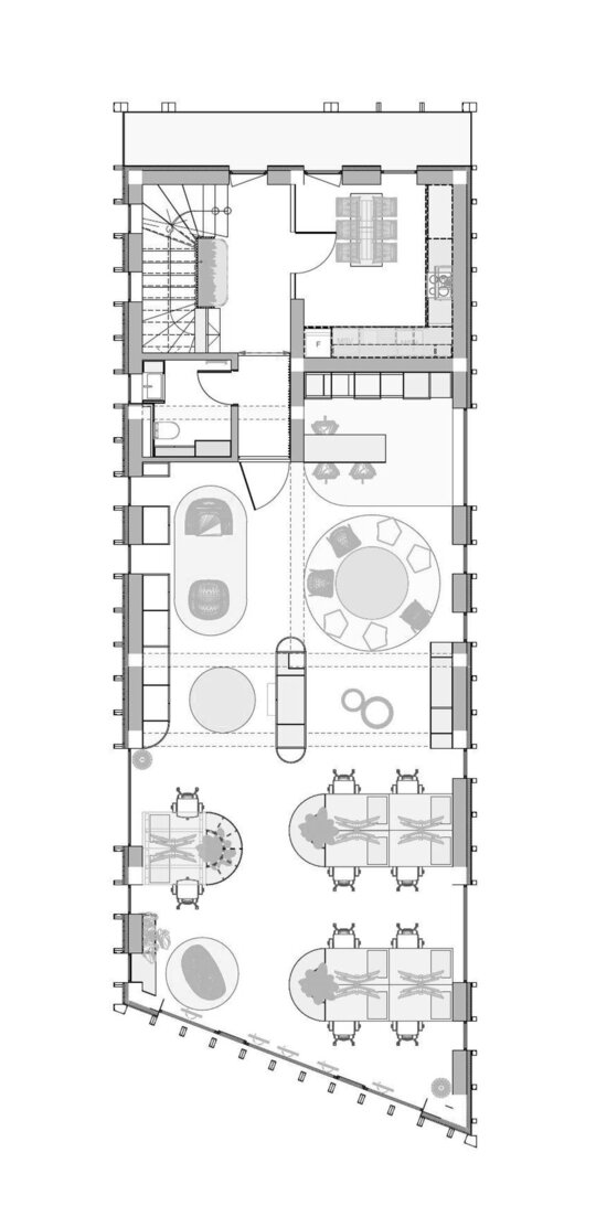
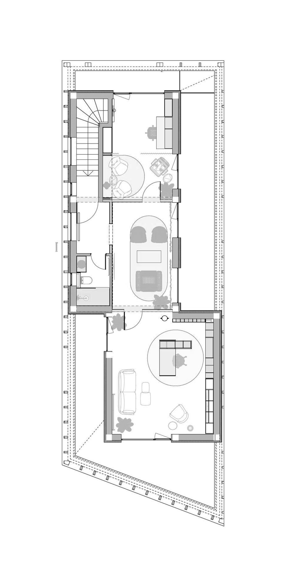
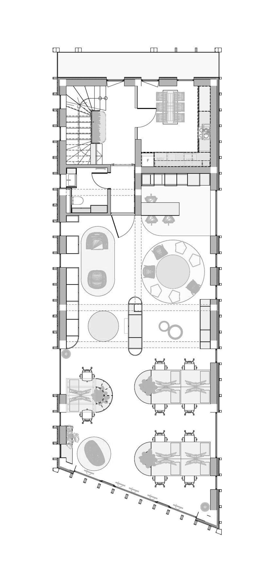
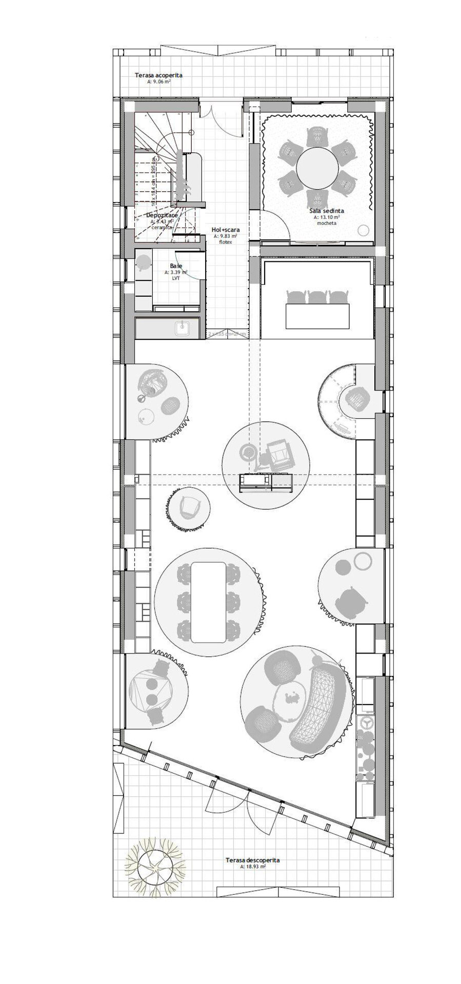
Propunerea constă în transformarea unei locuințe unifamiliale într-un imobil mixt, cu funcțiunea de showroom și spațiu de birouri pentru Dacca Group Trade – Brands Furniture. S-a dorit ca nouă clădire să aducă un suflu nou și să îmbunătățească imaginea existentă pe întreaga stradă. Clădirea a fost proiectată să acomodeze toate funcțiunile necesare bunei desfășurări a activităților specifice companiei. S-a urmărit oferirea unor spații care să comunice cu mediul înconjurător, prietenoase și luminoase, printr-o arhitectură durabilă, de calitate. Noua propunere dorește să inspire, să fie remarcată prin bun simt, coerență, minimalism și atitudine, atribute care lipseau vechii clădiri.
Nouă anvelopa a clădirii, consistent extinsă față de cea existentă, dorește să îmbunătățească proporțiile imobilului cu o textură metalică ritmată, care unifică elementele vechi cu cele noi și integrează vitrajele existente cu cele noi. Prin ritmul creat, prin lamele, s-a permis flexibilitatea de a poziționa anumite vitraje sau perforații în fațada astfel încât să rezulte o compoziție bine proporționată și dinamică. Acestea reflectă și permeabilizează întreagă clădire, oferind o perspectiva interioară asupra showroomului. De asemenea, s-a dorit expunerea fiecărui etaj prin registrele compoziționale ale fațadei și accentuarea, într-un mod funcțional, a intrării în volumul clădirii.
Arhitectura și materialele folosite reflectă funcțiunile interioare ale spațiului: la primele două niveluri se află funcțiuni destinate publicului specializat – showroom și working space, iar partea de etaj retras conține birouile individuale și private ale dezvoltatorilor, realizându-se astfel o compoziție bine proporționată .
Clădirea, prin natura funcțiunii sale, dorește să faciliteze dialogul între arhitecți și designeri cu specialiștii Dacca Group Trade – Brands Furniture, având că scop generarea de noi proiecte emblematice pentru ambele părți. S-a creat un spațiu care inspiră și oferă libertatea de a gândi design-uri remarcabile cu ajutorul produselor și serviciilor oferite de către gazdă.