
Comentariul autorului:
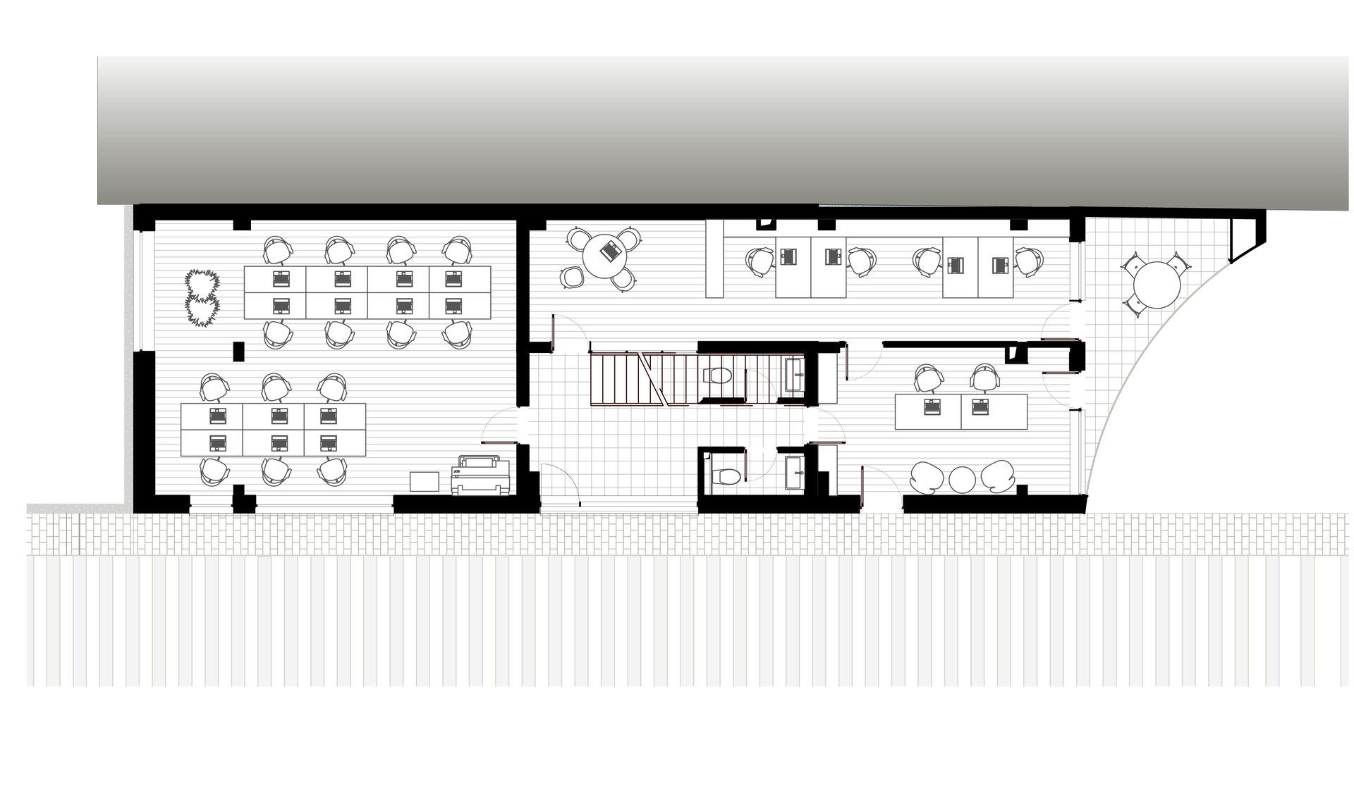
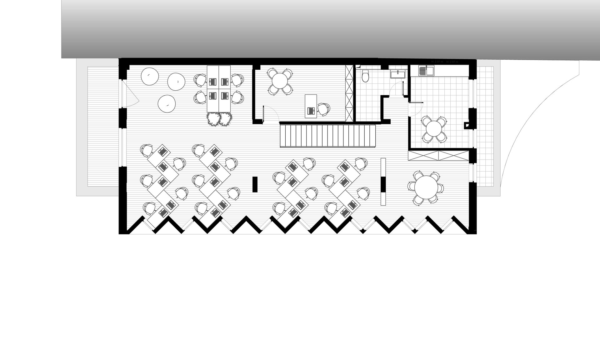
La inceput, a fost o casa, apoi o dorinta, o dorinta de a crea un spatiu de lucru, pentru un birou de proiectare. Avand datele tehnice si subiective ale sitului si ale beneficiarului, am creat o arhitectura de factura contemporana, mai aparte, care pastreaza o parte din parterul casei ce a fost, peste care am asezat un nou volum. Aceasta compozitie si imbinare este materializata prin finisaje diferite ca forme si culoare, exprimand totodata si functionalitatea spatiului din interior. Volumul alb, mult vitrat, zabrelit pe latura lunga, orientandu-l inspre soare, gazduieste zona de birouri open space, care necontenit are nevoie de lumina soarelui. Acesta este imbracat intr-o panza metalica, care filtreaza lumina si ofera gradul si confortul necesar functiunii. Jocul celor doua volume, genereaza spatii exteriaore semi-private, oferind un cadru propice de destintere, intregii echipe ce-i da viata. In curte consola creata te protejeaza in parcursul liniar al curtii . Compozitia volumetrica este de asemeneasi un raspuns la constrangerile urbane, respectul fata de vecinatati si dorinta de a crea o arhitectura corecta.